This calculator provides a guide to the amount of residential stamp duty you may pay and does not guarantee this will be the actual cost. This calculation is based on the Stamp Duty Land Tax Rates for residential properties purchased from 23rd September 2022 and second homes from 31st October 2024. For more information on Stamp Duty Land Tax, click here.
2 bedroom Flat for sale, Bellemoor Road, Southampton, Hampshire, SO15
Features and Description
- Sought-after Southampton residential location
- Strong annual rental income £13,632
- No onward chain sale
- Two good sized double bedrooms
- Bay fronted reception room
- Separate fitted kitchen
- Driveway parking included
- Excellent public transport connections
- Close to shops, cafés, amenities
- Near Southampton Common green space
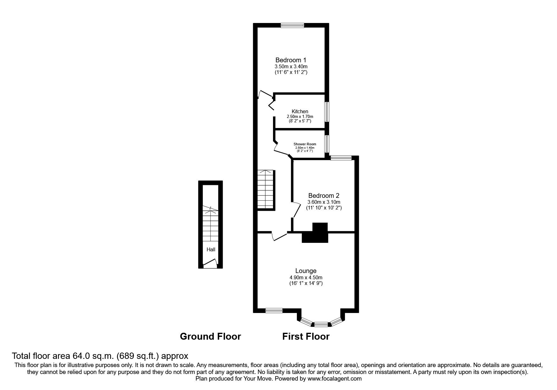
This neutrally decorated first floor maisonette is offered for sale in a sought after part of Southampton, well placed for public transport links, nearby schools and local amenities. The property features a bay fronted reception room, separate fitted kitchen, two good sized double bedrooms and a shower room. Driveway parking is provided, and the home holds an EPC rating of D and falls within Council Tax band B.
Currently achieving a rental income of £13,632 per annum with an excellent rental track record, this two-bedroom maisonette will appeal to both first time buyers and investors. The layout offers a practical arrangement of one reception room and one kitchen, with well-proportioned accommodation throughout.
The location provides convenient access to central Southampton, with local bus services running towards the city centre, Southampton Central railway station and surrounding districts. From Southampton Central, frequent services run to London Waterloo, with journey times from around 1 hour 20 minutes, as well as direct trains to Portsmouth, Bournemouth and Winchester.
Residents benefit from a range of nearby amenities including local shops, cafés and services in the surrounding area, while Southampton Common offers extensive open green space for walking and recreation within easy reach. A selection of local schools are situated in the wider neighbourhood, adding to the practicality of the location for a variety of purchasers.
The maisonette is offered for sale with no onward chain, providing a straightforward opportunity for occupation or continued letting.
IMPORTANT NOTE TO POTENTIAL PURCHASERS:
We endeavour to make our particulars accurate and reliable, however, they do not constitute or form part of an offer or any contract and none is to be relied upon as statements of representation or fact. The services, systems and appliances listed in this specification have not been tested by us and no guarantee as to their operating ability or efficiency is given. All photographs and measurements have been taken as a guide only and are not precise. Floor plans where included are not to scale and accuracy is not guaranteed. If you require clarification or further information on any points, please contact us, especially if you are travelling some distance to view. Fixtures and fittings other than those mentioned are to be agreed with the seller.
Bellemoor Road, Southampton, Hampshire, SO15
Additional Information
-
Property refSOU260309
-
EPCD
-
TenureShare of Freehold
-
Council TaxA
-
Local authoritySouthampton City Council
Similar properties for sale by Your Move Southampton
The pin shows the exact address of the property
Energy Efficiency Rating
Very energy efficient - lower running costs
Not energy efficient - higher running costs
Current
68Potential
76CO2 Rating
Very energy efficient - lower running costs
Not energy efficient - higher running costs
