This calculator provides a guide to the amount of residential stamp duty you may pay and does not guarantee this will be the actual cost. This calculation is based on the Stamp Duty Land Tax Rates for residential properties purchased from 23rd September 2022 and second homes from 31st October 2024. For more information on Land and Buildings Transaction Tax, click here.
3 bedroom Flat for sale, Calder Gardens, Edinburgh, Midlothian, EH11
Features and Description
- Popular location
- Excellent Transport Links
- Three Bedroom First Floor Flat
- Ideal Fort First Time Buyers & Landlords
- Close To Local Amenities
- Double Glazing
- Gas Central Heating
- Residents parking
This three-bedroom flat offers superb accommodation and would be ideal for a young family, first-time buyer or investor. The property enjoys excellent natural light, practical room sizes, and a convenient setting close to transport links, local amenities, and green spaces.
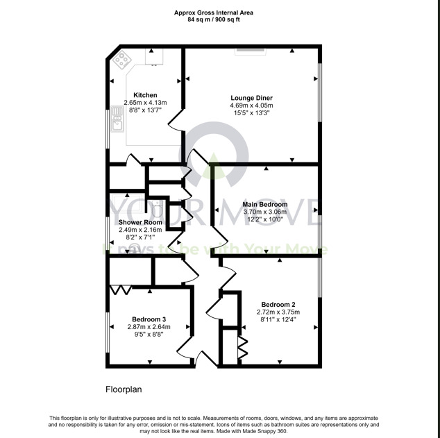
The accommodation comprises: An inviting entrance hallway, bright and spacious lounge, fitted kitchen, three double bedrooms and family bathroom.
The property further benefits from gas central heating, double glazing and ample storage.
IMPORTANT NOTE TO POTENTIAL PURCHASERS:
We endeavour to make our particulars accurate and reliable, however, they do not constitute or form part of an offer or any contract and none is to be relied upon as statements of representation or fact. The services, systems and appliances listed in this specification have not been tested by us and no guarantee as to their operating ability or efficiency is given. All photographs and measurements have been taken as a guide only and are not precise. Floor plans where included are not to scale and accuracy is not guaranteed. If you require clarification or further information on any points, please contact us, especially if you are travelling some distance to view. Fixtures and fittings other than those mentioned are to be agreed with the seller.
Calder Gardens, Edinburgh, Midlothian, EH11
Additional Information
-
Property refLEI260018
-
EPCC
-
TenureFreehold
-
Council TaxB
-
Local authorityThe City Of Edinburgh Council
Similar properties for sale by Your Move Edinburgh
The pin shows the exact address of the property
Energy Efficiency Rating
Very energy efficient - lower running costs
Not energy efficient - higher running costs
Current
80Potential
82CO2 Rating
Very energy efficient - lower running costs
Not energy efficient - higher running costs
