This calculator provides a guide to the amount of residential stamp duty you may pay and does not guarantee this will be the actual cost. This calculation is based on the Stamp Duty Land Tax Rates for residential properties purchased from 23rd September 2022 and second homes from 31st October 2024. For more information on Stamp Duty Land Tax, click here.
2 bedroom Flat for sale, Coltsfoot Gardens, Windy Nook, Gateshead, NE10
Features and Description
- First Floor Flat
- Perfect for First-Time Buyers, Professionals and Investors.
- No Chain Involved
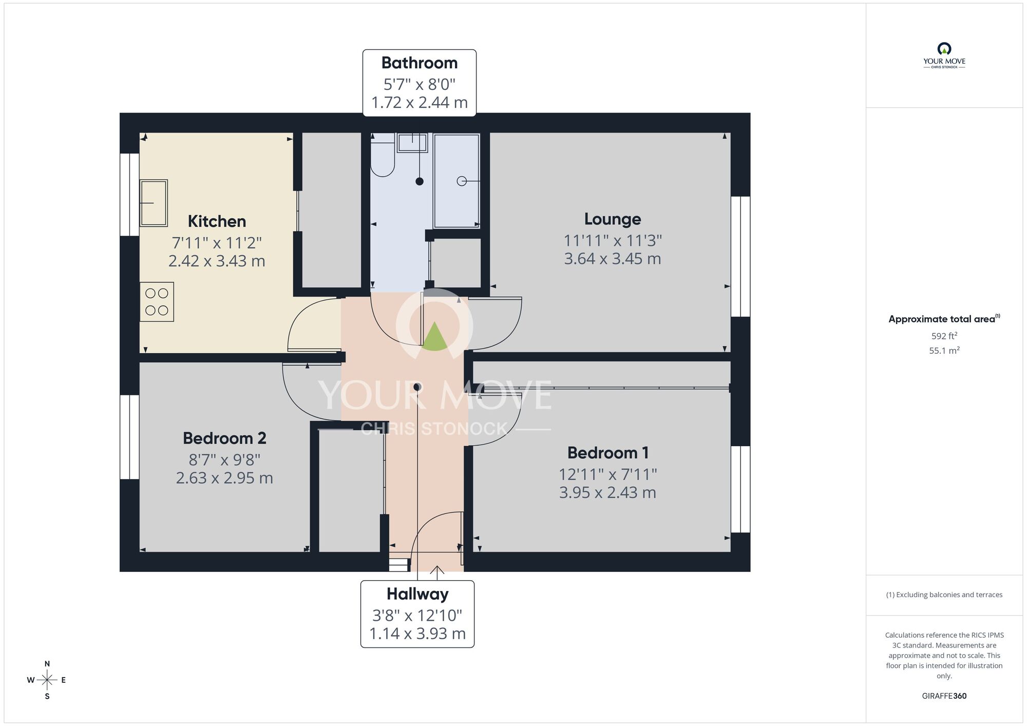
- Approx. Floor Area 60 sqM or 645.835 sqFT
- Council Tax Band A
- EPC RATING C
Two bedroom First floor flat is available with no onward chain. Perfect for first-time buyers, professionals and investors.
Similar apartments let for approximately £650 PCM, depending on standard.
A fantastic investment opportunity, offering an impressive 12% yield based on the current asking price.
It also comes with a valid Gas Safety Certificate until 27th of Feb 2026 and EPC until 1st July 2028.
The property comprises an entrance lobby which includes a generously sized storage cupboard, leading into a spacious lounge. There is a double bedroom with built-in sliding wardrobes, and across the hallway, a second well-proportioned bedroom.
The kitchen/diner with space for an under-counter fridge or freezer, plumbing for a washing machine, and ample room for a dining table and chairs. It also includes a built-in oven and a gas hob, complete with an extractor fan overhead.
The shower room and WC is partially tiled and includes a shower cubicle, along with an additional storage cupboard for towels and toiletries.
Externally, the property enjoys access to both front and rear communal gardens, mainly laid to lawn, offering pleasant outdoor space.
Additional benefits include double glazing throughout and a gas central heating system.
We understand the property is on a 125 year lease from 9th April 1996 leaving approx. 95 years remaining at the time of listing. The annual service charge and ground rent is around £42 per month. Please note we have not inspected the head lease.
MAKING AN OFFER Please note that all offers will require financial verification including mortgage agreement in principle, proof of deposit funds, proof of available cash and full chain details including selling agents and solicitors down the chain. Under New Money Laundering Regulations we require proof of identification from all buyers before acceptance letters are sent and solicitors can be instructed.
IMPORTANT NOTE TO POTENTIAL PURCHASERS:
We endeavour to make our particulars accurate and reliable, however, they do not constitute or form part of an offer or any contract and none is to be relied upon as statements of representation or fact. The services, systems and appliances listed in this specification have not been tested by us and no guarantee as to their operating ability or efficiency is given. All photographs and measurements have been taken as a guide only and are not precise. Floor plans where included are not to scale and accuracy is not guaranteed. If you require clarification or further information on any points, please contact us, especially if you are travelling some distance to view. Fixtures and fittings other than those mentioned are to be agreed with the seller.
Coltsfoot Gardens, Windy Nook, Gateshead, NE10
Additional Information
-
Property refQLF250369
-
EPCC
-
TenureLeasehold
-
Lease length95 years
-
Council TaxA
-
Ground RentContact the branch
-
Ground Rent ReviewContact the branch
-
Service ChargeContact the branch
The pin shows the exact address of the property
Energy Efficiency Rating
Very energy efficient - lower running costs
Not energy efficient - higher running costs
Current
74Potential
78CO2 Rating
Very energy efficient - lower running costs
Not energy efficient - higher running costs
