This calculator provides a guide to the amount of residential stamp duty you may pay and does not guarantee this will be the actual cost. This calculation is based on the Stamp Duty Land Tax Rates for residential properties purchased from 23rd September 2022 and second homes from 31st October 2024. For more information on Stamp Duty Land Tax, click here.
1 bedroom Flat for sale, Kedleston Close, Belper, Derbyshire, DE56
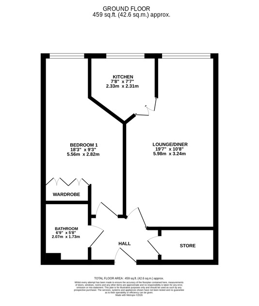
Features and Description
Superb third-floor retirement apartment for the over 60s community, ideally positioned just a stone’s throw from Belper’s vibrant town centre, and enjoying far-reaching views towards The Chevin. This well-maintained development offers a range of excellent communal facilities, including a guest suite, lift access to all floors, on-site management, a laundry room, residents’ lounge, and convenient resident parking.
For added peace of mind, the property benefits from comprehensive security features such as a careline system and intruder alert.
The accommodation briefly comprises: a welcoming entrance hall, a light and spacious lounge/dining room, a fully fitted kitchen, a generously sized double bedroom with fitted wardrobes, a modern shower room, and a practical walk-in store room.
Entrance Hall
Providing access to the lounge/dining room, double bedroom and shower room. The entrance hall also features a useful storage cupboard housing the hot water tank.
Lounge Diner
A spacious and well-proportioned lounge/dining room, enjoying good natural light from the front-facing window with far-reaching views towards The Chevin. The room features a fireplace with electric fire, a wall-mounted storage heater and a television point. There is ample space for both living and dining furniture, while glazed double doors lead through to the adjoining kitchen, enhancing the sense of openness and flow.
Kitchen
Featuring an attractive range of wood-effect units with complementary rolled-edge laminate worktops incorporating a sink with drainer and mixer tap. Integrated appliances include an oven, electric hob with extractor over, and an under-counter fridge and freezer. There is also an electric wall heater. The kitchen benefits from a window providing natural light, along with tiled splashbacks.
Bedroom
A generous double bedroom benefiting from built-in wardrobes with sliding mirrored doors, providing excellent storage. The room also features a front-facing window allowing for natural light and enjoying far-reaching views towards The Chevin, along with a wall-mounted storage heater.
Shower Room
A modern and well-appointed shower room fitted with a three-piece suite comprising a walk-in shower enclosure with glazed screen, wash hand basin set within a vanity unit, and low-level WC. The room is complemented by tiled walls, built-in shelving for storage, and contemporary fittings throughout.
Communal
* Attractive open plan communal lounge providing a handy meeting place with its own separate kitchen area.* Large well equipped laundry room.* On site parking.
Lease
The lease length is 125 years from 1st February 2006
Charges
Service charge: £214.36 per month (from 1st April 2026).Estate and management charge: An annual payment of £197.50.
IMPORTANT NOTE TO POTENTIAL PURCHASERS:
We endeavour to make our particulars accurate and reliable, however, they do not constitute or form part of an offer or any contract and none is to be relied upon as statements of representation or fact. The services, systems and appliances listed in this specification have not been tested by us and no guarantee as to their operating ability or efficiency is given. All photographs and measurements have been taken as a guide only and are not precise. Floor plans where included are not to scale and accuracy is not guaranteed. If you require clarification or further information on any points, please contact us, especially if you are travelling some distance to view. Fixtures and fittings other than those mentioned are to be agreed with the seller.
Kedleston Close, Belper, Derbyshire, DE56
Additional Information
-
Property refQBP260129
-
EPCC
-
TenureLeasehold
-
Council TaxB
-
Local authorityAmber Valley Borough Council
-
Ground RentContact the branch
-
Ground Rent ReviewContact the branch
-
Service ChargeContact the branch
The pin shows the exact address of the property
Energy Efficiency Rating
Very energy efficient - lower running costs
Not energy efficient - higher running costs
Current
74Potential
86CO2 Rating
Very energy efficient - lower running costs
Not energy efficient - higher running costs
