This calculator provides a guide to the amount of residential stamp duty you may pay and does not guarantee this will be the actual cost. This calculation is based on the Stamp Duty Land Tax Rates for residential properties purchased from 23rd September 2022 and second homes from 31st October 2024. For more information on Stamp Duty Land Tax, click here.
1 bedroom Flat for sale, Springwood Gardens, Belper, Derbyshire, DE56
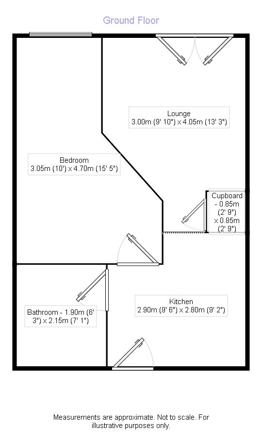
Features and Description
Lady Well Views is an over 55's retirement development a stone's throw from Belper town centre. Built in 2008 the development offers self contained apartments where residents can live independently whilst having the support and reassurance on site staff. Other benefits include an intercom pull cord emergency call system, secure camera entry system, residents lounge for social activities/meetings and a laundry room.
Kitchen
2.9mx 2.8m
Comprising of a stylish wood effect kitchen made up of wall, base and drawer units. Contrasting worktops house the inset sink and four ring electric hob. An oven with overhead extraction is integrated with the kitchen. Further to this there is a space and point for a washing machine and access to the adjoining living area.
Lounge Diner
13'3" x 10'0" (4.04m x 3.05m)
Boasting a Southey facing Juliet style balcony that provide delight far reaching views and a television point.
Bedroom
15'5" x 10'0" (4.70m x 3.05m)
A well proportioned double bedroom with window to the rear aspect.
Shower Room
6'3" x 7'1" (1.90m x 2.16m)
Comprising of a modern white suite that includes a low level wc, hand wash basin and double shower cubicle with main shower and disability aids.
IMPORTANT NOTE TO POTENTIAL PURCHASERS:
We endeavour to make our particulars accurate and reliable, however, they do not constitute or form part of an offer or any contract and none is to be relied upon as statements of representation or fact. The services, systems and appliances listed in this specification have not been tested by us and no guarantee as to their operating ability or efficiency is given. All photographs and measurements have been taken as a guide only and are not precise. Floor plans where included are not to scale and accuracy is not guaranteed. If you require clarification or further information on any points, please contact us, especially if you are travelling some distance to view. Fixtures and fittings other than those mentioned are to be agreed with the seller.
Springwood Gardens, Belper, Derbyshire, DE56
Additional Information
-
Property refQBP260138
-
EPCB
-
TenureLeasehold
-
Ground RentContact the branch
-
Ground Rent ReviewContact the branch
-
Service ChargeContact the branch
The pin shows the exact address of the property
Energy Efficiency Rating
Very energy efficient - lower running costs
Not energy efficient - higher running costs
Current
84Potential
89CO2 Rating
Very energy efficient - lower running costs
Not energy efficient - higher running costs
