This calculator provides a guide to the amount of residential stamp duty you may pay and does not guarantee this will be the actual cost. This calculation is based on the Stamp Duty Land Tax Rates for residential properties purchased from 23rd September 2022 and second homes from 31st October 2024. For more information on Stamp Duty Land Tax, click here.
2 bedroom Flat for sale, Wortley Road, High Green, South Yorkshire, S35
Features and Description
- Sought-after Sheffield S35 location
- Chain-free first-floor apartment
- Open-plan living and kitchen
- Juliette balcony with pleasant outlooks
- Two double bedrooms with wardrobes
- Modern kitchen with integrated appliances
- Fully tiled bathroom with white suite
- EPC rating C, Council Tax B
- Close to shops, cafés, amenities
- Excellent bus and rail connections
This two-bedroom flat is offered for sale in good condition and is located in a sought-after area of Sheffield, ideal for first-time buyers and investors. Situated on the first floor, the chain-free apartment provides a practical layout with an open-plan reception room and kitchen forming the main living space.
The reception area includes a defined dining space and a Juliette balcony, bringing in natural light and offering pleasant outlooks. The open-plan kitchen is fitted with integrated appliances, providing a modern and functional cooking area.
Both bedrooms are doubles and benefit from fitted wardrobes, offering built-in storage. The bathroom features a white suite and is fully tiled, providing a clean and low-maintenance finish. The property has an EPC rating of C and falls within Council Tax Band B.
The flat is well positioned for local amenities, with shops, cafés and everyday services available nearby within the S35 district. There are local schools in the surrounding area, supporting a range of age groups. Nearby parks and green spaces provide opportunities for walking and recreation.
Public transport links are accessible, with bus services connecting to Sheffield city centre and surrounding neighbourhoods. Rail connections from nearby Chapeltown station offer routes into Sheffield and beyond, with journey times into central Sheffield typically around 15–20 minutes, making the property suitable for commuting.
Location
The flat is well positioned for local amenities, with shops, cafés and everyday services available nearby within the S35 district. There are local schools in the surrounding area, supporting a range of age groups. Nearby parks and green spaces provide opportunities for walking and recreation. Public transport links are accessible, with bus services connecting to Sheffield city centre and surrounding neighbourhoods. Rail connections from nearby Chapeltown station offer routes into Sheffield and beyond, with journey times into central Sheffield typically around 15–20 minutes, making the property suitable for commuting.
Overview
This two-bedroom flat is offered for sale in good condition and is located in a sought-after area of Sheffield, ideal for first-time buyers and investors. Situated on the first floor, the chain-free apartment provides a practical layout with an open-plan reception room and kitchen forming the main living space. The reception area includes a defined dining space and a Juliette balcony, bringing in natural light and offering pleasant outlooks. The open-plan kitchen is fitted with integrated appliances, providing a modern and functional cooking area. Both bedrooms are doubles and benefit from fitted wardrobes, offering built-in storage. The bathroom features a white suite and is fully tiled, providing a clean and low-maintenance finish. The property has an EPC rating of C and falls within Council Tax Band B.
Parking
Secure electronic gated off-road parking with own remote key fob access, allocated numbered space and visitor parking.
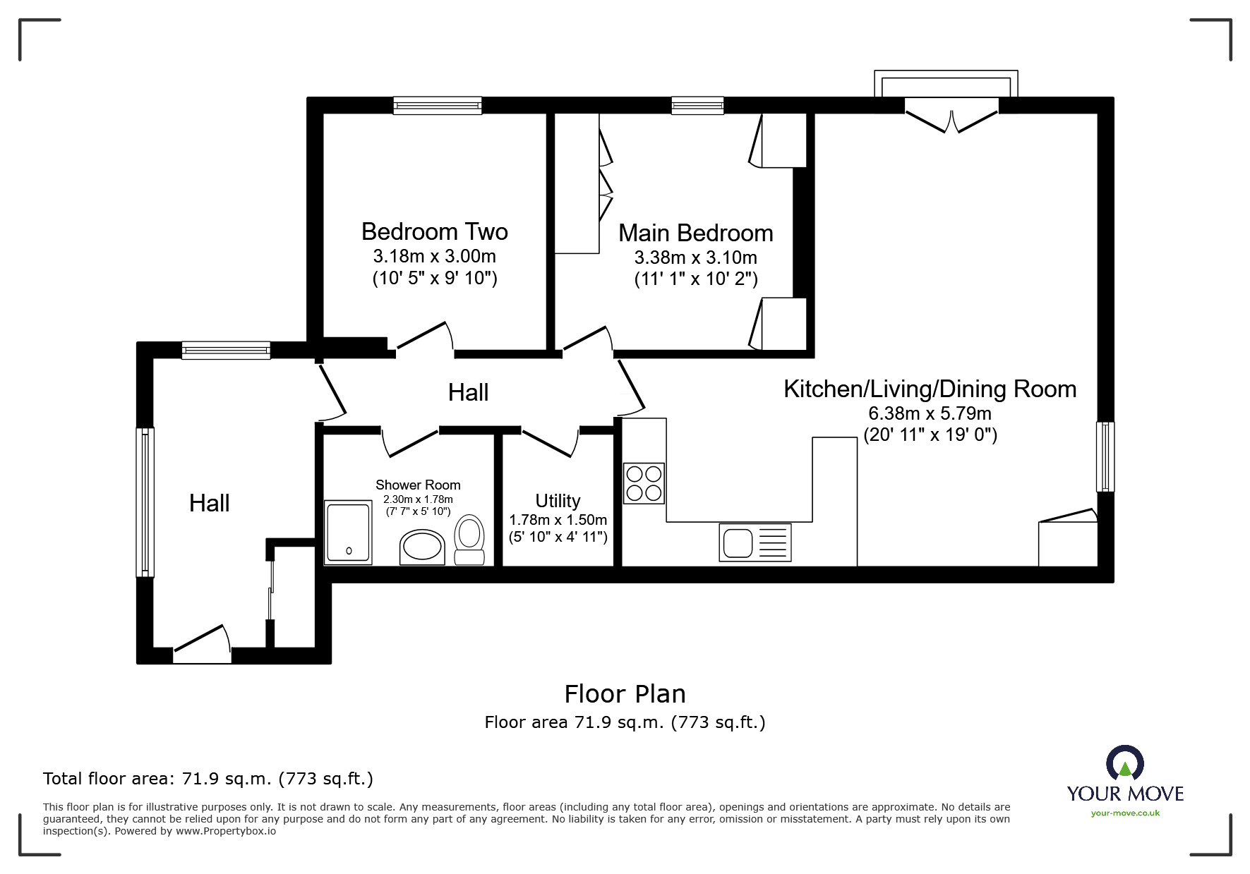
Hall
6'7" x 9'10" (2.00m x 3.00m)
One of just 4 apartments in the whole development to have this unique feature, letting you enjoy a spacious area for a breakfast table or work area/study. There is tiled flooring, with large sunny windows and a useful fitted storage cupboard. A door off the lobby leads into the entrance hall.
Kitchen / lounge / Diner
20'11" x 18'12" (6.38m x 5.79m)
This lovely open plan space benefits from windows to the side and French doors opening onto a Juliette balcony, this allows for ample natural light to flow into the room. The kitchen area is fitted with wall and base units with roll edge work surfaces and there is an integrated gas hob with oven below and extractor over. There is a sink with drainer and mixer tap over and space for under counter fridge.
Utility / Pantry Room
5'10" x 4'11" (1.78m x 1.50m)
Plumbing for washing machine, free-standing fridge freezer and tumble dryer. Also ample storage area which could be used as a pantry.
Bedroom 1
11'1" x 10'2" (3.38m x 3.10m)
Fitted with a matching bedroom suite comprising of wardrobes, drawers and bedside tables.
Bedroom 2
10'5" x 9'10" (3.18m x 3.00m)
Fitted with a matching bedroom suite comprising of wardrobes and drawers.
Shower Room
A white suite comprising of a low level w/c, pedestal sink and double walk in shower. The walls and floor are tiled and there is an extractor fan.
IMPORTANT NOTE TO POTENTIAL PURCHASERS:
We endeavour to make our particulars accurate and reliable, however, they do not constitute or form part of an offer or any contract and none is to be relied upon as statements of representation or fact. The services, systems and appliances listed in this specification have not been tested by us and no guarantee as to their operating ability or efficiency is given. All photographs and measurements have been taken as a guide only and are not precise. Floor plans where included are not to scale and accuracy is not guaranteed. If you require clarification or further information on any points, please contact us, especially if you are travelling some distance to view. Fixtures and fittings other than those mentioned are to be agreed with the seller.
Wortley Road, High Green, South Yorkshire, S35
Additional Information
-
Property refCHA260104
-
EPCC
-
TenureLeasehold
-
Lease length176 years
-
Council TaxA
-
Local authoritySheffield City Council
-
Ground Rent£100
-
Ground Rent ReviewContact the branch
-
Service Charge£1,184
Similar properties for sale by Your Move Chapeltown
This lovely open plan space benefits from windows to the side and French doors opening onto a Juliette balcony, this allows for ample natural light to flow into the room. The kitchen area is fitted with wall and base units with roll edge work surfaces and there is an integrated gas hob with oven below and extractor over. There is a sink with drainer and mixer tap over and space for under counter fridge.
Fitted with a matching bedroom suite comprising of wardrobes, drawers and bedside tables.
Fitted with a matching bedroom suite comprising of wardrobes and drawers.
The pin shows the exact address of the property
Energy Efficiency Rating
Very energy efficient - lower running costs
Not energy efficient - higher running costs
Current
80Potential
82CO2 Rating
Very energy efficient - lower running costs
Not energy efficient - higher running costs
