1 bedroom Flat to rent, Abbey Way, Battle, East Sussex, TN33
Features and Description
- One Double Bedroom Ground Floor Apartment
- Double Glazing and Electric Heating
- Rear Balcony
- Spacious Accommodation
- Allocated Off Road Parking
- Located in Battle Town Centre
- EPC Rating D
- Council Tax Band B
This well presented One Bedroom Ground Floor Apartment benefit's from the comforts of Double Glazing and modern electric heating.
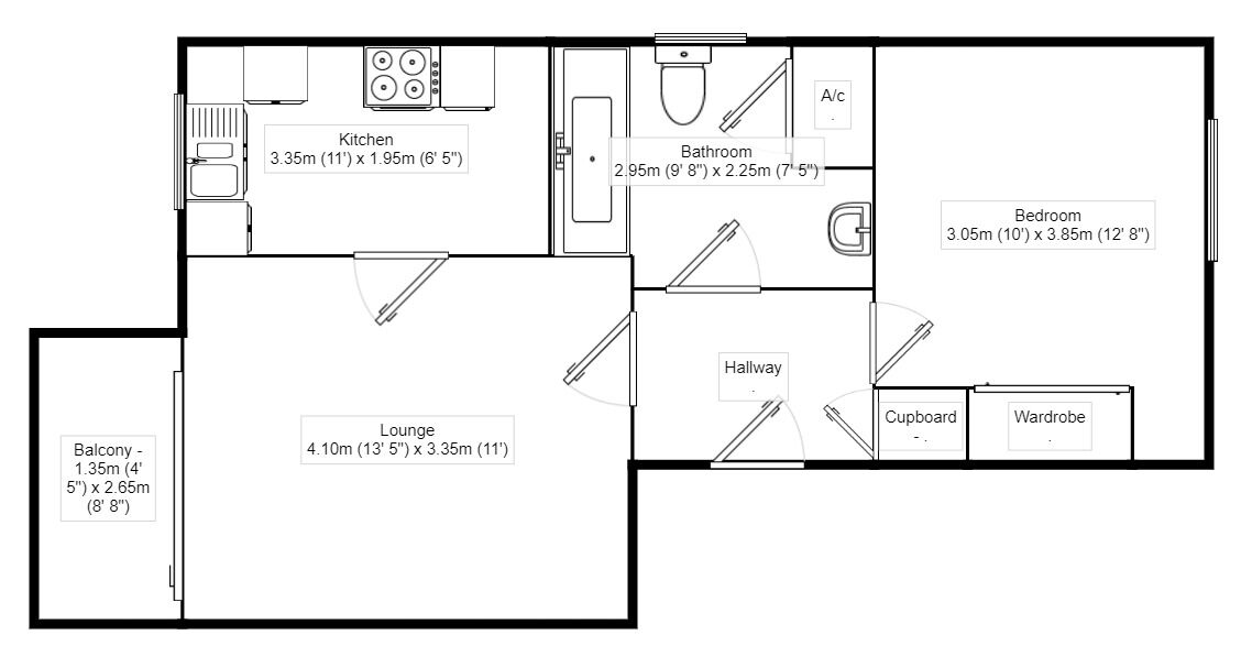
The spacious accommodation comprises a Living Room with access out on to the rear balcony; Modern Kitchen with built-in electric oven and hob; Double Bedroom with built-in wardrobe; and Bathroom/Wc with shower over the bath.
Outside, there is residents parking to the front of the building, with an allocated parking space for this flat located at the rear of the building.
Early viewing is highly recommended to avoid missing out.
Sorry No Pets.
Agents note: Photos taken prior to the current tenancy.
Location
Situated in the heart of the historic Town centre of Battle, having immediate access to the local shops and services within Battle, including the local Supermarket. Battle also offers a range of restaurants and Pubs, and Battle train station is just 2 minutes drive away but is also within reasonable walking distance, and offers direct links to London.
The nearby bus route offers regular services running into Hastings and surrounding areas.
Communal Entrance Hall
Entrance door to:
Entrance Hall
Door entry phone, Electric wall mounted heater, storage cupboard.
Living Room
13'8" x 10'12" (4.17m x 3.35m)
Wall mounted electric heater, TV aerial point, telephone point, satellite TV point, Double Glazed Sliding Doors leading out to:
Balcony
8'7" x 7'5" (2.62m x 2.26m)
With iron railings.
Kitchen
10'12" x 6'5" (3.35m x 1.96m)
Wall and base storage cupboard units with working surfaces over, inset electric hob with built-in electric oven under and cooker hood above, Double Glazed Window to rear aspect.
Bedroom
11'4" x 10'0" (3.45m x 3.05m)
Double Glazed Window to front aspect, wall mounted electric heater, built-in wardrobe cupboard.
Bathroom / Wc
9'1" x 7'5" (2.77m x 2.26m)
White bath suite comprising panelled bath with with mixer shower over, wash hand basin, low level Wc, wall mounted electric heater, airing cupboard housing hot water cylinder.
IMPORTANT NOTE TO POTENTIAL RENTERS:
We endeavour to make our particulars accurate and reliable, however, they do not constitute or form part of an offer or any contract and none is to be relied upon as statements of representation or fact. The services, systems and appliances listed in this specification have not been tested by us and no guarantee as to their operating ability or efficiency is given. All photographs and measurements have been taken as a guide only and are not precise. Floor plans where included are not to scale and accuracy is not guaranteed. If you require clarification or further information on any points, please contact us, especially if you are travelling some distance to view.
All properties are available for a minimum length of time, with the exception of short term accommodation. Please contact the branch for details. A security deposit of at least one month’s rent is required. Rent is to be paid one month in advance. It is the tenant’s responsibility to insure any personal possessions. Payment of all utilities including water rates or metered supply and Council Tax is the responsibility of the tenant in every case.
Abbey Way, Battle, East Sussex, TN33
Door entry phone, Electric wall mounted heater, storage cupboard.
Wall mounted electric heater, TV aerial point, telephone point, satellite TV point, Double Glazed Sliding Doors leading out to:
Double Glazed Window to front aspect, wall mounted electric heater, built-in wardrobe cupboard.
The pin shows the exact address of the property
Energy Efficiency Rating
Very energy efficient - lower running costs
Not energy efficient - higher running costs
Current
57Potential
75CO2 Rating
Very energy efficient - lower running costs
Not energy efficient - higher running costs
