1 bedroom Flat to rent, Christchurch Avenue, Tunbridge Wells, Kent, TN1
Available Unfurnished, from 17/04/2026
Features and Description
- Stylish, newly updated bathroom
- Recently refurbished throughout
- Close to local amenities, transport links, and Tunbridge Wells town centre
- Ideal for professionals or couples
- Early viewing highly recommended
- Modern fitted kitchen with Appliances
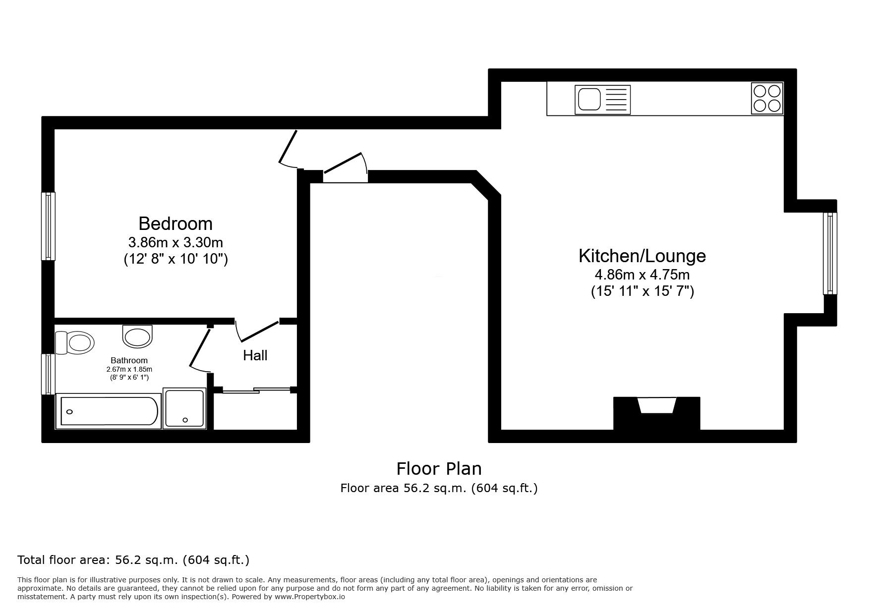
New Carpets going in! This stylish property has been thoughtfully updated throughout, offering a fresh living space ideal for professionals or couples. The flat features a bright and spacious open-plan living area, finished with contemporary décor and high-quality flooring, creating a welcoming environment for both relaxing and entertaining.
The newly fitted kitchen is sleek and functional, complete with modern appliances and ample storage. The generously sized double bedroom benefits from plenty of natural light, while the updated bathroom boasts a clean, modern suite with quality fittings.
Situated in a sought-after residential area, the property offers convenient access to local amenities, transport links, and the vibrant town centre of Tunbridge Wells.
Early viewing is highly recommended to fully appreciate the quality and location of this fantastic home.
Security Deposit: £1384.00 Holding Deposit: £276.00 EPC Grade: D. Council Tax Band C.
IMPORTANT NOTE TO POTENTIAL RENTERS:
We endeavour to make our particulars accurate and reliable, however, they do not constitute or form part of an offer or any contract and none is to be relied upon as statements of representation or fact. The services, systems and appliances listed in this specification have not been tested by us and no guarantee as to their operating ability or efficiency is given. All photographs and measurements have been taken as a guide only and are not precise. Floor plans where included are not to scale and accuracy is not guaranteed. If you require clarification or further information on any points, please contact us, especially if you are travelling some distance to view.
All properties are available for a minimum length of time, with the exception of short term accommodation. Please contact the branch for details. A security deposit of at least one month’s rent is required. Rent is to be paid one month in advance. It is the tenant’s responsibility to insure any personal possessions. Payment of all utilities including water rates or metered supply and Council Tax is the responsibility of the tenant in every case.
Christchurch Avenue, Tunbridge Wells, Kent, TN1
Additional Information
-
Property refTUN260221
-
EPCD
-
Council TaxC
-
Local authorityTunbridge Wells Borough Council
Your Move Letting Agents Tunbridge Wells
Rental Tools
Similar properties to rent by Your Move Tunbridge Wells
The pin shows the exact address of the property
Energy Efficiency Rating
Very energy efficient - lower running costs
Not energy efficient - higher running costs
Current
55Potential
80CO2 Rating
Very energy efficient - lower running costs
Not energy efficient - higher running costs
