2 bedroom Flat to rent, Gray Street, Northampton, NN1
Available from 30/04/2026
Features and Description
- EPC Rating B
Available immediately is this two bedroom, duplex apartment situated in the heart of Northampton Town Centre. The property comprises a house that has been converted into two apartments.
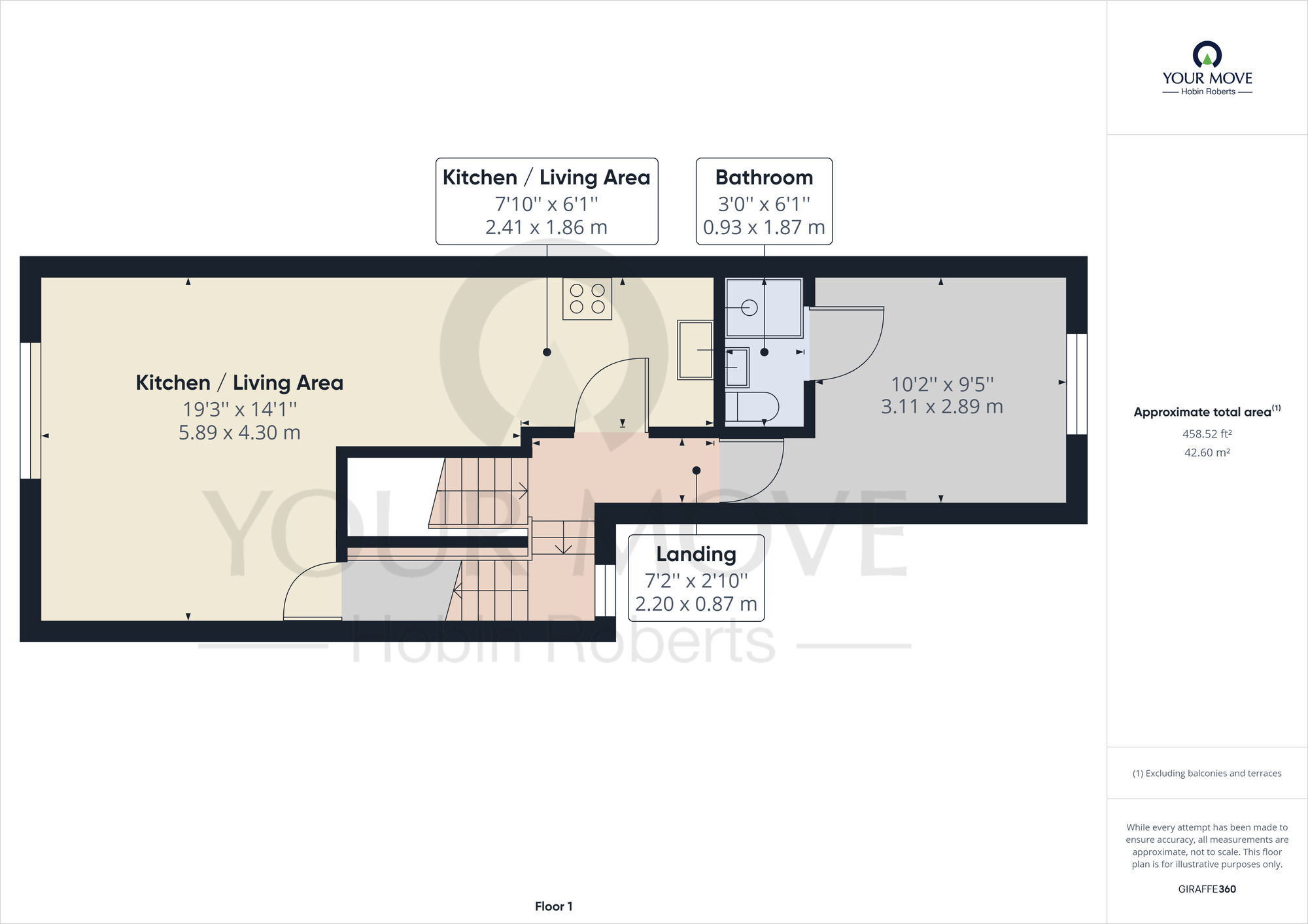
The first floor apartment features a large open plan kitchen/living area. There is a bedroom on the first floor and also on the second floor. Both bedrooms benefit from modern three-piece en-suite shower rooms.
The kitchen is fitted with a range of eye-level and base-level units and is finished to a high specification.
There is also access to a shared garden which is low maintenance.
Gray Street is in the heart of the popular residential location of The Mounts. Traditionally Victorian terraces, the property is within walking distance of the Barrack Road where you will find a host of shops, restaurants, cafes and public houses. The property is also within close proximity to the Racecourse Park and is conveniently located for access to The Mounts Baths, Northampton central bus station and the Grosvenor Shopping Centre. Northampton Train Station is approximately 0.5 of a mile from the property and provides a mainline service to London Euston in under one hour. Additionally, bus links are very accessible around the town too.
IMPORTANT NOTE TO POTENTIAL RENTERS:
We endeavour to make our particulars accurate and reliable, however, they do not constitute or form part of an offer or any contract and none is to be relied upon as statements of representation or fact. The services, systems and appliances listed in this specification have not been tested by us and no guarantee as to their operating ability or efficiency is given. All photographs and measurements have been taken as a guide only and are not precise. Floor plans where included are not to scale and accuracy is not guaranteed. If you require clarification or further information on any points, please contact us, especially if you are travelling some distance to view.
All properties are available for a minimum length of time, with the exception of short term accommodation. Please contact the branch for details. A security deposit of at least one month’s rent is required. Rent is to be paid one month in advance. It is the tenant’s responsibility to insure any personal possessions. Payment of all utilities including water rates or metered supply and Council Tax is the responsibility of the tenant in every case.
Gray Street, Northampton, NN1
Additional Information
-
Property refQNT220224
-
EPCB
-
Council TaxNA
Your Move Letting Agents Northampton
Rental Tools
The pin shows the exact address of the property
Energy Efficiency Rating
Very energy efficient - lower running costs
Not energy efficient - higher running costs
Current
84Potential
84CO2 Rating
Very energy efficient - lower running costs
Not energy efficient - higher running costs
