1 bedroom Flat to rent, Halls Court, Stoney Stanton, Leicestershire, LE9
Features and Description
- One Bedroom Flat
- First Floor
- Popular Village Location
- Available Now
- Residents Parking
- Local Amenities Nearby
- White Goods Included
- Option to Include Furniture
- Initial 6 month contract with an option to extend
- Utility Room
- Council Tax Band A
- EPC Rating D
Your Move are delighted to market for let this well presented, unfurnished first floor one bedroom apartment in the popular village of Stoney Stanton.
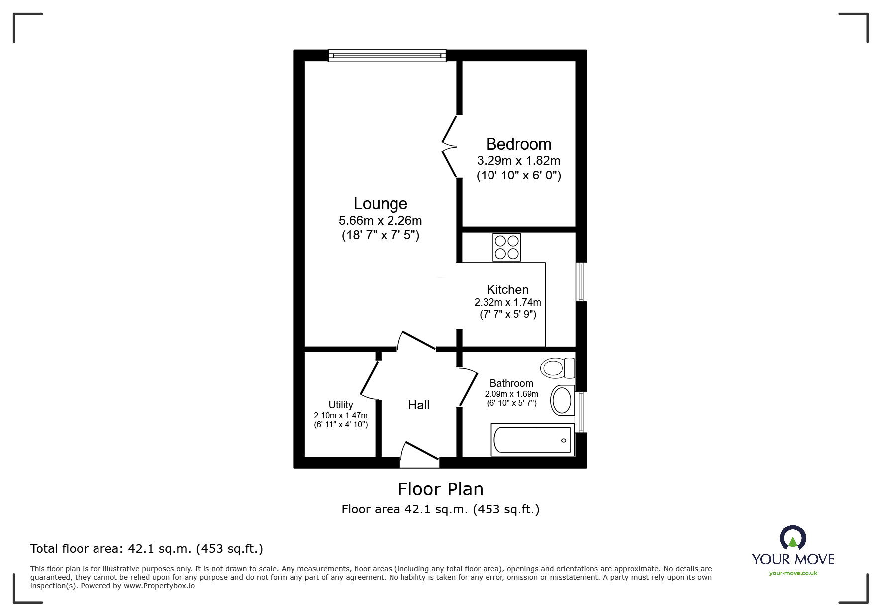
Attractively presented, viewing is definitely required, and the property briefly comprises an entrance hall, open plan Lounge/Dining area, Kitchen, Double Bedroom, Bathroom and Utility Room.
Also benefiting from UPVC double glazing, electric heating and residents parking.
Location
Stoney Stanton is a quaint village on the outskirts of Burbage. The village hosts an array of public houses, eateries, shops, boutiques an exceptional local school (Manorfield C of E) and also has the famous Stoney Cove diving centre. The location is perfect for those wanting a semi rural lifestyle but still offers excellent transport links into Leicester, Hinckley or Coventry.
Property
Your Move are delighted to market for let this well presented, unfurnished first floor one bedroom apartment in the popular village of Stoney Stanton.Attractively presented, viewing is definitely required, and the property briefly comprises an entrance hall, open plan Lounge/Dining area, Kitchen, Double Bedroom, Bathroom and Utility Room.Also benefiting from UPVC double glazing, electric heating and residents parking.
Lounge
Large open plan lounge diner leading to the compact, functional kitchen
Kitchen
Modern kitchen benefitting from oven, hob, fridge freezer and washing machine
Bedroom
Double bedroom off the lounge
Bathroom
Spacious and consisting of a shower above the bath, wc and vanity sink
Utility Room
Useful area where the fridge freezer is located and plenty of of space for storage and laundry.
IMPORTANT NOTE TO POTENTIAL RENTERS:
We endeavour to make our particulars accurate and reliable, however, they do not constitute or form part of an offer or any contract and none is to be relied upon as statements of representation or fact. The services, systems and appliances listed in this specification have not been tested by us and no guarantee as to their operating ability or efficiency is given. All photographs and measurements have been taken as a guide only and are not precise. Floor plans where included are not to scale and accuracy is not guaranteed. If you require clarification or further information on any points, please contact us, especially if you are travelling some distance to view.
All properties are available for a minimum length of time, with the exception of short term accommodation. Please contact the branch for details. A security deposit of at least one month’s rent is required. Rent is to be paid one month in advance. It is the tenant’s responsibility to insure any personal possessions. Payment of all utilities including water rates or metered supply and Council Tax is the responsibility of the tenant in every case.
Halls Court, Stoney Stanton, Leicestershire, LE9
Large open plan lounge diner leading to the compact, functional kitchen
Modern kitchen benefitting from oven, hob, fridge freezer and washing machine
Double bedroom off the lounge
Spacious and consisting of a shower above the bath, wc and vanity sink
The pin shows the exact address of the property
Energy Efficiency Rating
Very energy efficient - lower running costs
Not energy efficient - higher running costs
Current
66Potential
75CO2 Rating
Very energy efficient - lower running costs
Not energy efficient - higher running costs
