2 bedroom Flat to rent, High Street, Whitton, Twickenham, TW2
Available Unfurnished, from 14/03/2026
Features and Description
- 2 Bedrooms
- First Floor Flat
- Recently Redecorated
- Central Whitton
- Modern Shower Room
- Council Tax Band C
Situated in a central location- a stones throw from Whitton station and the high street, with its range of local shops. We have available this well presented two bedroom first floor flat. It would be ideal for couple to make their home. Benefiting from a bright and airy well fitted kitchen open to lounge area, with newly fitted carpets throughout & modern shower room w/c. EPC grade C-Council Tax- Richmond Band C.
Location
The property is situated within close proximity to Whitton High Street with a wide range of shops for your convenience as well as Whitton Mainline Station which serves London Waterloo on the fast services in less than 30 minutes. The local Infant and Junior Schools are Chase Bridge, Nelson, Bishop Perrin and St Edmunds. The local secondary schools would be The Richmond Upon Thames, Turing House & Twickenham. Other benefits are local bus routes including the H22, 281,110 and 481. Whitton also benefits from several parks and open spaces including Crane Park and Murray Park.
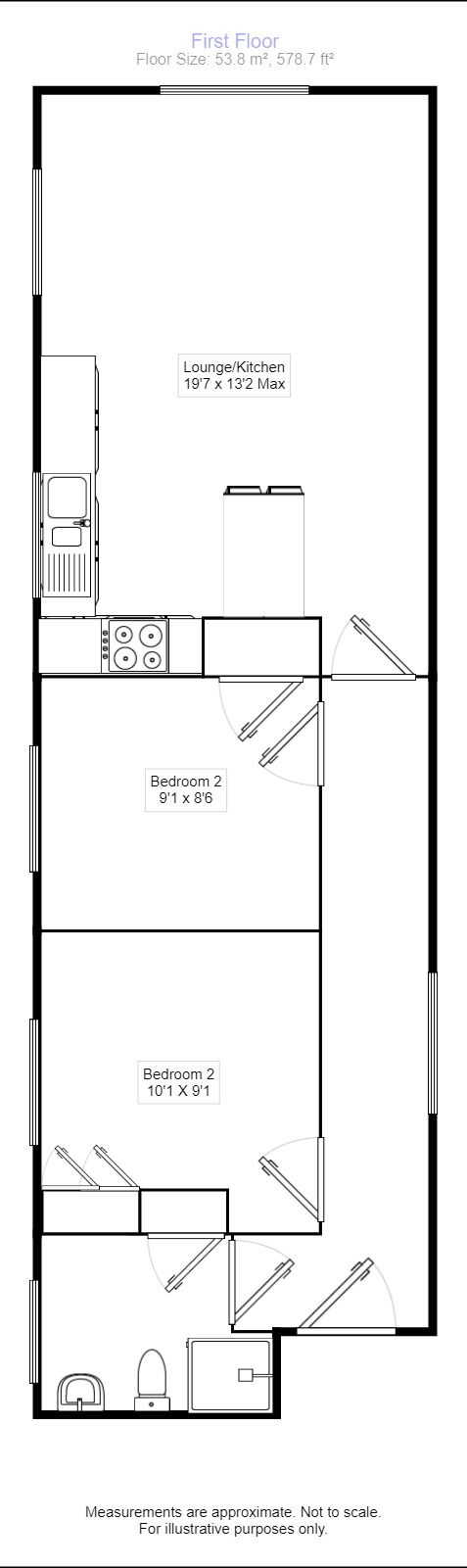
Open Living / Kitchen
19'7" x 13'2" (5.97m x 4.01m)
Max
Bedroom 1
3.07m x2.77m
Bedroom 2
9'1" x 8'6" (2.77m x 2.60m)
Shower Room WC
7'11" x 6'1" (2.41m x 1.85m)
IMPORTANT NOTE TO POTENTIAL RENTERS:
We endeavour to make our particulars accurate and reliable, however, they do not constitute or form part of an offer or any contract and none is to be relied upon as statements of representation or fact. The services, systems and appliances listed in this specification have not been tested by us and no guarantee as to their operating ability or efficiency is given. All photographs and measurements have been taken as a guide only and are not precise. Floor plans where included are not to scale and accuracy is not guaranteed. If you require clarification or further information on any points, please contact us, especially if you are travelling some distance to view.
All properties are available for a minimum length of time, with the exception of short term accommodation. Please contact the branch for details. A security deposit of at least one month’s rent is required. Rent is to be paid one month in advance. It is the tenant’s responsibility to insure any personal possessions. Payment of all utilities including water rates or metered supply and Council Tax is the responsibility of the tenant in every case.
High Street, Whitton, Twickenham, TW2
Additional Information
-
Property refWTT210295
-
EPCC
-
Council TaxC
-
Local authorityLondon Borough Of Richmond Upon Thames
Your Move Letting Agents Whitton
Rental Tools
Max
The pin shows the exact address of the property
Energy Efficiency Rating
Very energy efficient - lower running costs
Not energy efficient - higher running costs
Current
76Potential
77CO2 Rating
Very energy efficient - lower running costs
Not energy efficient - higher running costs
