2 bedroom House to rent, Chennells Close, Hitchin, Hertfordshire, SG4
Features and Description
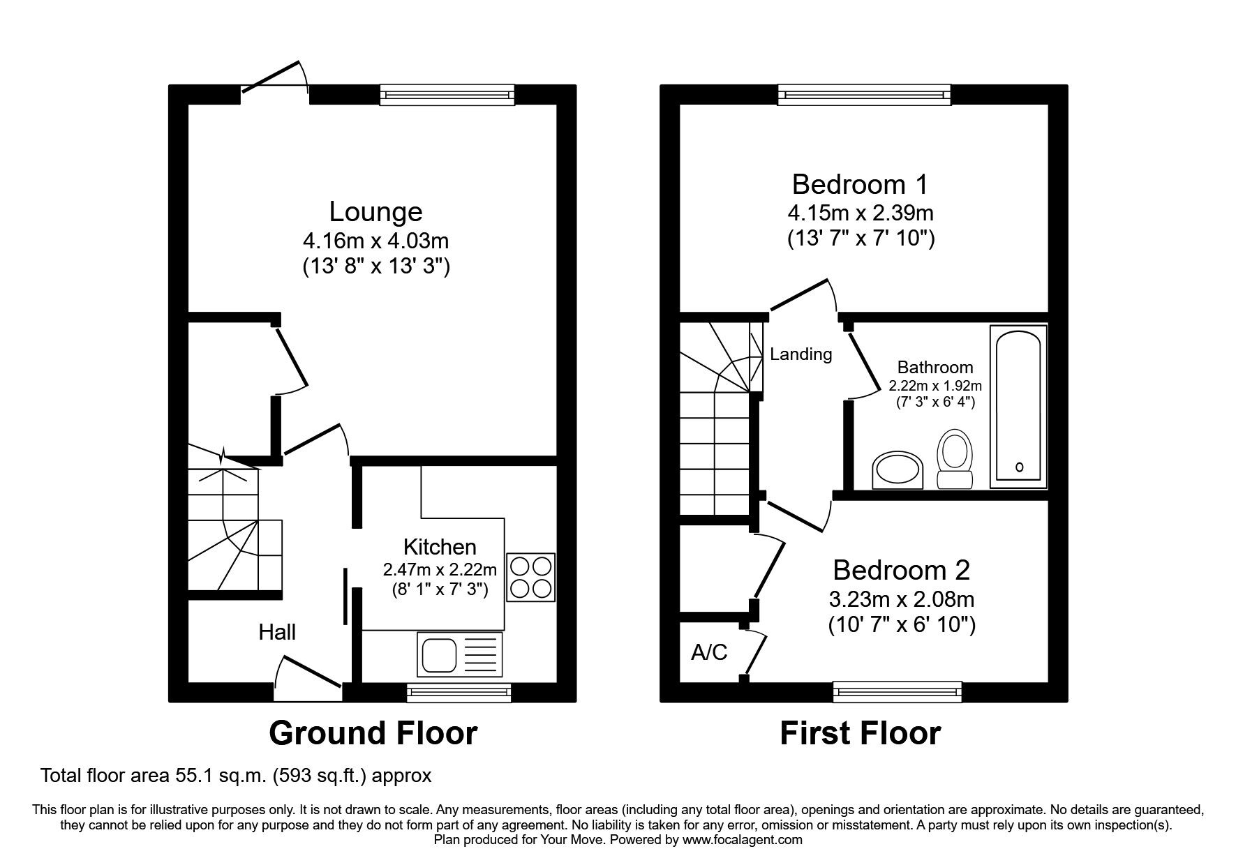
- Cul De Sac Location
- Two Bedrooms
- Completely Refurbished
- Allocated Parking
- Garden
- EPC Rating D
- Un-furnished
Pick of the week. Cul-de-sac location in a very popular area of Hitchin. Two bedroom terraced home which offers the space and versatility to incorporate the ever increasing needs of today's modern family lifestyle. Conveniently located for transport links including Hitchin main line train station.
Available now.
Call to arrange your viewing!
IMPORTANT NOTE TO POTENTIAL RENTERS:
We endeavour to make our particulars accurate and reliable, however, they do not constitute or form part of an offer or any contract and none is to be relied upon as statements of representation or fact. The services, systems and appliances listed in this specification have not been tested by us and no guarantee as to their operating ability or efficiency is given. All photographs and measurements have been taken as a guide only and are not precise. Floor plans where included are not to scale and accuracy is not guaranteed. If you require clarification or further information on any points, please contact us, especially if you are travelling some distance to view.
All properties are available for a minimum length of time, with the exception of short term accommodation. Please contact the branch for details. A security deposit of at least one month’s rent is required. Rent is to be paid one month in advance. It is the tenant’s responsibility to insure any personal possessions. Payment of all utilities including water rates or metered supply and Council Tax is the responsibility of the tenant in every case.
Additional Information
-
Property refHIT260038
-
Council TaxC
-
Local authorityNorth Herts District Council
