This calculator provides a guide to the amount of residential stamp duty you may pay and does not guarantee this will be the actual cost. This calculation is based on the Stamp Duty Land Tax Rates for residential properties purchased from 23rd September 2022 and second homes from 31st October 2024. For more information on Land and Buildings Transaction Tax, click here.






Land/Plot for sale, Auldgirth, Dumfries, Dumfries and Galloway, DG2
Features and Description
- Wonderful Elevated Position
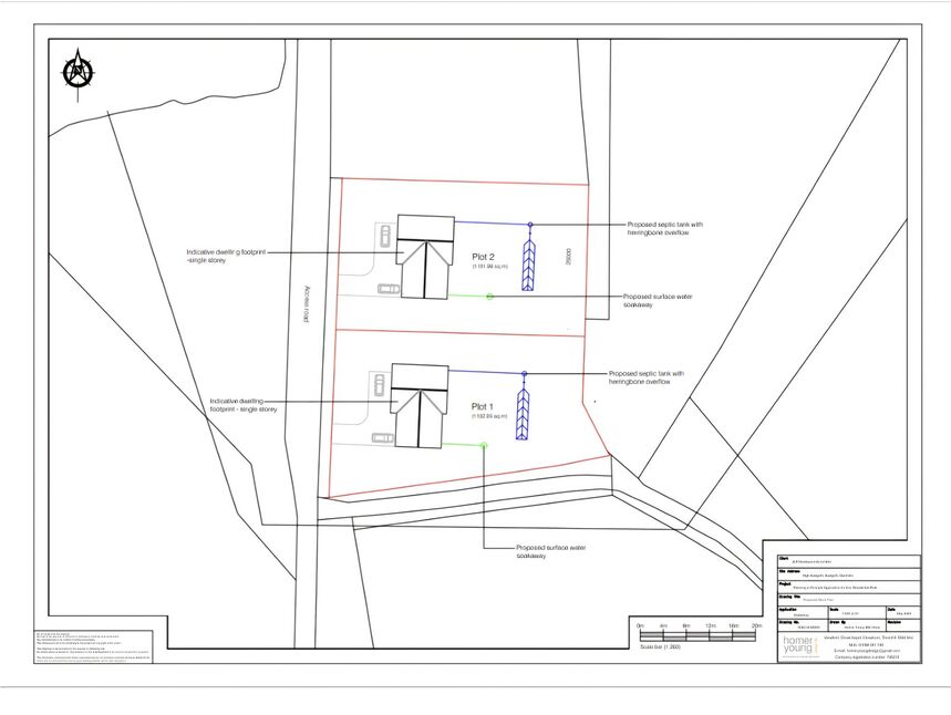
- Outline Planning Recently Approved
- Ref- 24/2385/PIP
- Easy Access To Major Road Links And Amenities
- Various Packages Available On Purchase And Build
- Exclusive Plots Rarely Offered To The Market
- Open Countryside Views
- Call Now To Enquire Further
Set within a stunning location you have this fantastic development opportunity. Outline planning recently approved ( Ref- 24/2385/PIP ) for a luxury home, on a premium elevated site.
This is a perfect opportunity for a developer looking for a new project or for those looking for their dream home.
Never built before but interested, we can arrange a project management package tailored to suit your requirements. We are offering a design and build option with our client.
Located in the village of Auldgirth, which lies seven miles from Dumfries town centre, this property has a wonderful rural setting but is well placed for access to local amenities. Dumfries town centre offers a wider range of amenities to include a variety of shops, restaurants, primary and secondary schools. The surrounding area offers a wide range of country pursuits including sailing, horse riding, mountain biking, fishing, golfing, bird watching, shooting and numerous coastal and woodland walks. The M74 provides transport links to the north and south and is approximately 25 miles to the east. Dumfries also has a mainline railway station.
IMPORTANT NOTE TO POTENTIAL PURCHASERS:
We endeavour to make our particulars accurate and reliable, however, they do not constitute or form part of an offer or any contract and none is to be relied upon as statements of representation or fact. The services, systems and appliances listed in this specification have not been tested by us and no guarantee as to their operating ability or efficiency is given. All photographs and measurements have been taken as a guide only and are not precise. Floor plans where included are not to scale and accuracy is not guaranteed. If you require clarification or further information on any points, please contact us, especially if you are travelling some distance to view. Fixtures and fittings other than those mentioned are to be agreed with the seller.
Auldgirth, Dumfries, Dumfries and Galloway, DG2

Additional Information
-
Property refDUM250258
-
Council TaxNA
-
Local authorityDumfries & Galloway Council







The pin shows the exact address of the property
Energy Efficiency Rating
Very energy efficient - lower running costs
Not energy efficient - higher running costs
Current
N/APotential
N/ACO2 Rating
Very energy efficient - lower running costs
Not energy efficient - higher running costs