This calculator provides a guide to the amount of residential stamp duty you may pay and does not guarantee this will be the actual cost. This calculation is based on the Stamp Duty Land Tax Rates for residential properties purchased from 23rd September 2022 and second homes from 31st October 2024. For more information on Land and Buildings Transaction Tax, click here.
Land/Plot for sale, Main Street, Kinglassie, Fife, KY5
Features and Description
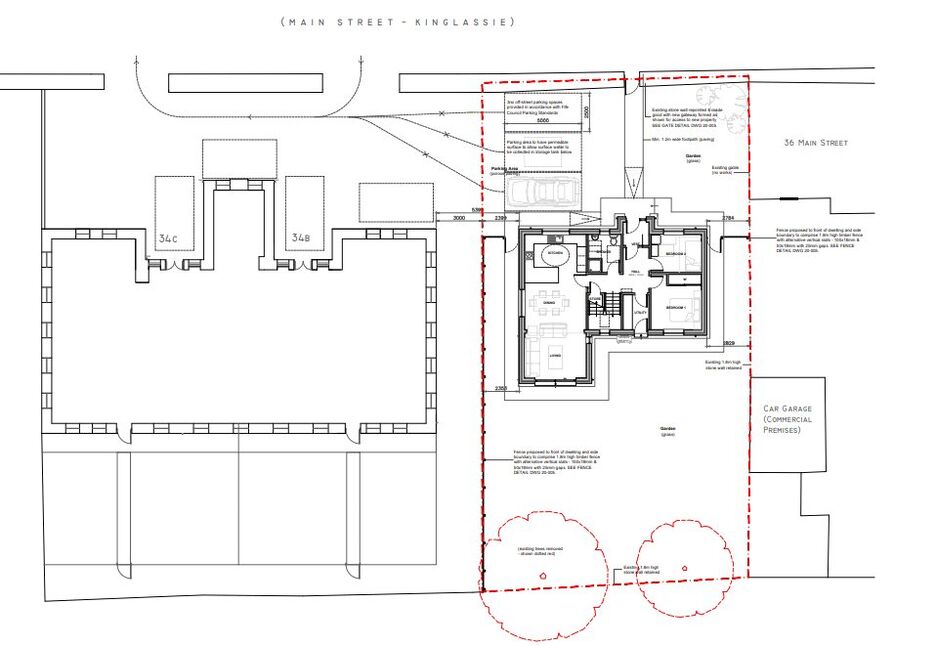
- Plot of Land approx 250 sqm
- Planning for four bedroom detached house
- Ideal self build
**Prime Development Opportunity in Kinglassie**
A superb plot of land located in the heart of Kinglassie, with full planning permission for a spacious four-bedroom detached home complete with private parking. The site enjoys a unique setting beside the historic former library building, now tastefully converted into two family residences, adding character and charm to the location.
The plot benefits from partially walled gardens, offering privacy and a sense of seclusion, while being private and not overlooked. This tranquil position combines rural appeal with convenient access to local amenities and transport links, making it an ideal choice for families or those seeking a bespoke home in a desirable village setting.
Location
Kinglassie is a charming village in central Fife, just a few minutes from Glenrothes and within easy reach of Kirkcaldy and Edinburgh. Surrounded by scenic countryside, it offers a peaceful setting with good transport links via the B921 and nearby rail stations at Thornton & Cardenden. The village provides essential amenities including a local primary school, convenience shops, community facilities, and quick access to larger retail and leisure options in Glenrothes. With its rich heritage and welcoming atmosphere, Kinglassie is ideal for families and commuters seeking a blend of rural charm and modern convenience.
IMPORTANT NOTE TO POTENTIAL PURCHASERS:
We endeavour to make our particulars accurate and reliable, however, they do not constitute or form part of an offer or any contract and none is to be relied upon as statements of representation or fact. The services, systems and appliances listed in this specification have not been tested by us and no guarantee as to their operating ability or efficiency is given. All photographs and measurements have been taken as a guide only and are not precise. Floor plans where included are not to scale and accuracy is not guaranteed. If you require clarification or further information on any points, please contact us, especially if you are travelling some distance to view. Fixtures and fittings other than those mentioned are to be agreed with the seller.
Main Street, Kinglassie, Fife, KY5
Additional Information
-
Property refGLE250580
-
TenureFreehold
-
Council TaxNA
-
Local authorityFife Council
Similar properties for sale by Your Move Glenrothes
The pin shows the exact address of the property
Energy Efficiency Rating
Very energy efficient - lower running costs
Not energy efficient - higher running costs
Current
N/APotential
N/ACO2 Rating
Very energy efficient - lower running costs
Not energy efficient - higher running costs
