This calculator provides a guide to the amount of residential stamp duty you may pay and does not guarantee this will be the actual cost. This calculation is based on the Stamp Duty Land Tax Rates for residential properties purchased from 23rd September 2022 and second homes from 31st October 2024. For more information on Stamp Duty Land Tax, click here.
Land/Plot for sale, Steyning Avenue, Peacehaven, East Sussex, BN10
Features and Description
- Land
- Peacehaven, East Sussex Location
- 1,382 m² GIA ( 874 m² residential NSA + 200 m² community)
- Mid-high specification coastal development
- Prime position near the Peacehaven seafront with open views
- Expected GDV: £5.5 million
- Local Council Authority - Lewes District Council
- Planning Permission Reference LW/25/0224
- For Sale By Modern Method of Auction
- Please contact Branch for Further Details
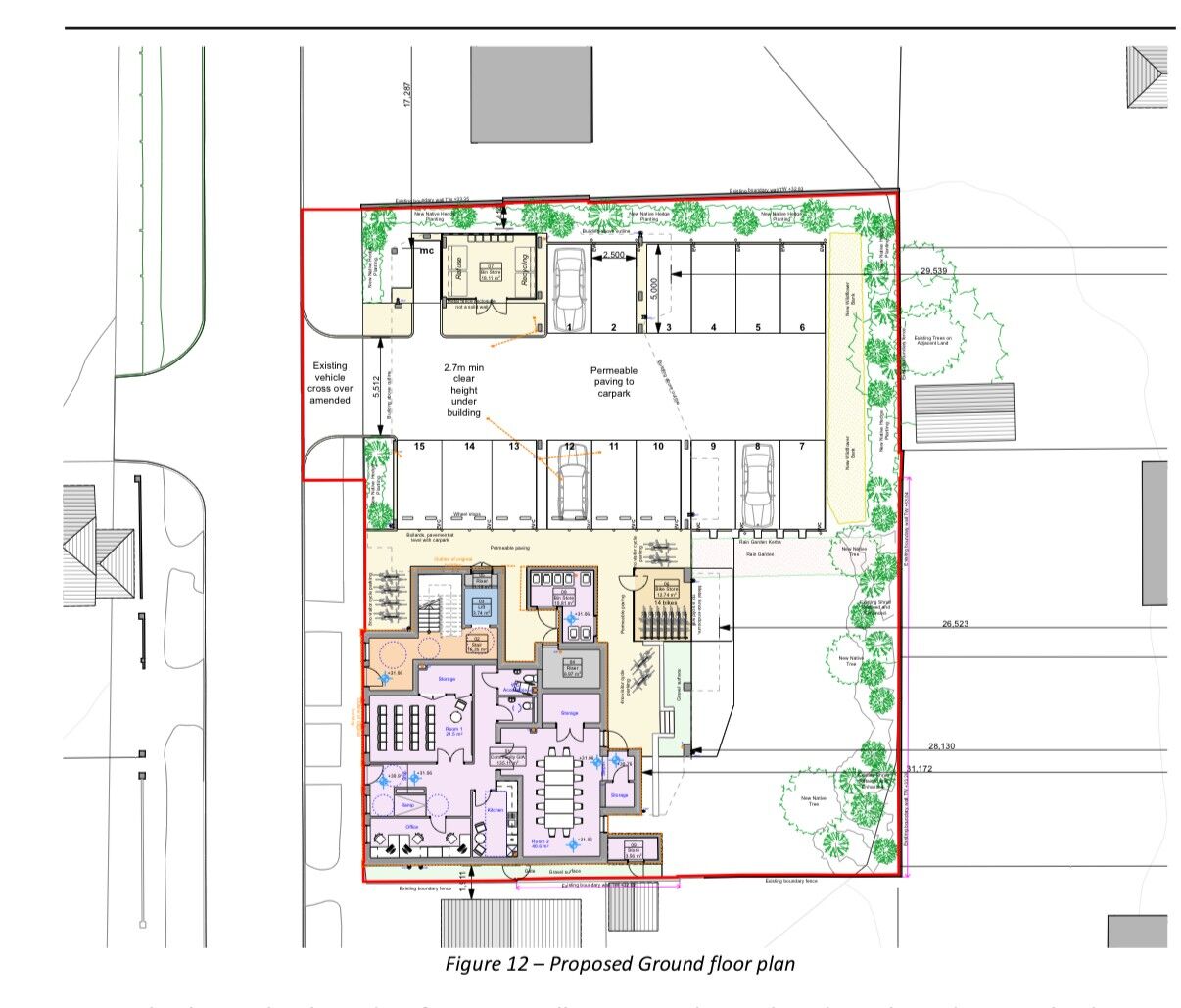
A rarely available building plot in the coastal town of Peacehaven, East Sussex with planning permission to demolish the current site and complete a substantial re development to build 14 new residential apartments and 2 community spaces. The break down of this comprises; 7 one bedroom apartments, 6 two bedroom apartments and 1 three bedroom apartment.
The site is well placed with its proximity to the A259. The local bus stop is a 2-minute walk away and provides a regular connection through Peacehaven and on to Brighton, Newhaven, Seaford and Eastbourne.
The nearest train station is in Newhaven and is a approximately a 16-minute bus journey away or a 15-minute cycle ride, with onward links by train to Lewes, Brighton, Eastbourne and London.
There is a Sainsbury's Local within a short walk of the site as well as a Co-op Food convenience store, numerous food outlets, local shops, a pharmacy and takeaways.
The nearest dentist is immediately adjacent to the site to the South.
There is an infant school and several lower and upper schools within approximately 20 minutes'
walk of the site. Public transport links are also available.
As well as the good level of service within walking distance and the onward public transport links, the
site is well located with the A259 connecting into Brighton and via the A26 onto the A27 with good
wider road links.
1,382 m² GIA ( 874 m² residential NSA + 200 m² community)
Mid-high specification coastal development
Prime position near the Peacehaven seafront with open views
Development Potential
Expected GDV: £5.5 million
Local Council Authority - Lewes District Council
Planning Permission Reference LW/25/0224
This land is for sale by the Modern Method of Auction, meaning the buyer and seller are to Complete within 56 days (the "Reservation Period"). Interested parties personal data will be shared with the Auctioneer (iamsold).
If considering buying with a mortgage, inspect and consider the land carefully with your lender before bidding.
A Buyer Information Pack is provided. The winning bidder will pay £349.00 including VAT for this pack which you must view before bidding.
The buyer signs a Reservation Agreement and makes payment of a non-refundable Reservation Fee of 4.5% of the purchase price including VAT, subject to a minimum of £6,600.00 including VAT. This is paid to reserve the property to the buyer during the Reservation Period and is paid in addition to the purchase price. This is considered within calculations for Stamp Duty Land Tax.
Services may be recommended by the Agent or Auctioneer in which they will receive payment from the service provider if the service is taken. Any payment that will be received by the Agent or Auctioneer will be confirmed to you in writing before services are taken. Services are optional.
IMPORTANT NOTE TO POTENTIAL PURCHASERS:
We endeavour to make our particulars accurate and reliable, however, they do not constitute or form part of an offer or any contract and none is to be relied upon as statements of representation or fact. The services, systems and appliances listed in this specification have not been tested by us and no guarantee as to their operating ability or efficiency is given. All photographs and measurements have been taken as a guide only and are not precise. Floor plans where included are not to scale and accuracy is not guaranteed. If you require clarification or further information on any points, please contact us, especially if you are travelling some distance to view. Fixtures and fittings other than those mentioned are to be agreed with the seller.
Steyning Avenue, Peacehaven, East Sussex, BN10
Additional Information
-
Property refQBG260021
-
TenureFreehold
-
Council TaxNA
-
Local authorityLewes District Council
Similar properties for sale by Your Move Brighton and Hove
The pin shows the exact address of the property
Energy Efficiency Rating
Very energy efficient - lower running costs
Not energy efficient - higher running costs
Current
N/APotential
N/ACO2 Rating
Very energy efficient - lower running costs
Not energy efficient - higher running costs
