This calculator provides a guide to the amount of residential stamp duty you may pay and does not guarantee this will be the actual cost. This calculation is based on the Stamp Duty Land Tax Rates for residential properties purchased from 23rd September 2022 and second homes from 31st October 2024. For more information on Stamp Duty Land Tax, click here.
2 bedroom Link Detached Flat for sale, Summerson Close, Rochester, ME1
Features and Description
- Immaculate two-bedroom flat
- Sought-after Rochester location
- Bright reception with large windows
- Kitchen with ample natural light
- Allocated parking included
- EPC rating C efficiency
- Close to Rochester High Street
- Easy access to London trains
- Near schools and green spaces
- Ideal for commuters and couples
This immaculate two-bedroom flat is offered for sale in a sought after location in Rochester. The property comprises a reception room with large windows, a kitchen benefiting from natural light, one double bedroom, one single bedroom, and a bathroom fitted with a three piece suite. The home further benefits from parking, EPC rating C and Council Tax Band B.
Situated in Rochester, the flat enjoys convenient access to a range of local amenities including shops, cafés and supermarkets in the town centre. Rochester High Street offers a variety of independent restaurants and pubs, along with historic attractions such as Rochester Castle and Rochester Cathedral.
There are several nearby schools in the wider area, catering for primary and secondary age groups, making the location suitable for households needing access to education facilities. Green spaces and nearby parks provide opportunities for outdoor recreation, while local walking and cycling routes allow residents to enjoy the surrounding area.
Public transport links are strong, with Rochester railway station providing regular services to London Victoria, London St Pancras International and other Kent destinations. Typical journey times to central London are around 40–50 minutes, making this an appealing option for commuters. Local bus services further connect Rochester with neighbouring towns and facilities.
Overall, this well-presented flat offers practical accommodation with parking, good transport connections and access to schools, amenities and green spaces within the Rochester area.
Location
This is an extremely popular residential area close to the heart of historic Rochester. The lively High Street is just a short walk away, here a great variety of places to eat and drink can be found. The new high speed rail link to London is also within easy walking distance. Rochester is home to a great range of highly regarded schools catering for all age groups, including the very popular King's School. The local motorway network is via the M2 and M20, so great access to London and the south coast. Rochester offers many amazing opportunities, whether that be basking in the history of the area, walks along the Esplanade, with stunning river views, or access to multiple transport links. The High speed train, can get you into London, within 38 minutes, making this are a commuters dream.
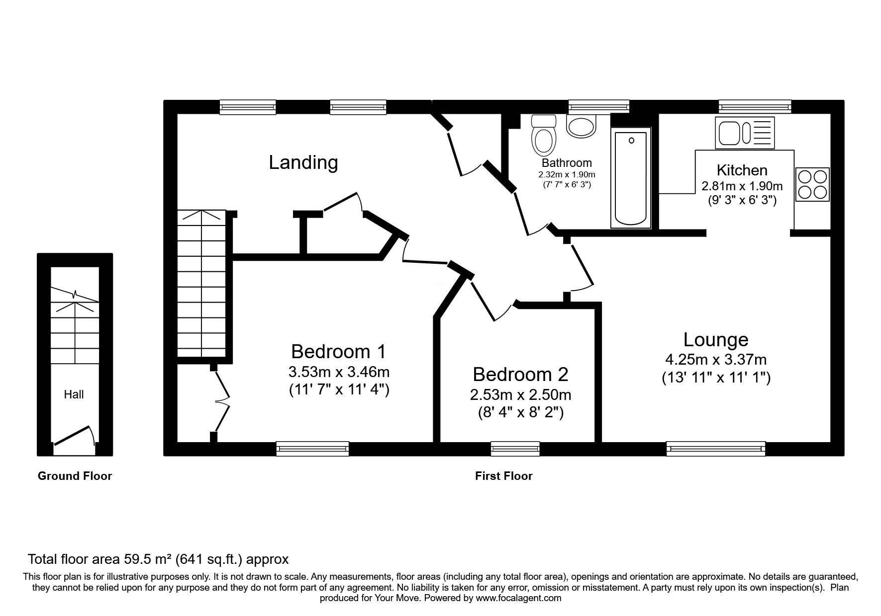
Bedroom 1
11'7" x 11'4" (3.53m x 3.45m)
Bedroom 2
8'4" x 8'2" (2.54m x 2.50m)
Bathroom
7'7" x 6'3" (2.30m x 1.90m)
Lounge
13'11" x 11'1" (4.24m x 3.38m)
Kitchen
9'3" x 6'3" (2.82m x 1.90m)
IMPORTANT NOTE TO POTENTIAL PURCHASERS:
We endeavour to make our particulars accurate and reliable, however, they do not constitute or form part of an offer or any contract and none is to be relied upon as statements of representation or fact. The services, systems and appliances listed in this specification have not been tested by us and no guarantee as to their operating ability or efficiency is given. All photographs and measurements have been taken as a guide only and are not precise. Floor plans where included are not to scale and accuracy is not guaranteed. If you require clarification or further information on any points, please contact us, especially if you are travelling some distance to view. Fixtures and fittings other than those mentioned are to be agreed with the seller.
Summerson Close, Rochester, ME1
Additional Information
-
Property refROC260042
-
EPCC
-
TenureLeasehold
-
Lease length120 years
-
Council TaxB
-
Local authorityMedway Council
-
Ground RentContact the branch
-
Ground Rent ReviewContact the branch
-
Service Charge£100
Similar properties for sale by Your Move Rochester
The pin shows the exact address of the property
Energy Efficiency Rating
Very energy efficient - lower running costs
Not energy efficient - higher running costs
Current
77Potential
91CO2 Rating
Very energy efficient - lower running costs
Not energy efficient - higher running costs
