This calculator provides a guide to the amount of residential stamp duty you may pay and does not guarantee this will be the actual cost. This calculation is based on the Stamp Duty Land Tax Rates for residential properties purchased from 23rd September 2022 and second homes from 31st October 2024. For more information on Stamp Duty Land Tax, click here.
3 bedroom Link Detached House for sale, Woodside Park, Wigton, Cumbria, CA7
Features and Description
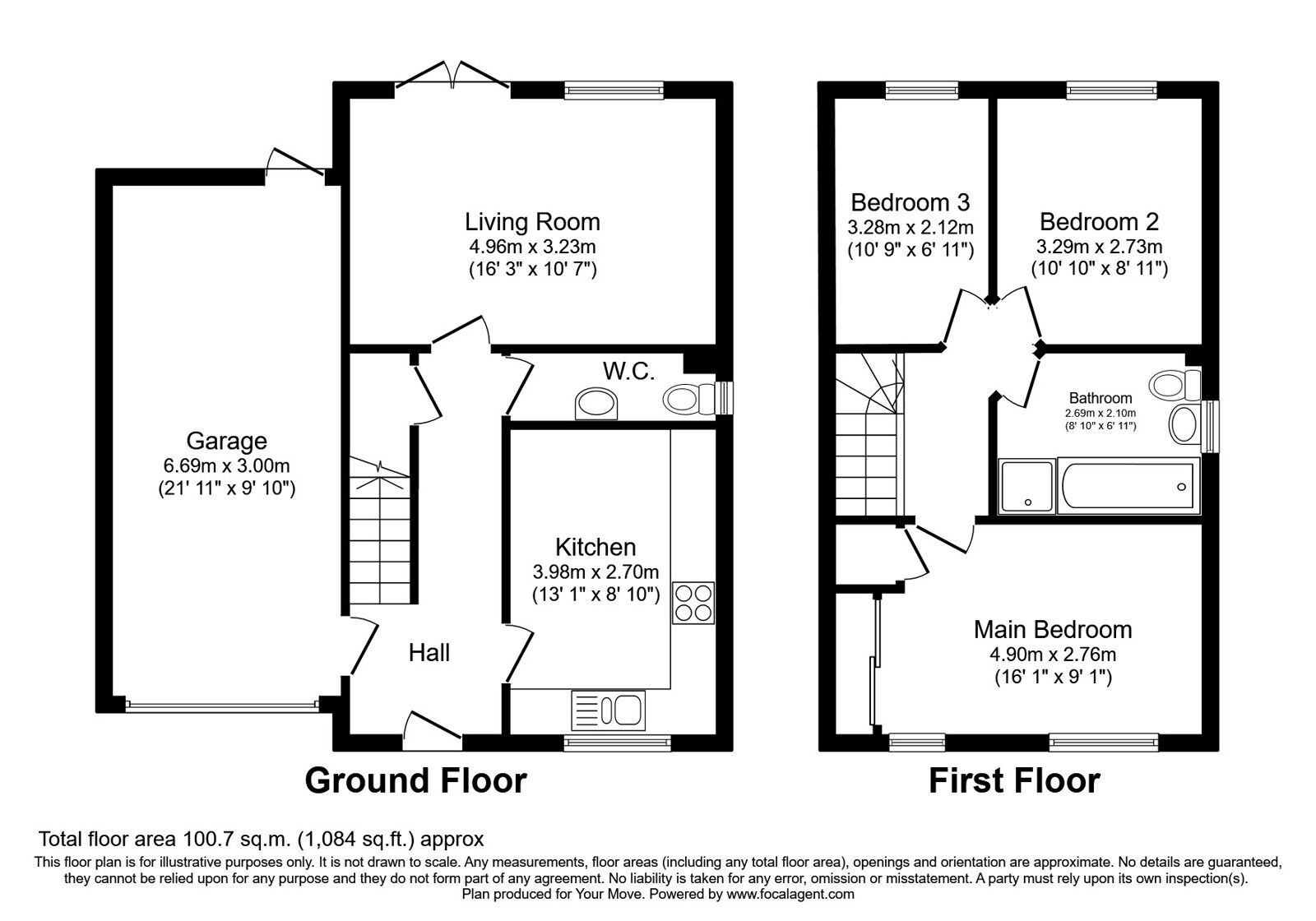
This link detached three bedroom fantastic family home is located on a popular residential estate. The property is tucked away at the edge of the estate allowing views over open countryside. The property comprises, entrance hallway, kitchen/dining room, w/c cloakroom and good size living room to the rear of the ground floor. To the first floor are two double and one single bedrooms. The family bathroom has bath, separate shower cubicle ideal for growing families. Outside to the front is extended driveway with parking for 4 cars, garage and to the side and rear is a good size enclosed garden. DO NOT MISS OUT ON THIS FAMILY HOME.
Entrance Hall
Good size entrance hallway with handy under stairs storage cupboard.
Kitchen / Dining Room
8'11" x 13'3" (2.72m x 4.04m)
Modern kitchen/dining room with a range of fitted units, Induction hob, electric oven, Boiling tap, integrated dishwasher, and microwave.
WC Cloakroom
3'3" x 8'11" (0.98m x 2.71m)
Handy downstairs W/C with wash hand basin.
Living Room
10'10" x 16'5" (3.31m x 5.01m)
Good size living room, overlooking the rear garden and having double doors leading out onto the patio area.
Bedroom 1
9'2" x 13'11" (2.79m x 4.24m)
Good size double bedroom with built in storage.
Bedroom 2
9'1" x 11'2" (2.77m x 3.40m)
Double bedroom having views over open countryside and the Solway Coast in the distance.
Bedroom 3
7'2" x 10'11" (2.19m x 3.34m)
Single bedroom to the rear of the property.
Bathroom
7'2" x 9'5" (2.19m x 2.86m)
Good size family bathroom with bath, separate shower cubicle, w/c and wash hand basin.
Garage
10'0" x 22'10" (3.05m x 6.97m)
Large garage with utility area to the rear with plumbing for washing machine and doors directly into the hallway of the house and out to the rear garden.
Outside
To the front is extended driveway with parking for 4 cars, Side garden with entrance to the rear To the rear is a large enclosed garden with lawn, patio area and shed.
Agents Notes
The property has double glazing and gas central heating. There is a yearly charge of currently £136.00 for maintenance to communal areas.
IMPORTANT NOTE TO POTENTIAL PURCHASERS:
We endeavour to make our particulars accurate and reliable, however, they do not constitute or form part of an offer or any contract and none is to be relied upon as statements of representation or fact. The services, systems and appliances listed in this specification have not been tested by us and no guarantee as to their operating ability or efficiency is given. All photographs and measurements have been taken as a guide only and are not precise. Floor plans where included are not to scale and accuracy is not guaranteed. If you require clarification or further information on any points, please contact us, especially if you are travelling some distance to view. Fixtures and fittings other than those mentioned are to be agreed with the seller.
Agents are required by law to conduct Anti-Money Laundering checks on all buyers. Your Move Carlisle, Whitehaven and Wigton charge £30 including VAT per buyer. The charge covers the cost of obtaining and retaining relevant data from a third party. This fee is payable in advance prior to issuing a memorandum of sale and before the property can be sale agreed.
Woodside Park, Wigton, Cumbria, CA7
Additional Information
-
Property refWIG250289
-
EPCB
-
TenureFreehold
-
Council TaxC
-
Local authorityCumberland Council
Good size entrance hallway with handy under stairs storage cupboard.
Modern kitchen/dining room with a range of fitted units, Induction hob, electric oven, Boiling tap, integrated dishwasher, and microwave.
Good size living room, overlooking the rear garden and having double doors leading out onto the patio area.
Good size double bedroom with built in storage.
Double bedroom having views over open countryside and the Solway Coast in the distance.
Single bedroom to the rear of the property.
Good size family bathroom with bath, separate shower cubicle, w/c and wash hand basin.
To the front is extended driveway with parking for 4 cars, Side garden with entrance to the rear To the rear is a large enclosed garden with lawn, patio area and shed.
The pin shows the exact address of the property
Energy Efficiency Rating
Very energy efficient - lower running costs
Not energy efficient - higher running costs
Current
83Potential
95CO2 Rating
Very energy efficient - lower running costs
Not energy efficient - higher running costs
