This calculator provides a guide to the amount of residential stamp duty you may pay and does not guarantee this will be the actual cost. This calculation is based on the Stamp Duty Land Tax Rates for residential properties purchased from 23rd September 2022 and second homes from 31st October 2024. For more information on Stamp Duty Land Tax, click here.
2 bedroom Mid Terrace House for sale, Ashgrove, Peasedown St. John, Somerset, BA2
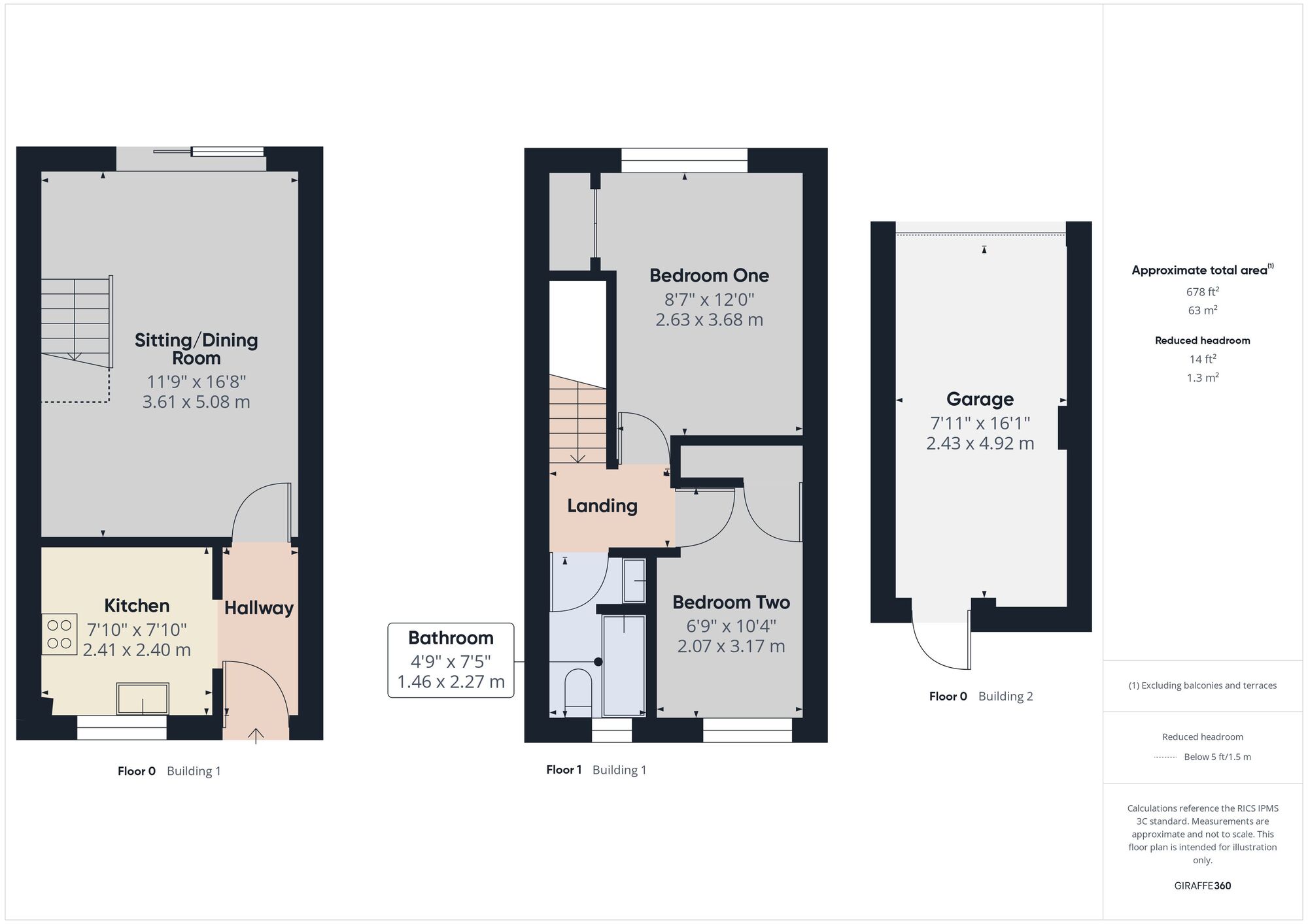
Features and Description
A superb opportunity for either first time buyers or investors to purchase this modern terraced home in the popular village of Peasedown St. John that is available with no onward chain. The living accommodation comprises on the ground floor an entrance hall, fitted kitchen and a light and airy sitting/dining room with oak flooring and patio doors leading to the garden. On the first floor there are two bedrooms and a contemporary bathroom. Other features include a gas central heating system and PVCu double glazing. Outside there is a low maintenance front garden and a fully enclosed rear garden with far reaching views and a path leading to a single garage at the rear. In addition to the above there is also a further parking space in front of the garage for one more car. Although the property is in need of some updating it still represents good value for money and early interest is anticipated. Highly recommended.
Directions
From the double mini roundabouts in Radstock, proceed up the Bath New Road towards Peasedown St John and take the first turning left before the bypass into Bath Road. Follow the road through the village past both the Tesco and Co-Op convenience stores and Ashgrove can be found further along on the left hand side, just prior to the turning for Keels Hill.
Entrance
PVCu double glazed door to entrance hall with oak flooring, double radiator, coved ceiling and an arch to the kitchen.
Kitchen
PVCu double glazed window to front, matching base and wall units, rolled edge work surfaces, stainless steel single drainer sink unit, tiled floor, gas and electric cooker points, plumbed for washing machine, gas boiler supplying central heating and hot water, space for fridge freezer.
Sitting / Dining Room
PVCu double glazed patio doors to rear, two double radiators, oak flooring, coved ceiling, television point, stairs to first floor landing.
Landing
Loft access, coved ceiling.
Bedroom 1
PVCu double glazed window to rear, single radiator, built in wardrobes.
Bedroom 2
PVCu double glazed window to front, single radiator, coved ceiling, built in cupboard.
Bathroom
PVCu double glazed window to front, panelled bath with shower above, pedestal wash hand basin, low level WC, fully tiled walls, tiled floor, towel rail radiator.
Front Garden
Part enclosed by boundary wall, mainly laid to chippings.
Rear Garden
Enclosed by fencing, mainly laid to lawn, patio area, rear pedestrian access.
Garage and Parking Space
At the rear of the property, up and over door, power and lighting, service door to rear, attic storage space and an additional parking space for one car opposite the garage.
IMPORTANT NOTE TO POTENTIAL PURCHASERS:
We endeavour to make our particulars accurate and reliable, however, they do not constitute or form part of an offer or any contract and none is to be relied upon as statements of representation or fact. The services, systems and appliances listed in this specification have not been tested by us and no guarantee as to their operating ability or efficiency is given. All photographs and measurements have been taken as a guide only and are not precise. Floor plans where included are not to scale and accuracy is not guaranteed. If you require clarification or further information on any points, please contact us, especially if you are travelling some distance to view. Fixtures and fittings other than those mentioned are to be agreed with the seller.
Ashgrove, Peasedown St. John, Somerset, BA2
Additional Information
-
Property refQMI260124
-
EPCD
-
TenureFreehold
-
Council TaxB
-
Local authorityBath & North East Somerset Council
Similar properties for sale by Your Move Midsomer Norton
The pin shows the exact address of the property
Energy Efficiency Rating
Very energy efficient - lower running costs
Not energy efficient - higher running costs
Current
63Potential
78CO2 Rating
Very energy efficient - lower running costs
Not energy efficient - higher running costs
