This calculator provides a guide to the amount of residential stamp duty you may pay and does not guarantee this will be the actual cost. This calculation is based on the Stamp Duty Land Tax Rates for residential properties purchased from 23rd September 2022 and second homes from 31st October 2024. For more information on Stamp Duty Land Tax, click here.
2 bedroom Mid Terrace House for sale, Gordon Street, Semilong, Northampton, NN2
Features and Description
- No Onward Chain
- Two Double Bedrooms
- Mid Terrace
- Close to Northampton Train Station
- Excellent Transport Links
- Tenant In Situ or Vacant Possession
- Council Tax Band: A
- EPC Rating: C
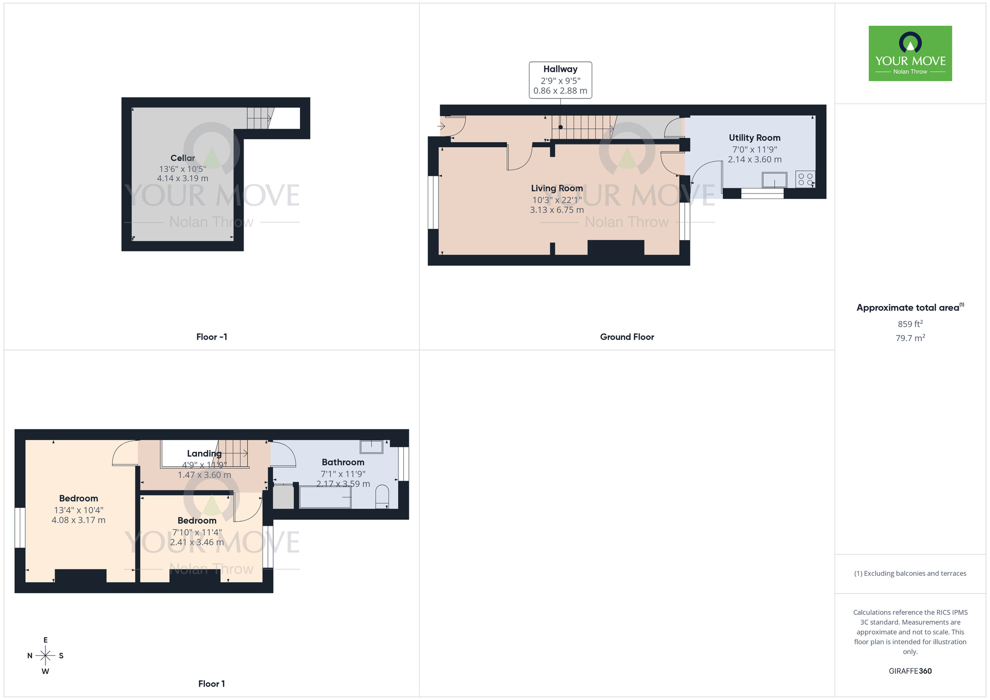
Available with no onward chain is this two bedroom mid terrace house in Semilong, popular due to its transport links and being within walking distance to Northampton Train Station.
The property is comprised of two double bedrooms upstairs as well as a family bathroom. Downstairs there is a lounge/diner leading to the kitchen at the rear. There is access to the cellar through the kitchen also. Outside there is a low maintenance rear garden.
Situated in Semilong, the property benefits from excellent transport links, including being within walking distance of Northampton Train Station, offering direct services to London and Birmingham. There is also convenient access to the A45 and a wide range of local amenities, shops and services nearby, further enhancing the appeal of this well-located home.
IMPORTANT NOTE TO POTENTIAL PURCHASERS:
We endeavour to make our particulars accurate and reliable, however, they do not constitute or form part of an offer or any contract and none is to be relied upon as statements of representation or fact. The services, systems and appliances listed in this specification have not been tested by us and no guarantee as to their operating ability or efficiency is given. All photographs and measurements have been taken as a guide only and are not precise. Floor plans where included are not to scale and accuracy is not guaranteed. If you require clarification or further information on any points, please contact us, especially if you are travelling some distance to view. Fixtures and fittings other than those mentioned are to be agreed with the seller.
Gordon Street, Semilong, Northampton, NN2
Additional Information
-
Property refQNT260050
-
EPCC
-
TenureFreehold
-
Council TaxA
-
Local authorityWest Northamptonshire
Similar properties for sale by Your Move Northampton
The pin shows the exact address of the property
Energy Efficiency Rating
Very energy efficient - lower running costs
Not energy efficient - higher running costs
Current
69Potential
90CO2 Rating
Very energy efficient - lower running costs
Not energy efficient - higher running costs
