This calculator provides a guide to the amount of residential stamp duty you may pay and does not guarantee this will be the actual cost. This calculation is based on the Stamp Duty Land Tax Rates for residential properties purchased from 23rd September 2022 and second homes from 31st October 2024. For more information on Stamp Duty Land Tax, click here.
2 bedroom Mid Terrace House for sale, Henry Street, Abington, Northampton, Northamptonshire, NN1
Features and Description
- EPC - C
- No Onward Chain
- Two Double Bedrooms
- Victorian Terrace House
- Cellar
- Low Maintenance Garden
- Close to Local Amenities
- Well Presented
- Kitchen Dining Room
NO ONWARD CHAIN
A well-presented two double bedroom terraced home, ideally located in the popular residential area of Abington, perfectly suited to a professional couple.
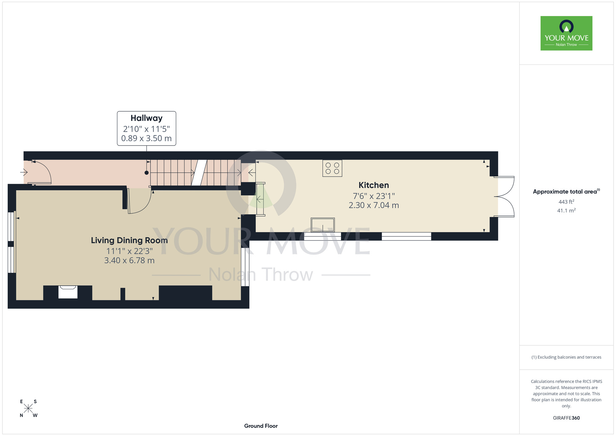
The property is entered via a storm porch leading into a welcoming hallway, which provides access to a spacious open-plan living and dining room. To the rear, the kitchen has been extended and offers a range of base and eye-level units, space for white goods, and room for a dining table. There are UPVC French doors which open up onto the low maintenance rear garden.
To the first floor are two well-proportioned double bedrooms and a modern three-piece bathroom suite with a shower over the bath. Additional internal accommodation includes a cellar, ideal for storage.
Externally, the rear garden is mainly laid to lawn, providing a pleasant and private outdoor space.
The property further benefits from a fully tanked cellar.
Henry Street is within walking distance of Wellingborough Road, placing the property in the heart of Abington’s vibrant community. The area is particularly popular with young professionals due to its selection of independent shops, bars, and cafés, making Abington one of Northampton’s most desirable locations. Northampton town centre is approximately 1.8 miles away, with the train station a further 0.5 miles beyond.
Abington Park, one of the town’s finest green spaces, is close by, along with a cinema and a range of excellent restaurants in the town centre. Cricket enthusiasts will appreciate the proximity to the Northamptonshire County Cricket Club. Local schools include Northampton School for Boys and Barry Road Primary School.
IMPORTANT NOTE TO POTENTIAL PURCHASERS:
We endeavour to make our particulars accurate and reliable, however, they do not constitute or form part of an offer or any contract and none is to be relied upon as statements of representation or fact. The services, systems and appliances listed in this specification have not been tested by us and no guarantee as to their operating ability or efficiency is given. All photographs and measurements have been taken as a guide only and are not precise. Floor plans where included are not to scale and accuracy is not guaranteed. If you require clarification or further information on any points, please contact us, especially if you are travelling some distance to view. Fixtures and fittings other than those mentioned are to be agreed with the seller.
Henry Street, Abington, Northampton, Northamptonshire, NN1
Additional Information
-
Property refQAB250247
-
EPCC
-
TenureFreehold
-
Council TaxA
-
Local authorityWest Northamptonshire
The pin shows the exact address of the property
Energy Efficiency Rating
Very energy efficient - lower running costs
Not energy efficient - higher running costs
Current
69Potential
86CO2 Rating
Very energy efficient - lower running costs
Not energy efficient - higher running costs
