This calculator provides a guide to the amount of residential stamp duty you may pay and does not guarantee this will be the actual cost. This calculation is based on the Stamp Duty Land Tax Rates for residential properties purchased from 23rd September 2022 and second homes from 31st October 2024. For more information on Stamp Duty Land Tax, click here.
 
         
         
         
         
         
         
         
         
         
         
         
        3 bedroom Mid Terrace House for sale, Jakemans Close, Redditch, Worcestershire, B98
Features and Description
- Well Presented Town House
- Three Bedrooms
- Spacious Lounge
- Converted Garage (Ideal Home Office)
- Ideal First Purchase
- Off Street Parking
- Cul-De-Sac Location
- Superb Modern Family Bathroom
- INTERNAL VIEWING STRONGLY ADVISED
*** NEW INSTRUCTION ***
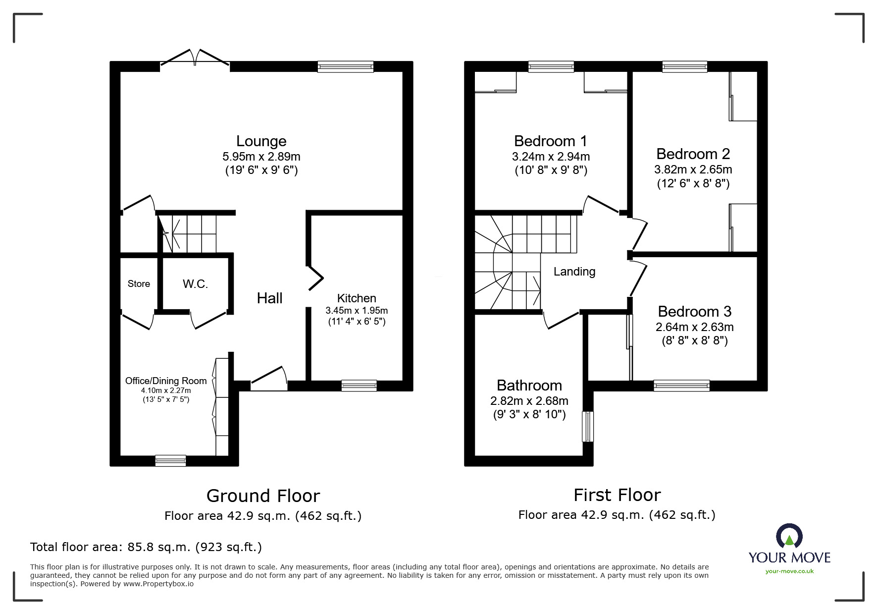
Welcome to Jakemans Close, Redditch — a truly immaculate terraced home tucked away in a peaceful cul-de-sac, perfectly suited to first-time buyers, families, or young couples looking for their forever home.
As you step inside, you’re greeted by two bright and welcoming reception rooms. The first offers generous space with seamless access to the rear garden — an ideal setting for relaxing or entertaining — while the second reception room (previously the garage) invites your creativity, providing a versatile space that could serve as an additional sitting room, home office, or playroom.
The contemporary kitchen is beautifully presented and filled with natural light, creating a cheerful and practical area for cooking and socialising.
Upstairs, you’ll find three double bedrooms, each thoughtfully designed to offer comfort and flexibility. The principal bedroom enjoys an abundance of natural light, creating a peaceful retreat, while the remaining two doubles provide ample space for children, guests, or home working.
The stylish modern bathroom suite adds a touch of luxury to everyday life — perfect for both busy mornings and relaxing evenings.
A standout feature of this wonderful home is the converted garage, providing valuable additional living or storage space, adaptable to suit your lifestyle.
Outside, the rear garden offers a tranquil escape, ideal for summer evenings or family gatherings.
With well-regarded schools, green open spaces, and excellent transport links all close by, this home perfectly balances peace, practicality, and modern style.
An exceptional opportunity not to be missed — arrange your viewing today and discover all that Jakemans Close has to offer.
LOCATION
Well situated in Winyates West, this home enjoys a peaceful cul-de-sac setting, just a short walk from Arrow Valley Country Park and well-regarded schools. It also offers easy access to local bus routes, the train station, motorway links (M5 and M42), and a wide range of amenities in Redditch Town Centre.
Tenure: FREEHOLD
Council Tax Band: B (Redditch Borough Council)
EPC Rating: D
DIMENSIONS: Refer to floor plan
IMPORTANT NOTE TO POTENTIAL PURCHASERS:
We endeavour to make our particulars accurate and reliable, however, they do not constitute or form part of an offer or any contract and none is to be relied upon as statements of representation or fact. The services, systems and appliances listed in this specification have not been tested by us and no guarantee as to their operating ability or efficiency is given. All photographs and measurements have been taken as a guide only and are not precise. Floor plans where included are not to scale and accuracy is not guaranteed. If you require clarification or further information on any points, please contact us, especially if you are travelling some distance to view. Fixtures and fittings other than those mentioned are to be agreed with the seller.
Jakemans Close, Redditch, Worcestershire, B98
 
        Additional Information
- 
                    Property refQBV250396
- 
                    EPCD
- 
                    TenureFreehold
- 
                    Council TaxB
- 
                    Local authorityRedditch Borough Council
 
        Similar properties for sale by Your Move Bromsgrove
 
         
         
         
         
         
         
         
         
         
         
         
        The pin shows the exact address of the property
Energy Efficiency Rating
Very energy efficient - lower running costs
Not energy efficient - higher running costs
Current
61Potential
83CO2 Rating
Very energy efficient - lower running costs
Not energy efficient - higher running costs

 
         
         
         
         
         
         
        