This calculator provides a guide to the amount of residential stamp duty you may pay and does not guarantee this will be the actual cost. This calculation is based on the Stamp Duty Land Tax Rates for residential properties purchased from 23rd September 2022 and second homes from 31st October 2024. For more information on Stamp Duty Land Tax, click here.
3 bedroom Mid Terrace House for sale, Joseph Street, Belper, Derbyshire, DE56
Features and Description
- Three Bedrooms
- Off Street Parking
- Front and Rear Gardens
- Modern Shower Room
- Popular Location
- Garage
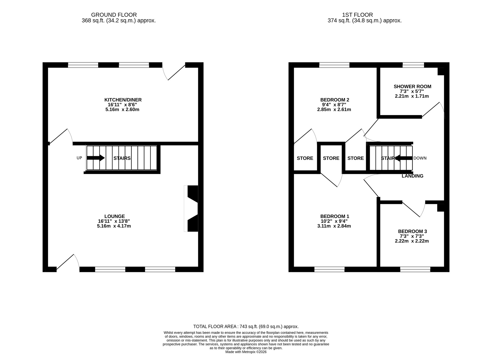
This well-presented mid-terrace home offers comfortable and practical accommodation arranged over two floors. In brief, the accommodation comprises a well-proportioned lounge, kitchen, three bedrooms and a shower room. Located within a popular and established residential area, the property is conveniently positioned for Belper town centre, which provides a range of local shops, cafés, restaurants and leisure facilities. The area also benefits from good transport links, including road and rail connections, and access to well-regarded local schooling and countryside walks. With the addition of gardens, parking and a garage, this property will appeal to a variety of buyers seeking a convenient home close to local amenities.
Lounge
13'8" x 16'11" (4.17m x 5.16m)
Spacious ground floor living room, offering a bright and welcoming space ideal for both relaxing and entertaining. The room features a central fireplace with decorative surround and wood-burning stove, creating an attractive focal point. Finished with fitted carpet and neutral décor throughout, the room benefits from two windows providing ample natural light, while a single door provides direct access to the front garden. Additional features include a TV point, central heating radiator, wall light points and stairs rising to the first floor, making this a well-proportioned and practical living area.
Kitchen
8'6" x 16'11" (2.60m x 5.16m)
The kitchen is positioned to the rear of the property, fitted with a range of matching wall and base units, complementary work surfaces and tiled splashbacks. The kitchen benefits from an integrated oven, hob and overhead extractor, with space and plumbing for a freestanding fridge freezer and washing machine. A radiator provides heating, while two rear-facing windows offer pleasant views into the garden and allow ample natural light. The combi boiler is neatly housed within a cupboard unit, and the room is finished with tiled flooring and direct access to the rear for added convenience.
First Floor Landing
Providing access to all three bedrooms and family shower room.
Bedroom 1
10'2" x 9'4" (3.11m x 2.84m)
A well-proportioned room finished with fitted carpet and neutral décor, featuring a window providing natural light to the front elevation. The bedroom benefits from a central heating radiator and includes a useful cupboard, ideal for additional storage or wardrobe space.
Bedroom 2
8'7" x 9'4" (2.61m x 2.85m)
A well-proportioned room finished with fitted carpet and neutral décor. The bedroom benefits from a rear-facing window providing natural light, a central heating radiator, and features two built-in storage cupboards located over the stairs, offering useful additional storage.
Bedroom 3
7'3" x 7'3" (2.22m x 2.22m)
A single bedroom finished with fitted carpet and neutral décor. The room benefits from a front-facing window providing natural light and a central heating radiator, making it suitable for use as a child’s bedroom, home office or nursery.
Shower Room
5'7" x 7'3" (1.71m x 2.21m)
Modern shower room, fitted with a walk-in shower enclosure, low-level WC and vanity wash hand basin with storage below. The room is finished with contemporary tiling, wood-effect flooring and benefits from a window providing natural ventilation and light.
External
Front garden, primarily laid to lawn with a paved pathway leading to the property. The garden benefits from shared gated access. Rear garden, designed for low maintenance, featuring a combination of paved seating areas and gravelled sections with mature planting. The garden benefits from an outbuilding providing useful storage, ideal for garden equipment, bicycles or general household items.
Garage and Parking
There is an allocated parking spaces associated with the property. Further to this, the property also benefits from a garage with up-and-over vehicular door, providing additional secure parking or storage.
IMPORTANT NOTE TO POTENTIAL PURCHASERS:
We endeavour to make our particulars accurate and reliable, however, they do not constitute or form part of an offer or any contract and none is to be relied upon as statements of representation or fact. The services, systems and appliances listed in this specification have not been tested by us and no guarantee as to their operating ability or efficiency is given. All photographs and measurements have been taken as a guide only and are not precise. Floor plans where included are not to scale and accuracy is not guaranteed. If you require clarification or further information on any points, please contact us, especially if you are travelling some distance to view. Fixtures and fittings other than those mentioned are to be agreed with the seller.
Joseph Street, Belper, Derbyshire, DE56
Additional Information
-
Property refQBP250316
-
TenureFreehold
-
Council TaxB
-
Local authorityAmber Valley Borough Council
The pin shows the exact address of the property
Energy Efficiency Rating
Very energy efficient - lower running costs
Not energy efficient - higher running costs
Current
N/APotential
N/ACO2 Rating
Very energy efficient - lower running costs
Not energy efficient - higher running costs
