This calculator provides a guide to the amount of residential stamp duty you may pay and does not guarantee this will be the actual cost. This calculation is based on the Stamp Duty Land Tax Rates for residential properties purchased from 23rd September 2022 and second homes from 31st October 2024. For more information on Stamp Duty Land Tax, click here.
 
         
         
         
         
         
         
         
         
         
         
         
        3 bedroom Mid Terrace House for sale, Medomsley Road, Consett, Durham, DH8
Features and Description
- Three Bedroom Terraced House
- No Onward Chain
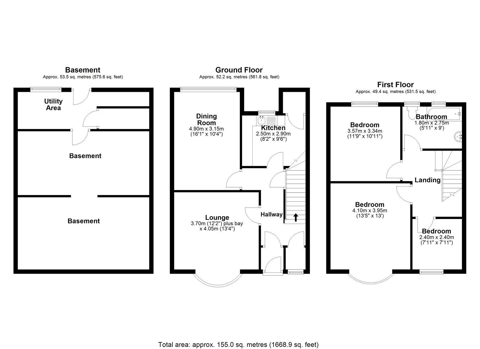
- Basement and Garage
- Approximate Floor Area 155 Sq Mtrs/ 1669 Sq Ft.
- Council Tax Band B
- EPC Rating TBC
Brought to the market with the benefit of no onward chain, this three bedroom mid terraced house offers a wealth of potential. The property is conveniently located in Consett Town Centre and also boasts a basement and garage.
Internally, the property briefly comprises of an entrance hallway with storage cupboards, a lounge with bay window, a spacious dining room and kitchen with access down to the basement. Upstairs is a bathroom, two double sized bedrooms and one single sized bedroom.
Externally to the rear of the property is a yard that can be use for off road parking as well as access to the garage. To the front of the property is a small garden with lawn and hedged borders.
Medomsley Road is located in Consett Town Centre and the towns many amenities and facilities are reachable within walking distance. Excellent transport links are also accessible close by for commuting and the regional cities of Durham and Newcastle are both within 15 miles of the property
IMPORTANT NOTE TO POTENTIAL PURCHASERS:
We endeavour to make our particulars accurate and reliable, however, they do not constitute or form part of an offer or any contract and none is to be relied upon as statements of representation or fact. The services, systems and appliances listed in this specification have not been tested by us and no guarantee as to their operating ability or efficiency is given. All photographs and measurements have been taken as a guide only and are not precise. Floor plans where included are not to scale and accuracy is not guaranteed. If you require clarification or further information on any points, please contact us, especially if you are travelling some distance to view. Fixtures and fittings other than those mentioned are to be agreed with the seller.
Medomsley Road, Consett, Durham, DH8
 
        Additional Information
- 
                    Property refQCO250340
- 
                    TenureFreehold
- 
                    Council TaxB
- 
                    Local authorityDurham County Council
 
         
         
         
         
         
         
         
         
         
         
         
         
        The pin shows the exact address of the property
Energy Efficiency Rating
Very energy efficient - lower running costs
Not energy efficient - higher running costs
Current
N/APotential
N/ACO2 Rating
Very energy efficient - lower running costs
Not energy efficient - higher running costs

 
         
         
         
         
         
         
        