This calculator provides a guide to the amount of residential stamp duty you may pay and does not guarantee this will be the actual cost. This calculation is based on the Stamp Duty Land Tax Rates for residential properties purchased from 23rd September 2022 and second homes from 31st October 2024. For more information on Stamp Duty Land Tax, click here.
3 bedroom Mid Terrace House for sale, Moresby Parks Road, Moresby Parks, Cumbria, CA28
Features and Description
This immaculately presented three-bedroom home offers stylish, light-filled accommodation arranged over three floors, making it an ideal choice for first time buyers and small families alike. Thoughtfully maintained and beautifully finished throughout, the property provides a welcoming and contemporary living environment ready to move straight into.
The ground floor boasts a bright and airy living space, complemented by a well-appointed kitchen that flows effortlessly for modern day living. Across the upper floors, you’ll find three generously sized bedrooms, each offering comfortable and versatile accommodation, alongside a sleek and modern family bathroom finished to a high standard.
Positioned on a popular row of terraces on the outskirts of Whitehaven, the property enjoys a pleasant setting with convenient access to local amenities, schools, and transport links. Early viewing is highly recommended to fully appreciate the space, presentation, and superb location this fantastic home has to offer.
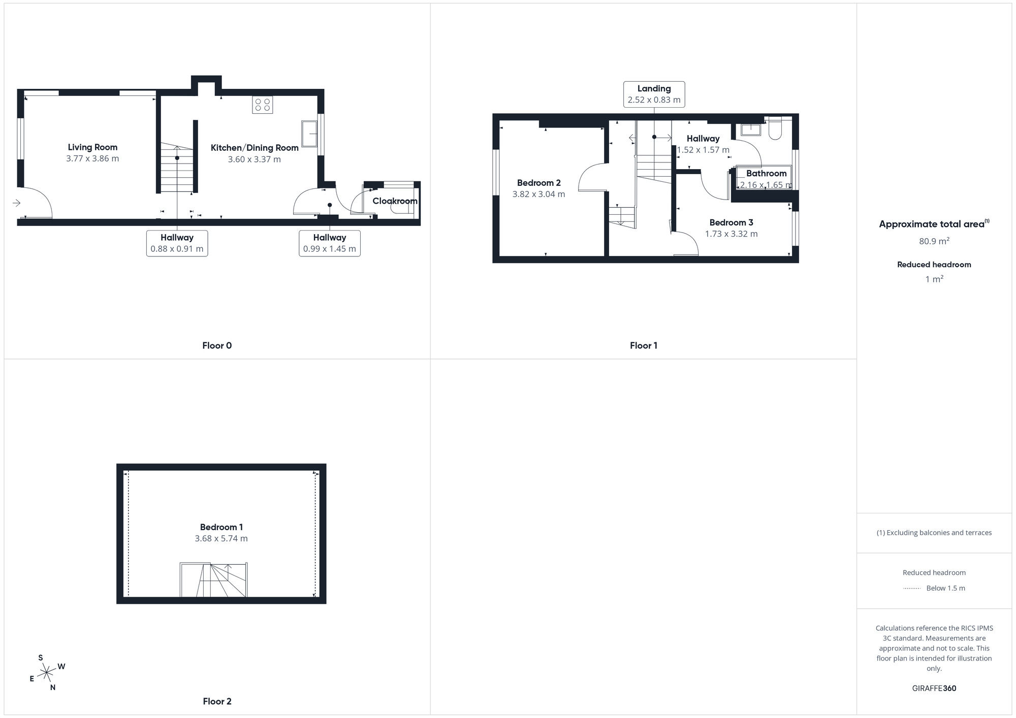
Living Room
12'8" x 12'4" (3.86m x 3.77m)
Bright yet cosy living room, having integrated shelving with recessed lighting.
Hall
Connecting the living room to the kitchen, with stairs leading to the first floor.
Kitchen / Dining Room
11'10" x 11'1" (3.60m x 3.37m)
Boasting a range of modern, shaker style, fitted units, with oak effect countertop and tiled backsplash. The kitchen also benefits from an integrated electric oven and countertop mounted gas hob. Access to the understairs cupboard provides additional storage space, and a fitted breakfast bar provides an ideal space for informal dining.
Rear Hallway
With external door providing access to the rear yard.
Cloakroom
Convenient ground floor cloakroom, with w/c.
First Floor
With landing and staircase leading to the second floor.
Bedroom 2
12'6" x 9'12" (3.82m x 3.04m)
Spacious double bedroom, currently styled as a dressing room.
Bedroom 3
10'11" x 5'8" (3.32m x 1.73m)
Single bedroom with understairs storage. Currently styled as a nursery.
Bathroom
7'1" x 5'5" (2.16m x 1.65m)
Modern family bathroom, with recessed lighting and full tile. Benefitting from a bath with shower over, w/c, heated towel rail and wash hand basin set within a fitted vanity.
Second Floor
With stairs leading.
Bedroom 1
18'10" x 12'1" (5.74m x 3.68m)
Large double bedroom, with skylight and eaves access.
Outside
To the rear of the property, is a spacious and enclosed, L-shaped yard. A gate, provides rear access to the property.
Agents Notes
The property benefits from gas heating and double glazing. Parking for the property is on-street- located to the front of the property. We understand the property was sold, and went through conveyancing, as a three bedroom house in 2024.
IMPORTANT NOTE TO POTENTIAL PURCHASERS:
We endeavour to make our particulars accurate and reliable, however, they do not constitute or form part of an offer or any contract and none is to be relied upon as statements of representation or fact. The services, systems and appliances listed in this specification have not been tested by us and no guarantee as to their operating ability or efficiency is given. All photographs and measurements have been taken as a guide only and are not precise. Floor plans where included are not to scale and accuracy is not guaranteed. If you require clarification or further information on any points, please contact us, especially if you are travelling some distance to view. Fixtures and fittings other than those mentioned are to be agreed with the seller.
Agents are required by law to conduct Anti-Money Laundering checks on all buyers. Your Move Carlisle, Whitehaven and Wigton charge £30 including VAT per buyer. The charge covers the cost of obtaining and retaining relevant data from a third party. This fee is payable in advance prior to issuing a memorandum of sale and before the property can be sale agreed.
Moresby Parks Road, Moresby Parks, Cumbria, CA28
Additional Information
-
Property refWHV260287
-
EPCC
-
TenureFreehold
-
Council TaxA
-
Local authorityCumberland Council
Similar properties for sale by Your Move Whitehaven
Bright yet cosy living room, having integrated shelving with recessed lighting.
Boasting a range of modern, shaker style, fitted units, with oak effect countertop and tiled backsplash. The kitchen also benefits from an integrated electric oven and countertop mounted gas hob. Access to the understairs cupboard provides additional storage space, and a fitted breakfast bar provides an ideal space for informal dining.
Convenient ground floor cloakroom, with w/c.
Spacious double bedroom, currently styled as a dressing room.
Single bedroom with understairs storage. Currently styled as a nursery.
Modern family bathroom, with recessed lighting and full tile. Benefitting from a bath with shower over, w/c, heated towel rail and wash hand basin set within a fitted vanity.
Large double bedroom, with skylight and eaves access.
To the rear of the property, is a spacious and enclosed, L-shaped yard. A gate, provides rear access to the property.
The pin shows the exact address of the property
Energy Efficiency Rating
Very energy efficient - lower running costs
Not energy efficient - higher running costs
Current
70Potential
85CO2 Rating
Very energy efficient - lower running costs
Not energy efficient - higher running costs
