This calculator provides a guide to the amount of residential stamp duty you may pay and does not guarantee this will be the actual cost. This calculation is based on the Stamp Duty Land Tax Rates for residential properties purchased from 23rd September 2022 and second homes from 31st October 2024. For more information on Stamp Duty Land Tax, click here.





















4 bedroom Mid Terrace House for sale, Roger Street, Blackhill, Consett, Durham, DH8
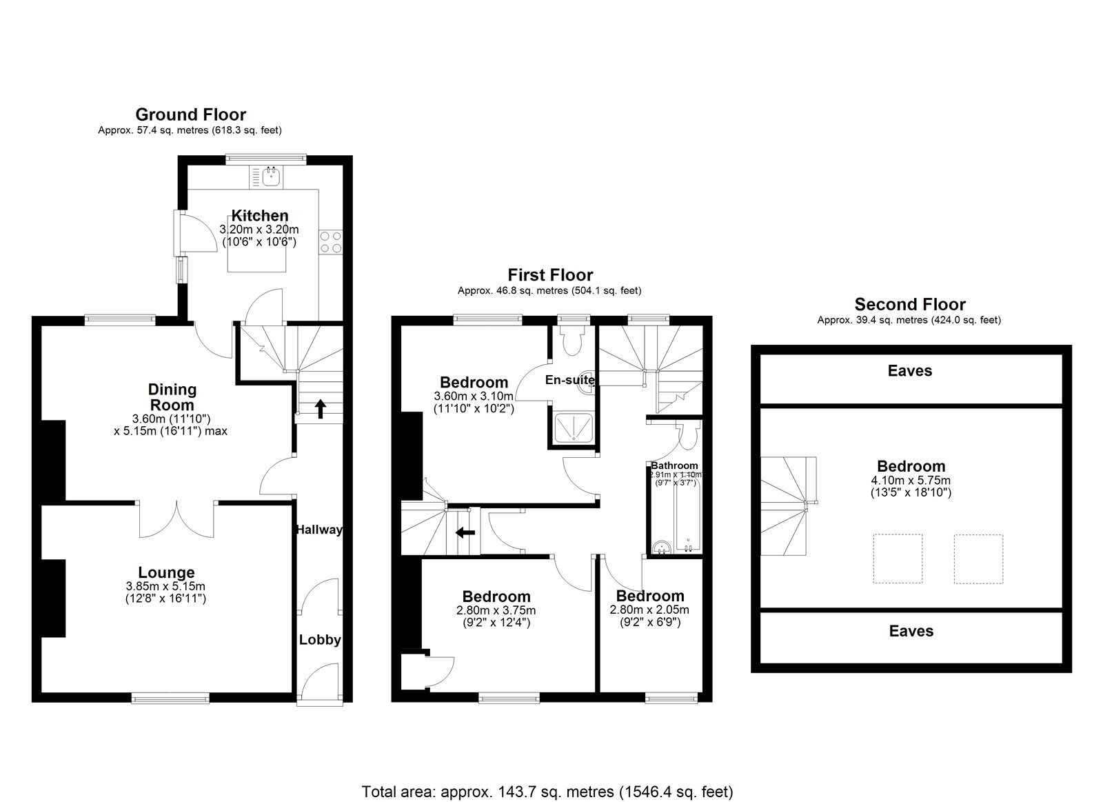
Features and Description
- Four Bedroom Terraced House
- Substantial Accommodation
- Perfect For Families
- Approximate Floor Area 144 Sq Mtrs/ 1560 Sq Ft
- Council Tax Band A
- EPC Rating D
This spacious and stylish four-bedroom terraced property offers contemporary accommodation set over three floors. Ideally located close to Consett town centre and Consett & Blackhill park, the home features a modern kitchen, bright and airy living spaces, and well-proportioned bedrooms. Perfect for families or professionals, this versatile home combines comfort, convenience, and a desirable location.
The accommodation is well laid out over three floors and begins with an inviting entrance hallway leading to a spacious lounge featuring a stylish media wall. Through double doors is a separate dining room and a modern kitchen fitted with an island and a handy storage cupboard. On the first floor, the property offers a contemporary family bathroom, a generous master bedroom with an en-suite shower room, and two additional well-proportioned bedrooms. The second floor is home to a large fourth bedroom with Velux windows, creating a bright and versatile space. Externally, the rear of the property boasts a good-sized yard with a patio area and gated access for off-road parking, while additional parking is available on-street at the front.
Roger Street is located in Blackhill and is only around one mile from Consett Town Centre and a quarter of a mile from Consett & Blackhill park. Excellent transport links are accessible close by for commuting and the regional cities of Durham and Newcastle are both within 15 miles of the property.
IMPORTANT NOTE TO POTENTIAL PURCHASERS:
We endeavour to make our particulars accurate and reliable, however, they do not constitute or form part of an offer or any contract and none is to be relied upon as statements of representation or fact. The services, systems and appliances listed in this specification have not been tested by us and no guarantee as to their operating ability or efficiency is given. All photographs and measurements have been taken as a guide only and are not precise. Floor plans where included are not to scale and accuracy is not guaranteed. If you require clarification or further information on any points, please contact us, especially if you are travelling some distance to view. Fixtures and fittings other than those mentioned are to be agreed with the seller.
Roger Street, Blackhill, Consett, Durham, DH8

Additional Information
-
Property refQCO250259
-
EPCD
-
TenureFreehold
-
Council TaxA
-
Local authorityDurham County Council






















The pin shows the exact address of the property
Energy Efficiency Rating
Very energy efficient - lower running costs
Not energy efficient - higher running costs
Current
65Potential
80CO2 Rating
Very energy efficient - lower running costs
Not energy efficient - higher running costs