This calculator provides a guide to the amount of residential stamp duty you may pay and does not guarantee this will be the actual cost. This calculation is based on the Stamp Duty Land Tax Rates for residential properties purchased from 23rd September 2022 and second homes from 31st October 2024. For more information on Stamp Duty Land Tax, click here.
3 bedroom Mid Terrace House for sale, Rothersthorpe Road, Far Cotton, Northampton, NN4
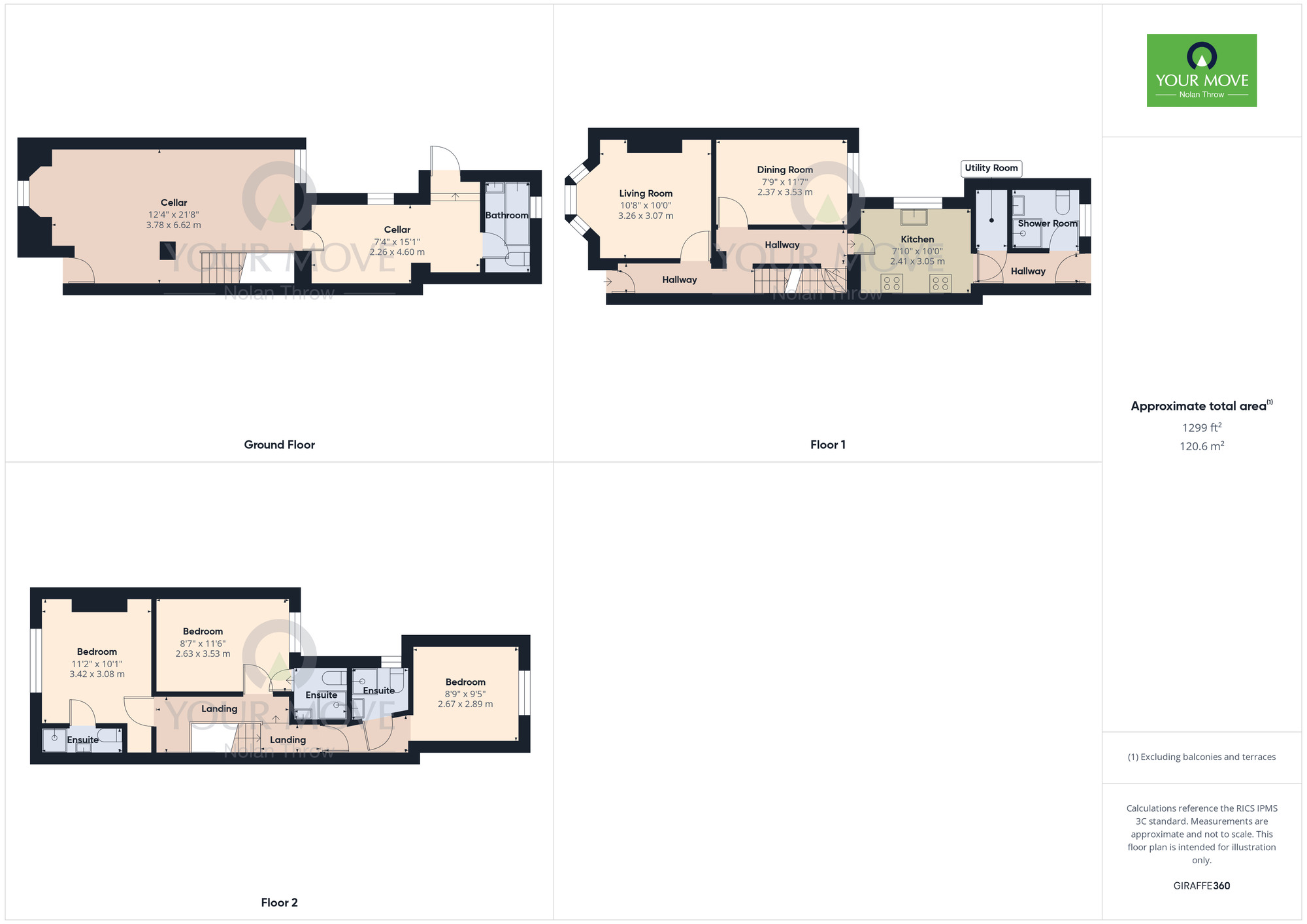
Features and Description
- Three Bedroom Bay Fronted Terrace
- Two Reception Rooms
- Three Ensuites & Family Bathroom
- Outbuilding For Storage
- 4 Bedroom HMO Subject To Licensing
- Enclosed Rear Garden
- Viewing Recommended
- Gas Central Heating
This attractive three-bedroom bay-fronted mid-terrace property offers generous and versatile accommodation, making it ideal as a spacious family home or an investment opportunity as a potential four-bedroom HMO.
Entering the property the hallway has access to two well-proportioned reception rooms, providing a living and dining space, along with a well-appointed kitchen area.
To the rear of the kitchen is a convenient utility space and downstairs shower room.
From the hallway there is also access to the partially converted cellar adding additional space for storage or further development subject to the necessary consents.
Upstairs, the property comprises three bedrooms, two of which benefit from an ensuite bathrooms, alongside a modern family bathroom.
Externally, the property features a good-sized rear garden, mainly laid to lawn, complemented by a decked seating area and pathway. To the rear, there is a garage with access via a service road.
With its generous layout, multiple bathrooms, and excellent outdoor space, this property presents a superb opportunity for homeowners and investors alike.
IMPORTANT NOTE TO POTENTIAL PURCHASERS:
We endeavour to make our particulars accurate and reliable, however, they do not constitute or form part of an offer or any contract and none is to be relied upon as statements of representation or fact. The services, systems and appliances listed in this specification have not been tested by us and no guarantee as to their operating ability or efficiency is given. All photographs and measurements have been taken as a guide only and are not precise. Floor plans where included are not to scale and accuracy is not guaranteed. If you require clarification or further information on any points, please contact us, especially if you are travelling some distance to view. Fixtures and fittings other than those mentioned are to be agreed with the seller.
Rothersthorpe Road, Far Cotton, Northampton, NN4
Additional Information
-
Property refQNT250533
-
EPCD
-
TenureFreehold
-
Council TaxA
-
Local authorityWest Northamptonshire
Similar properties for sale by Your Move Northampton
The pin shows the exact address of the property
Energy Efficiency Rating
Very energy efficient - lower running costs
Not energy efficient - higher running costs
Current
66Potential
80CO2 Rating
Very energy efficient - lower running costs
Not energy efficient - higher running costs
