3 bedroom Mid Terrace House to rent, Bakewell Street, Coalville, Leicestershire, LE67
Available Unfurnished, from 06/04/2026
Features and Description
- Well-presented three-bedroom terraced house
- Two versatile reception rooms
- Kitchen with breakfast area
- Enclosed rear garden for relaxation
- Two double bedrooms plus single
- Ideal for families or couples
- Close to Coalville Park and greenspace
- Near town centre shops and cafés
- Good road links A511 and A50
- Access to Leicester, Nottingham, London rail
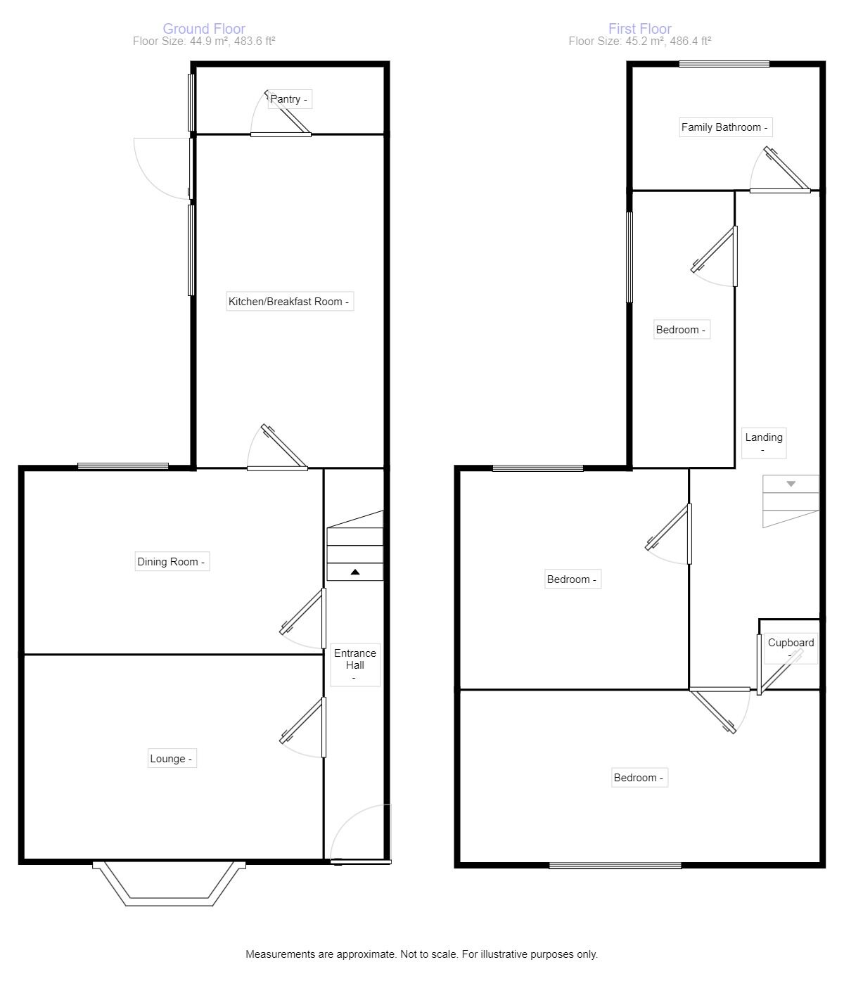
This three-bedroom terraced house is available **to let** in Coalville, offering well-presented accommodation in good condition, suitable for families and couples.
The ground floor provides two reception rooms, giving flexibility for separate living and dining areas. The kitchen includes a breakfast area, providing practical space for everyday meals and access to the rear garden. The garden offers outdoor space for relaxation or play.
Upstairs, there are two double bedrooms and one single bedroom, providing a range of sleeping or home-working options. The property also benefits from one bathroom. The home has an EPC rating of D and falls within Council Tax Band A.
Located in Coalville, the property is well placed for access to local parks and green spaces, including nearby Coalville Park, which offers play areas, open lawns and walking routes. The town centre provides supermarkets, shops and cafés, with additional amenities in neighbouring areas such as Whitwick and Hugglescote.
Road links are convenient, with the A511 and A50 giving routes towards Leicester, Ashby-de-la-Zouch and Burton upon Trent. East Midlands Parkway and Loughborough railway stations are typically reached by car, offering services to Nottingham, Derby, Leicester and London St Pancras; journey times to central Leicester by rail from Loughborough are usually around 15–20 minutes. Regular bus services operate through Coalville, connecting to surrounding villages and Leicester.
This terraced house presents a practical rental option in a residential area with access to local facilities and transport connections.
Entrance Hall
0 x 0
Lounge
4.29 x 5.26
Dining Room
3.63 x 4.78
Kitchen / Breakfast Room
5.28 x 2.64
Pantry
0 x 0
First Floor
0 x 0
Bedroom
3.61 x 5.23
Bedroom
3.3 x 3.66
Bedroom
2.97 x 1.68
Family Bathroom
0 x 0
Rear Garden
0 x 0
External
0 x 0
IMPORTANT NOTE TO POTENTIAL RENTERS:
We endeavour to make our particulars accurate and reliable, however, they do not constitute or form part of an offer or any contract and none is to be relied upon as statements of representation or fact. The services, systems and appliances listed in this specification have not been tested by us and no guarantee as to their operating ability or efficiency is given. All photographs and measurements have been taken as a guide only and are not precise. Floor plans where included are not to scale and accuracy is not guaranteed. If you require clarification or further information on any points, please contact us, especially if you are travelling some distance to view.
All properties are available for a minimum length of time, with the exception of short term accommodation. Please contact the branch for details. A security deposit of at least one month’s rent is required. Rent is to be paid one month in advance. It is the tenant’s responsibility to insure any personal possessions. Payment of all utilities including water rates or metered supply and Council Tax is the responsibility of the tenant in every case.
Bakewell Street, Coalville, Leicestershire, LE67
Additional Information
-
Property refQCV200014
-
EPCD
-
Council TaxA
-
Local authorityNorth West Leicestershire District Council
Your Move Letting Agents Coalville
Rental Tools
The pin shows the exact address of the property
Energy Efficiency Rating
Very energy efficient - lower running costs
Not energy efficient - higher running costs
Current
62Potential
82CO2 Rating
Very energy efficient - lower running costs
Not energy efficient - higher running costs
