3 bedroom Mid Terrace House to rent, Dover Street, Canterbury, Kent, CT1
Available Unfurnished, from 16/12/2025
Features and Description
- Charming period property
- Modern glass staircase
- EPC GRADE E
- Spacious open plan reception room
- Three generous bedrooms
- Beautiful garden
- Sought-after urban location
Welcome to this delightful spacious terraced house, available for let. This charming period property has been neutrally decorated to bring a modern twist to its rich history. One of its many unique features is a contemporary staircase with a sleek glass balustrade, which is sure to catch your eye.
The house features a comfortable open plan lounge and dining room that provides plenty of space for relaxation. The kitchen is abundant with natural light, creating a warm and inviting atmosphere for cooking and dining.
Upstairs, you will find three generously-sized bedrooms and a well-appointed bathroom, offering plenty of space for everyone. Whether you're a family, a couple, or a professional wanting space for an office, this home has something to offer you.
Not only does the house come with a warm fireplace for those cosy nights in, but it also boasts a beautiful garden, perfect for those lovely summer days.
The property boasts an EPC rating of E and falls within council tax band C.
Conveniently located in a sought-after urban area, this house is surrounded by historic features that add to its charm. You'll have easy access to public transport links, local amenities, and nearby schools and universities. For those who enjoy outdoor activities, there are nearby parks and river walks to explore and enjoy.
In summary, this is a unique opportunity to live in a character-filled property with a modern twist. We invite you to view this home and experience its charm for yourself.
EPC Grade E. Council Tax Band C.
Security Deposit £1673
Holding Deposit £334
Parking by Canterbury City Council Permit Application
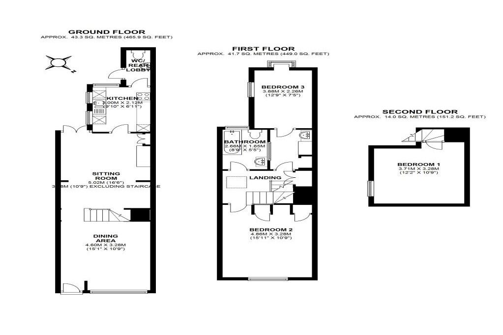
Open Plan Dining Room
15'1" x 10'9" (4.60m x 3.28m)
Kitchen
9'10" x 6'11" (3.00m x 2.10m)
Open Plan Lounge
10'9" x 16'6" (3.28m x 5.03m)
Bedroom 1
15'11" x 10'9" (4.85m x 3.28m)
Bedroom 2
12'9" x 7'5" (3.89m x 2.26m)
Bedroom 3
12'2" x 10'9" (3.70m x 3.28m)
Bathroom
8'9" x 5'5" (2.67m x 1.65m)
IMPORTANT NOTE TO POTENTIAL RENTERS:
We endeavour to make our particulars accurate and reliable, however, they do not constitute or form part of an offer or any contract and none is to be relied upon as statements of representation or fact. The services, systems and appliances listed in this specification have not been tested by us and no guarantee as to their operating ability or efficiency is given. All photographs and measurements have been taken as a guide only and are not precise. Floor plans where included are not to scale and accuracy is not guaranteed. If you require clarification or further information on any points, please contact us, especially if you are travelling some distance to view.
All properties are available for a minimum length of time, with the exception of short term accommodation. Please contact the branch for details. A security deposit of at least one month’s rent is required. Rent is to be paid one month in advance. It is the tenant’s responsibility to insure any personal possessions. Payment of all utilities including water rates or metered supply and Council Tax is the responsibility of the tenant in every case.
Dover Street, Canterbury, Kent, CT1
The pin shows the exact address of the property
Energy Efficiency Rating
Very energy efficient - lower running costs
Not energy efficient - higher running costs
Current
50Potential
79CO2 Rating
Very energy efficient - lower running costs
Not energy efficient - higher running costs
