This calculator provides a guide to the amount of residential stamp duty you may pay and does not guarantee this will be the actual cost. This calculation is based on the Stamp Duty Land Tax Rates for residential properties purchased from 23rd September 2022 and second homes from 31st October 2024. For more information on Stamp Duty Land Tax, click here.
























2 bedroom Semi Detached Bungalow for sale, Crabtree Lane, Sutton-on-Sea, Lincolnshire, LN12
Features and Description
- Two Bedrooms
- Entrance Hall
- Separate WC
- Lounge
- Shower Room
- Kitchen
- Conservatory
- Useable Loft Space
- Beautifully Maintained Gardens
Your Move is delighted to present this beautifully appointed two-bedroom semi-detached dormer bungalow. Situated in Sutton-On-Sea close to the sandy beaches and local amenities. This property offers versatile living space, including an entrance hall, lounge, kitchen, separate WC, shower room, and a conservatory, plus two adaptable loft rooms. The accommodation is perfectly complemented by stunning front and rear gardens.
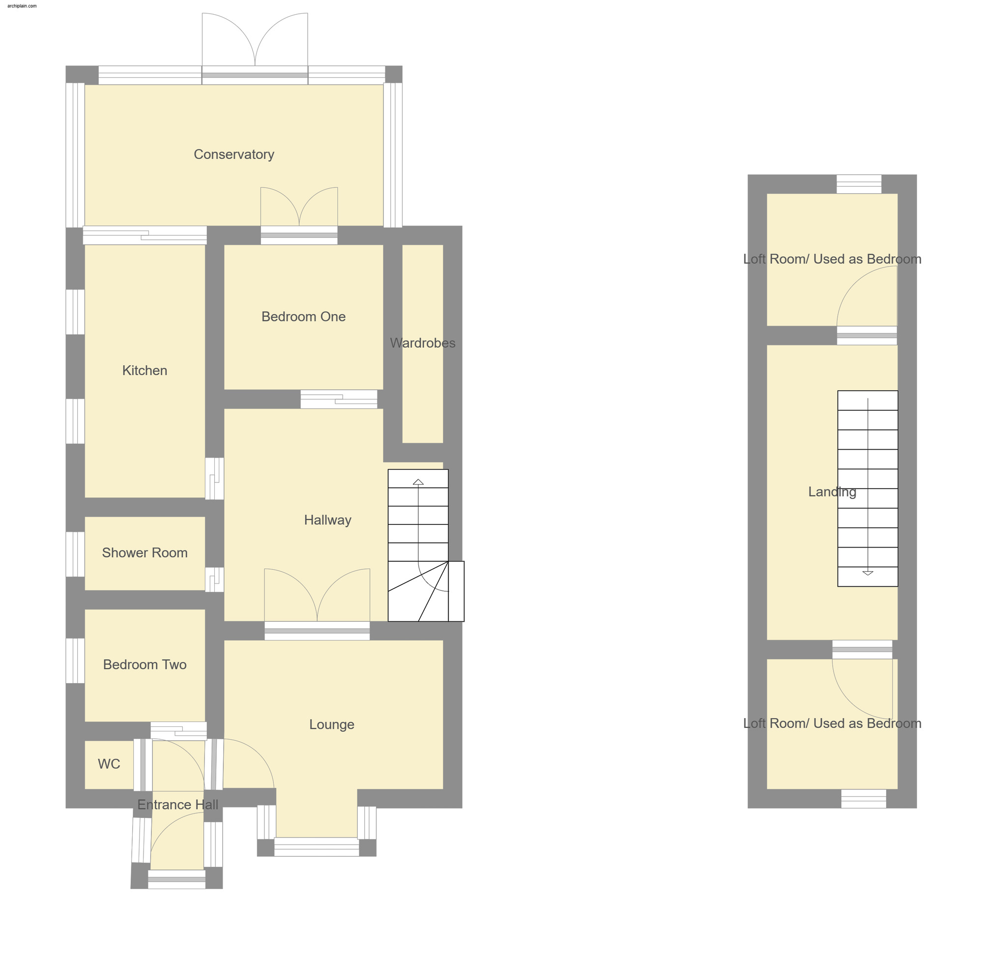
Entrance Hall
8'0" x 3'10" (2.44m x 1.17m)
Enter through the UVPC front door into the Entrance Hall. This space features a radiator, tiled flooring, and is brightened by a combination of downlights, ceiling light and two double-glazed side windows.
WC
2'9" x 2'6" (0.84m x 0.76m)
Fitted with a two-piece suite, this space includes a wall-hung sink with a stainless steel mixer tap and WC with a macerator system. It also houses the 'Instinct' boiler and a ceiling light.
Bedroom Two / Office
7'10" x 5'9" (2.40m x 1.75m)
This versatile room, Bedroom Two, is currently set up as an office. It is finished with laminate flooring and includes a radiator and a double-glazed side window.
Lounge
10'6" x 14'1" (3.20m x 4.30m)
With laminate flooring throughout, the Lounge is a cozy space defined by its attractive log burner and decorative stained-glass side windows. Practical storage is provided by built-in side cupboards, one concealing the new consumer unit. The room is well-lit by a double-glazed window to the front.
Hallway
10'10" x 10'11" (3.30m x 3.33m)
The Hallway features the staircase leading to the first floor, with built-in storage cleverly tucked underneath. Natural light is enhanced by a sun tunnel in the roof, and the space also includes a radiator, ceiling light and smoke alarm.
Shower Room
5'11" x 5'9" (1.80m x 1.75m)
The room is fitted with a three-piece suite featuring a combination unit with a sink (and stainless steel mixer tap) and a WC with a push flush. It includes an electric corner shower with 'Galaxy' controls and a stainless steel shower head. The finish includes blue tiled splashbacks and herringbone vinyl parquet flooring. Further features include a double-glazed side window, wall-mounted radiator, extractor fan and ceiling light.
Kitchen
12'8" x 6'2" (3.86m x 1.88m)
The Kitchen is fitted with a range of wooden style base units topped with complementary worktops. It features a one and a half bowl sink and drainer with a coated steel mixer tap, and an 'Indesit' electric cooker with a 'Hobsir' four-ring hob. Appliances include a washing machine and a freestanding fridge/freezer. The room has a radiator, ceiling light, two double-glazed side windows and sliding doors leading to the conservatory.
Conservatory
11'4" x 15'2" (3.45m x 4.62m)
Featuring tiled flooring throughout, this room is flooded with light from double-glazed windows to the side and rear. Double doors open directly onto the garden.
Bedroom 1
8'6" x 8'10" (2.60m x 2.70m)
This double bedroom features built-in wardrobes, radiator and laminate flooring. Double doors provide direct access to the conservatory and the room is complete with a ceiling light.
Landing
13'9" x 6'2" (4.20m x 1.88m)
The Landing is fitted with carpet, includes a radiator and ceiling light and features two small doors providing access to the eaves storage.
Loft Space 1
8'2" x 6'3" (2.50m x 1.90m)
The space includes a radiator, ceiling light, vinyl flooring, a double-glazed window to the rear and a door providing access to the eaves storage.
Loft Space 2
8'2" x 6'3" (2.50m x 1.90m)
The room features a double-glazed window to the front, vinyl flooring, radiator and a ceiling light.
Gardens
The front of the property is secured by large electric gates, opening onto a fully gravelled driveway bordered by fencing. An external electric point is conveniently located at the front. Side gate access leads directly to the rear garden, which is fully secured by fencing. The garden features a laid lawn area with planted borders showcasing wildflowers, trees, and shrubs. A paved seating area (crazy paving) extends from the house, leading towards the bottom of the garden. Further benefits include two storage sheds, a wood store, an outside tap and separate garden storage.
IMPORTANT NOTE TO POTENTIAL PURCHASERS:
We endeavour to make our particulars accurate and reliable, however, they do not constitute or form part of an offer or any contract and none is to be relied upon as statements of representation or fact. The services, systems and appliances listed in this specification have not been tested by us and no guarantee as to their operating ability or efficiency is given. All photographs and measurements have been taken as a guide only and are not precise. Floor plans where included are not to scale and accuracy is not guaranteed. If you require clarification or further information on any points, please contact us, especially if you are travelling some distance to view. Fixtures and fittings other than those mentioned are to be agreed with the seller.
Crabtree Lane, Sutton-on-Sea, Lincolnshire, LN12

Additional Information
-
Property refQSU250125
-
TenureFreehold
-
Council TaxA
-
Local authorityEast Lindsey District Council

Similar properties for sale by Your Move Sutton-on-Sea

Enter through the UVPC front door into the Entrance Hall. This space features a radiator, tiled flooring, and is brightened by a combination of downlights, ceiling light and two double-glazed side windows.


With laminate flooring throughout, the Lounge is a cozy space defined by its attractive log burner and decorative stained-glass side windows. Practical storage is provided by built-in side cupboards, one concealing the new consumer unit. The room is well-lit by a double-glazed window to the front.


The Hallway features the staircase leading to the first floor, with built-in storage cleverly tucked underneath. Natural light is enhanced by a sun tunnel in the roof, and the space also includes a radiator, ceiling light and smoke alarm.


The room is fitted with a three-piece suite featuring a combination unit with a sink (and stainless steel mixer tap) and a WC with a push flush. It includes an electric corner shower with 'Galaxy' controls and a stainless steel shower head. The finish includes blue tiled splashbacks and herringbone vinyl parquet flooring. Further features include a double-glazed side window, wall-mounted radiator, extractor fan and ceiling light.

The Kitchen is fitted with a range of wooden style base units topped with complementary worktops. It features a one and a half bowl sink and drainer with a coated steel mixer tap, and an 'Indesit' electric cooker with a 'Hobsir' four-ring hob. Appliances include a washing machine and a freestanding fridge/freezer. The room has a radiator, ceiling light, two double-glazed side windows and sliding doors leading to the conservatory.



Featuring tiled flooring throughout, this room is flooded with light from double-glazed windows to the side and rear. Double doors open directly onto the garden.


This double bedroom features built-in wardrobes, radiator and laminate flooring. Double doors provide direct access to the conservatory and the room is complete with a ceiling light.


The Landing is fitted with carpet, includes a radiator and ceiling light and features two small doors providing access to the eaves storage.

The front of the property is secured by large electric gates, opening onto a fully gravelled driveway bordered by fencing. An external electric point is conveniently located at the front. Side gate access leads directly to the rear garden, which is fully secured by fencing. The garden features a laid lawn area with planted borders showcasing wildflowers, trees, and shrubs. A paved seating area (crazy paving) extends from the house, leading towards the bottom of the garden. Further benefits include two storage sheds, a wood store, an outside tap and separate garden storage.








The pin shows the exact address of the property
Energy Efficiency Rating
Very energy efficient - lower running costs
Not energy efficient - higher running costs
Current
N/APotential
N/ACO2 Rating
Very energy efficient - lower running costs
Not energy efficient - higher running costs