This calculator provides a guide to the amount of residential stamp duty you may pay and does not guarantee this will be the actual cost. This calculation is based on the Stamp Duty Land Tax Rates for residential properties purchased from 23rd September 2022 and second homes from 31st October 2024. For more information on Stamp Duty Land Tax, click here.
2 bedroom Semi Detached Bungalow for sale, Hollam Way, Kingsteignton, Devon, TQ12
Features and Description
For Sale Via Modern Auction Starting Bid £190,000
This two-bedroom semi-detached bungalow is for sale via modern auction in Kingsteignton, near Newton Abbot, and is presented in good condition. It will appeal to first-time buyers and investors seeking a well-located single-storey home with practical features and strong local amenities.
The accommodation includes one reception room and one kitchen, along with two bedrooms, including a double bedroom. There is one bathroom. The property benefits from off-road parking and a south-facing garden, providing outdoor space with good natural light. The overall energy performance of the home is supported by an EPC rating of C, and it falls within Council Tax Band B.
Situated in a sought-after residential area of Kingsteignton, the bungalow enjoys convenient access to local amenities including shops, supermarkets, schools and everyday services in both Kingsteignton and nearby Newton Abbot. There are pleasant local walking routes, with riverside and countryside paths within easy reach.
Public transport links are a key advantage. Newton Abbot railway station is the nearest mainline station, offering direct services to Exeter (around 20–25 minutes), Plymouth (around 35–40 minutes) and Bristol (approximately 1 hour 20 minutes), as well as London Paddington on selected services. Local bus routes connect Kingsteignton with Newton Abbot town centre and surrounding areas, providing practical options for commuting and leisure.
Overall, this two-bedroom semi-detached bungalow combines off-road parking, a south-facing garden and convenient access to transport and amenities, making it a practical purchase in a popular location.
Auction:
This property is for sale by Modern Method of Auction allowing the buyer and seller to complete within a 56 Day Reservation
Period. Interested parties’ personal data will be shared with the Auctioneer (iamsold Ltd).
If considering a mortgage, inspect and consider the property carefully with your lender before bidding. A Buyer Information
Pack is provided, which you must view before bidding. The buyer is responsible for the Pack fee. For the most recent
information on the Buyer Information Pack fee, please contact the iamsold team.
The buyer signs a Reservation Agreement and makes payment of a Non-Refundable Reservation Fee of 4.5% of the purchase
price inc VAT, subject to a minimum of £6,600 inc. VAT. This Fee is paid to reserve the property to the buyer during the
Reservation Period and is paid in addition to the purchase price. The Fee is considered within calculations for stamp duty.
Services may be recommended by the Agent/Auctioneer in which they will receive payment from the service provider if the
service is taken. Payment varies but will be no more than £960 inc. VAT. These services are optional.
Key Features
• Two-bedroom semi-detached bungalow• Good condition throughout• Off-road private parking• Sunny south-facing garden• Energy-efficient EPC rating C• Sought-after Kingsteignton location• Close to shops and supermarkets• Near Newton Abbot mainline station• Good bus and transport links• Ideal for first-time buyers or investors
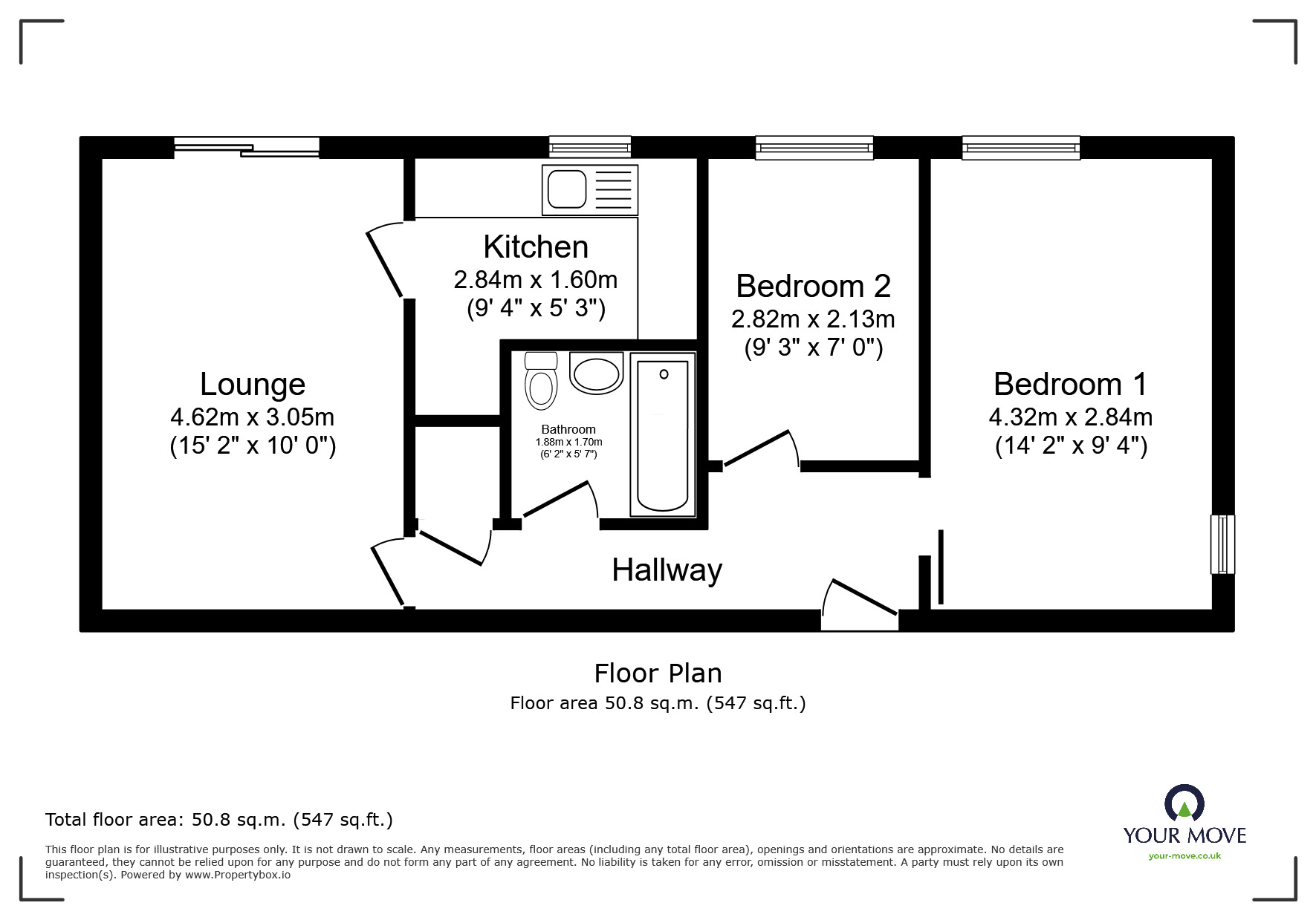
Lounge
15'2" x 10'0" (4.62m x 3.05m)
Kitchen
9'4" x 5'3" (2.84m x 1.60m)
Bedroom 1
4.27m
Bedroom 2
9'3" x 6'12" (2.82m x 2.13m)
Bathroom
6'2" x 6'7" (1.88m x 2.00m)
IMPORTANT NOTE TO POTENTIAL PURCHASERS:
We endeavour to make our particulars accurate and reliable, however, they do not constitute or form part of an offer or any contract and none is to be relied upon as statements of representation or fact. The services, systems and appliances listed in this specification have not been tested by us and no guarantee as to their operating ability or efficiency is given. All photographs and measurements have been taken as a guide only and are not precise. Floor plans where included are not to scale and accuracy is not guaranteed. If you require clarification or further information on any points, please contact us, especially if you are travelling some distance to view. Fixtures and fittings other than those mentioned are to be agreed with the seller.
Hollam Way, Kingsteignton, Devon, TQ12
Additional Information
-
Property refNEA250487
-
EPCC
-
TenureFreehold
-
Council TaxB
-
Local authorityTeignbridge Council
Similar properties for sale by Your Move Newton Abbot
The pin shows the exact address of the property
Energy Efficiency Rating
Very energy efficient - lower running costs
Not energy efficient - higher running costs
Current
71Potential
90CO2 Rating
Very energy efficient - lower running costs
Not energy efficient - higher running costs
