This calculator provides a guide to the amount of residential stamp duty you may pay and does not guarantee this will be the actual cost. This calculation is based on the Stamp Duty Land Tax Rates for residential properties purchased from 23rd September 2022 and second homes from 31st October 2024. For more information on Stamp Duty Land Tax, click here.

















4 bedroom Semi Detached Bungalow for sale, Moss Bank Road, Wardley, Manchester, M27
Features and Description
- Fabulous dormer bungalow in the sought after location of Wardley!
- Perfect family home with a primary and secondary school all within a 5 minute walk!
- Excellent Transport links including Moorside and Swinton Train Station a short walk away.
- Stunning low maintenance rear garden, with enclosed outdoor room.
- Ample off road parking for up to 3 cars - A newly updated resin driveway
- Three / Four Bedroom home - spacious accommodation on offer
This immaculate semi-detached bungalow presents an exceptional opportunity for first-time buyers and families seeking a modern, spacious home in a sought-after location. Thoughtfully designed and well-maintained throughout, the property offers an ideal blend of comfort, style, and practicality.
The property features a generously sized separate reception room, which benefits from large windows allowing natural light to flood the space and a gas fire, providing a welcoming atmosphere for relaxation or entertaining guests. The kitchen is both functional and stylish, equipped with Corian worktops, sizeable built-in pantry, and abundant natural light. With bifold doors opening up to the garden, creating a seamless connection between the indoor and outdoor living spaces, perfect for al fresco dining or family gatherings. There is a separate dining room, which could also double up as a fourth bedroom, with bifold doors to overlook the rear garden. Offering a second downstairs bedroom, equipped with fully fitted wardrobes offering plenty of storage space. The downstairs shower room includes a walk in shower cubicle, completing the ground floor with full downstairs living if needed.
Heading upstairs you will find the master bedroom is complete with built-in wardrobes for added storage, while the second bedroom also including built-in wardrobes. The family bathroom is modern with tiled flooring and walls, and a white three piece suite with shower over the bath. Access can be found to the large storage room in the eaves.
The bungalow is complemented by unique features such as solar panels for improved energy efficiency, ample parking on the driveway, and a large garden room offering outdoor space to enjoy all year round!
Situated on a quiet estate in Wardley, the home would be perfect for a growing family with Wardley Primary School at the end of the road, and St Ambrose Barlow High School a few moments away. There is excellent transport links with Moorside Train Station less than a 10 minute walk away, and bus routes along Chorley Road providing easy access into Manchester City Centre. Further amenities on your doorstep such as Tesco Express, Wardley Park, Swinton Square nearby, and so much more!
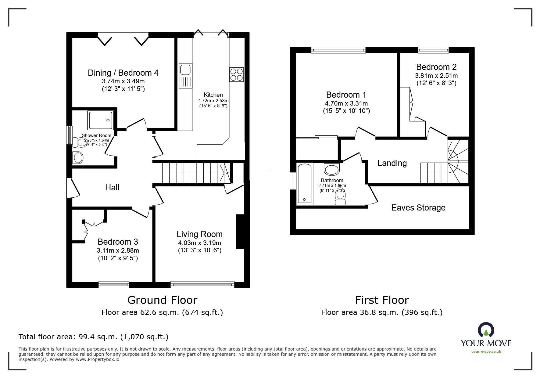
Living Room
13'3" x 10'6" (4.03m x 3.19m)
A sizeable living space which is beautifully decorated with wallpaper and beige carpets. Further benefiting venetian blinds to the window, a gas fire with remote control, and access to under-the-stairs storage space.
Kitchen
15'6" x 8'6" (4.72m x 2.58m)
A modern fitted kitchen with grey Corian worktops and white gloss units. Featuring a large built in pantry, Bosch appliances to include a double oven, oven, gas five ring hob, and space for freestanding appliance such as washer, dryer, dishwasher, and fridge freezer. Aluminium framed bifold doors can be opened up for indoor / outdoor living!
Dining Room / Fourth Bedroom
12'3" x 11'5" (3.74m x 3.49m)
A room that can be tailored to fit your needs! Currently used as a dining room but has the opportunity to be used as a double bedroom if needed. With wallpapered decoration, grey carpets, and aluminium framed bifold doors to access the rear garden.
Bedroom 3
10'2" x 9'5" (3.11m x 2.88m)
A double bedroom complete with white fitted wardrobes, overhead storage, and matching bedside drawers.
Shower Room
7'4" x 5'5" (2.23m x 1.64m)
A neutral shower room with white tiles and wood effect vinyl flooring. Including a corner shower unit with glass screen doors, toilet, and sink.
Bedroom 1
15'5" x 10'10" (4.70m x 3.31m)
A generously sized main bedroom with the added benefit of a fitted wardrobe with sliding doors.
Bedroom 2
8'3" x 12'6" (2.51m x 3.81m)
Another bedroom with a fitted corner wardrobe to maximise space.
Bathroom
8'11" x 5'5" (2.71m x 1.66m)
A fully tiled bathroom, with a shower over the bath, sink and toilet. Access can be found to the large storage room in the eaves.
External
The home offers plenty of parking for three cars on the newly updated resin driveway. The garden at the rear is low maintenance, with a resin patio area, artificial grass and paving. There is a large enclosed outdoor area offering storage space or seating area. The roof was renewed in 2024 with Solar Panels which were added. These are owned outright, including the battery.
IMPORTANT NOTE TO POTENTIAL PURCHASERS:
We endeavour to make our particulars accurate and reliable, however, they do not constitute or form part of an offer or any contract and none is to be relied upon as statements of representation or fact. The services, systems and appliances listed in this specification have not been tested by us and no guarantee as to their operating ability or efficiency is given. All photographs and measurements have been taken as a guide only and are not precise. Floor plans where included are not to scale and accuracy is not guaranteed. If you require clarification or further information on any points, please contact us, especially if you are travelling some distance to view. Fixtures and fittings other than those mentioned are to be agreed with the seller.
Moss Bank Road, Wardley, Manchester, M27

Additional Information
-
Property refSWT250341
-
EPCB
-
TenureLeasehold
-
Lease length933 years
-
Council TaxB
-
Local authoritySalford City Council
-
Ground Rent£10
-
Ground Rent ReviewContact the branch
-
Service ChargeContact the branch


















The pin shows the exact address of the property
Energy Efficiency Rating
Very energy efficient - lower running costs
Not energy efficient - higher running costs
Current
89Potential
91CO2 Rating
Very energy efficient - lower running costs
Not energy efficient - higher running costs