This calculator provides a guide to the amount of residential stamp duty you may pay and does not guarantee this will be the actual cost. This calculation is based on the Stamp Duty Land Tax Rates for residential properties purchased from 23rd September 2022 and second homes from 31st October 2024. For more information on Stamp Duty Land Tax, click here.
3 bedroom Semi Detached House for sale, Ashley Crescent, Swinton, Greater Manchester, M27
Features and Description
- Recently renovated throughout in the last 12 months!
- Brand new resin driveway and landscaped rear garden with paved patio areas and composite decking
- Spacious living room that has bifold doors to open up onto the beautiful garden!
- Newly fitted kitchen with breakfast bar area and garden access!
- Three well proportioned bedrooms, all neutrally decorated
- Modern shower room
- Sought after location of South Swinton! Lots of amenities close by
- Perfect family home and close proximity to local schools!
This three-bedroom semi-detached house is for sale in Swinton, Manchester, offering practical accommodation suited to families and first-time buyers.
The property features a separate reception room with views over the garden and bifold doors opening directly onto the outdoor space, creating a link between inside and outside living areas. The kitchen benefits from good natural light, includes a breakfast area, and has direct access to the garden, supporting everyday family use and informal dining.
There are three bedrooms: two doubles and one spacious single, providing flexibility for sleeping arrangements, a home office, or guest use. The bathroom has been recently renovated and includes a shower cubicle.
Externally, the property has a recently landscaped garden and parking, adding useful convenience for households with a vehicle and those who value private outdoor space.
Location:
Ideally located with close proximity to both Worsley and Monton Village offering a range of bars, restaurants and independent shops, and even a lovely scenic walk down Worsley Loop Line. Within Catchment area to excellent local secondary and Primary schools, including Broadoak Primary, and excellent transport links on your doorstep with the M60 motorway nearby and A580 for easy access into Manchester City Centre.
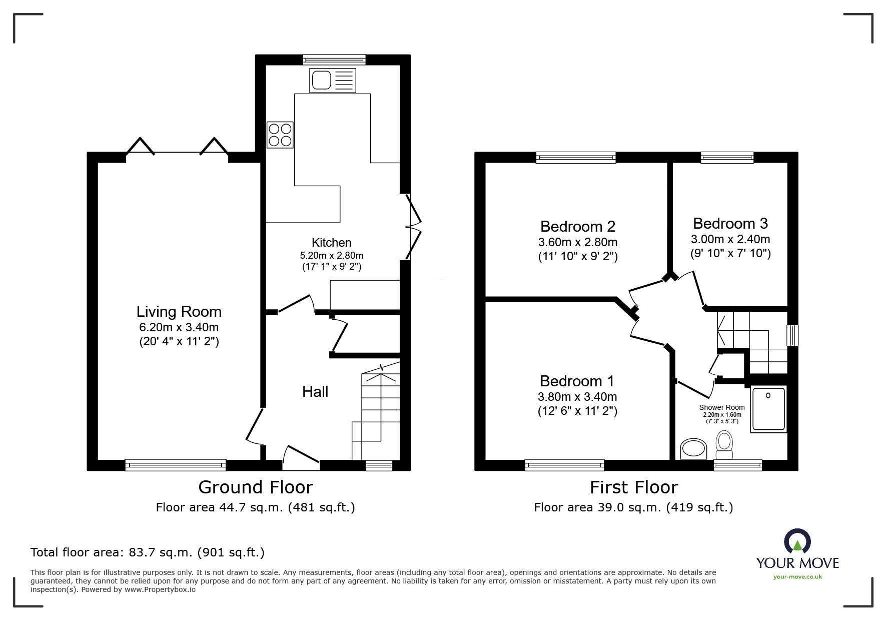
Living Room
20'4" x 11'2" (6.20m x 3.40m)
A spacious living room which can accommodate dining space too. Neutrally decorated with white painted walls and cream carpets. Bifold doors allow floods of natural light and make it perfect for indoor / outdoor living during the warmer months.
Kitchen
17'1" x 9'2" (5.20m x 2.80m)
A modern kitchen with neutral wall and base units and wooden look worktops. Including an oven, gas hob, integrated microwave, fridge freezer and washing machine. With the added benefit of a breakfast bar area ideal for quick meals or morning coffee. The boiler can also be found in a built in cupboard.
Bedroom 1
12'6" x 11'2" (3.80m x 3.40m)
All three bedrooms can be found decorated with white paint and cream carpets. The main bedroom is well proportioned, with space for freestanding furnishings.
Bedroom 2
11'10" x 9'2" (3.60m x 2.80m)
A second double bedroom which overlooks the lovely garden.
Bedroom 3
9'10" x 7'10" (3.00m x 2.40m)
The third bedroom is surprisingly spacious. With the option for a single or small double bed.
Bathroom
7'3" x 5'3" (2.20m x 1.60m)
Fitted with a shower cubicle with black shower tray, white tiles and tinted glass screen. Matching with a black towel radiator, sink unit, and white toilet.
External
The front of the property is complete with a resin driveway which has just been completed in November 2025. The rear garden has also just been finished, with a side patio area, lawn, and two areas with composite decking to provide different seating areas.
IMPORTANT NOTE TO POTENTIAL PURCHASERS:
We endeavour to make our particulars accurate and reliable, however, they do not constitute or form part of an offer or any contract and none is to be relied upon as statements of representation or fact. The services, systems and appliances listed in this specification have not been tested by us and no guarantee as to their operating ability or efficiency is given. All photographs and measurements have been taken as a guide only and are not precise. Floor plans where included are not to scale and accuracy is not guaranteed. If you require clarification or further information on any points, please contact us, especially if you are travelling some distance to view. Fixtures and fittings other than those mentioned are to be agreed with the seller.
Ashley Crescent, Swinton, Greater Manchester, M27
Additional Information
-
Property refSWT250569
-
EPCD
-
TenureFreehold
-
Council TaxB
-
Local authoritySalford City Council
The pin shows the exact address of the property
Energy Efficiency Rating
Very energy efficient - lower running costs
Not energy efficient - higher running costs
Current
66Potential
78CO2 Rating
Very energy efficient - lower running costs
Not energy efficient - higher running costs
