This calculator provides a guide to the amount of residential stamp duty you may pay and does not guarantee this will be the actual cost. This calculation is based on the Stamp Duty Land Tax Rates for residential properties purchased from 23rd September 2022 and second homes from 31st October 2024. For more information on Land and Buildings Transaction Tax, click here.
4 bedroom Semi Detached House for sale, Biggar Road, Carnwath, South Lanarkshire, ML11
Features and Description
Spacious semi detached home, offering flexible living, located in the heart of the village. A wonderful family home, impressive lounge with bay window, modern fitted kitchen with utility room. Upstairs the master bedroom is equally impressive, beautifully presented, again with feature bay window and also a fabulous walk in wardrobe. The bathroom is a good size, featuring a corner bath and separate double shower. Standing on a good sized plot, ample parking to side, leading to the detached double garage, the rear garden is fully enclosed, a gate takes you out the back, towards the bowling club and playpark beyond, really handy for children or taking the dog out for a walk.
Located in the village of Carnwath, South Lanarkshire. Here you'll find all the amenities and recreational facilities you'd expect to find in a lovely village like Carnwath. With a good range of local shops, cafes, bakery, the village also benefits from having a local primary school and also a doctors surgery. There is a popular18 hole golf course and bowling club for those with a sporting outlook to life. The property also lies in close proximity to the market towns of Biggar and Lanark, where a wide range of schools, shops, amenities, entertainment and recreational facilities can be found, good access to the Scottish Borders and the Clyde valley, providing excellent walks for the outdoor enthusiast including Tinto Hill and the Falls of Clyde. Edinburgh City Bypass is only a twenty-five minute drive away, providing access to East Central Scotland. The M74 is also only a twenty-five minute journey offering access to Glasgow and the West of Scotland. In all, this property is ideally situated for the commuter across the central belt and beyond.
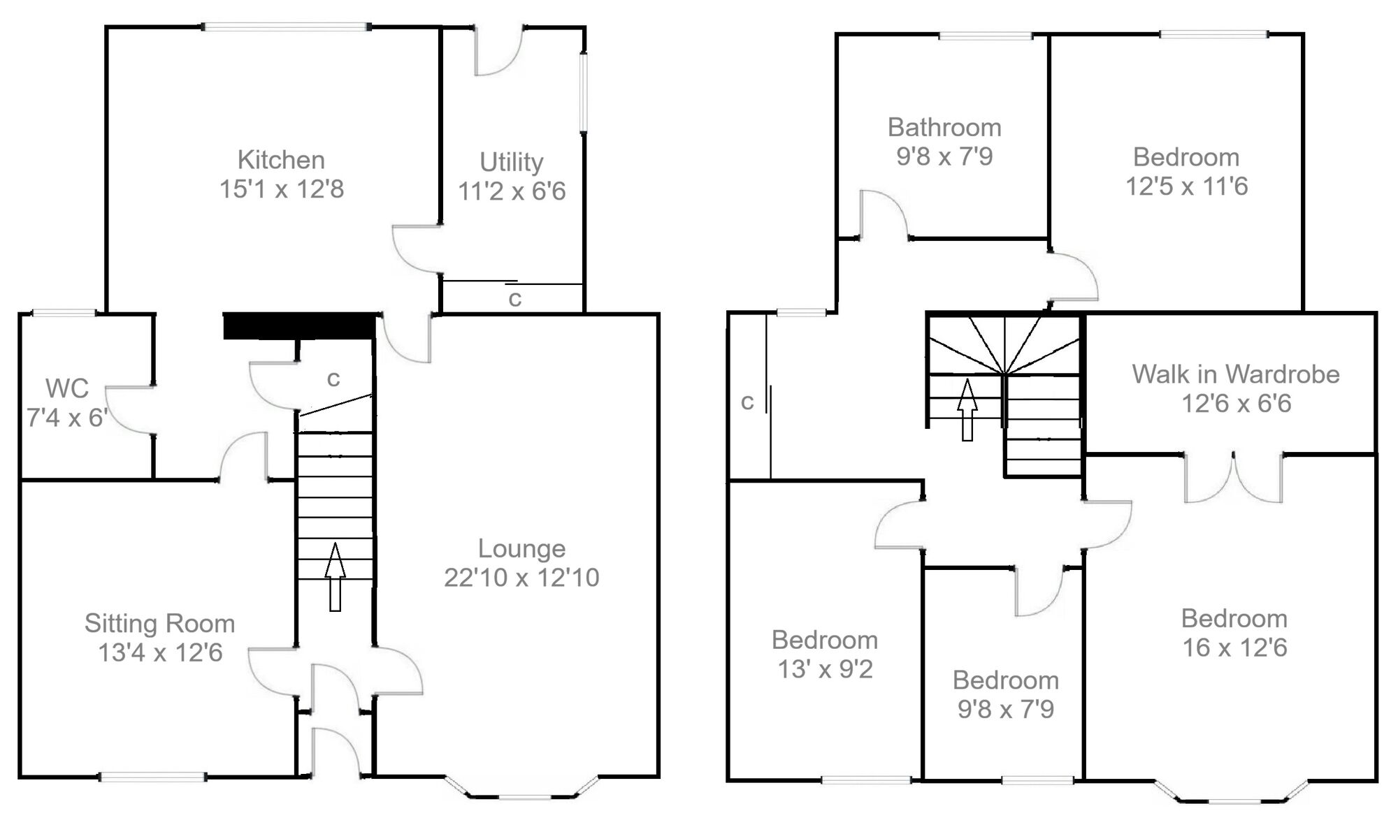
Lounge
22'10" x 12'10" (6.96m x 3.90m)
Sitting Room
13'4" x 12'6" (4.06m x 3.80m)
Kitchen
15'1" x 12'8" (4.60m x 3.86m)
Utility Room
11'2" x 6'6" (3.40m x 1.98m)
WC
7'4" x 6'0" (2.24m x 1.83m)
Bedroom
16'0" x 12'6" (4.88m x 3.80m)
Bedroom
12'5" x 11'6" (3.78m x 3.50m)
Bedroom
12'12" x 9'2" (3.96m x 2.80m)
Bedroom
9'8" x 7'9" (2.95m x 2.36m)
Bathroom
9'8" x 7'9" (2.95m x 2.36m)
IMPORTANT NOTE TO POTENTIAL PURCHASERS:
We endeavour to make our particulars accurate and reliable, however, they do not constitute or form part of an offer or any contract and none is to be relied upon as statements of representation or fact. The services, systems and appliances listed in this specification have not been tested by us and no guarantee as to their operating ability or efficiency is given. All photographs and measurements have been taken as a guide only and are not precise. Floor plans where included are not to scale and accuracy is not guaranteed. If you require clarification or further information on any points, please contact us, especially if you are travelling some distance to view. Fixtures and fittings other than those mentioned are to be agreed with the seller.
Biggar Road, Carnwath, South Lanarkshire, ML11
Additional Information
-
Property refLAN250109
-
EPCE
-
TenureFreehold
-
Council TaxD
-
Local authoritySouth Lanarkshire Council
The pin shows the exact address of the property
Energy Efficiency Rating
Very energy efficient - lower running costs
Not energy efficient - higher running costs
Current
39Potential
68CO2 Rating
Very energy efficient - lower running costs
Not energy efficient - higher running costs
