This calculator provides a guide to the amount of residential stamp duty you may pay and does not guarantee this will be the actual cost. This calculation is based on the Stamp Duty Land Tax Rates for residential properties purchased from 23rd September 2022 and second homes from 31st October 2024. For more information on Stamp Duty Land Tax, click here.
3 bedroom Semi Detached House for sale, Booth Road, Little Lever, Greater Manchester, BL3
Features and Description
- Three-bedroom semi-detached house
- Private garden with direct access
- Single garage plus secure parking
- Two bright reception rooms
- Good condition throughout
- Ideal for first-time buyers
- Close to schools and amenities
- Near parks and green spaces
- Bus links to Bolton centre
- Easy access to Bolton train station
EPC RATING-D LEASEHOLD
This three-bedroom semi-detached house is offered for sale in Little Lever, Bolton, and presents a practical option for first-time buyers and families. The property is in good condition and benefits from a private garden and a single garage, providing both outdoor space and secure parking or storage.
Inside, there are two reception rooms. The first reception room features large windows, allowing good natural light. The second reception room enjoys a garden view and direct access to the garden, creating a convenient link between indoor and outdoor areas. There is one kitchen and one bathroom, and the property is in Council Tax Band A.
Little Lever offers a range of nearby schools and local amenities, including shops, supermarkets and everyday services within the village centre. There are also local parks and green spaces in and around Little Lever, providing options for walking and recreation.
Public transport connections are available via bus routes linking Little Lever with Bolton town centre and surrounding areas. Bolton train station, typically around a 10–15 minute drive away depending on traffic, offers regular services to Manchester, with journey times often around 20 minutes, and further connections across the region.
The location also allows reasonable access to Bolton’s wider facilities, including retail parks, leisure centres and cafés, while still being situated in a residential setting. This semi-detached house combines three-bedroom accommodation, a garden, and a single garage in a position convenient for local schools and amenities.
Tenure
Leasehold1000 years (less 10 days) from 10 May 1859.
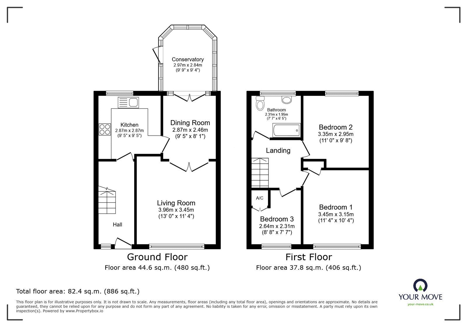
Entrance Hall
Stairs to the landing, radiator, under stairs storage, uPvc double glazed door and window, alarm panel.
Living Room
12'12" x 11'4" (3.96m x 3.45m)
Radiator, uPvc double glaze window to the front elevation.
Dining Room
9'5" x 8'1" (2.87m x 2.46m)
Radiator, uPvc double French doors to the conservatory.
Kitchen
9'5" x 9'5" (2.87m x 2.87m)
A range of wall and base units with a complementary work surface, integrated oven and hob, spaces for appliances, part tiled elevations, uPvc double glazed window to the rear elevation, single drainer and sink with a mixer tap.
Conservatory
9'9" x 9'4" (2.97m x 2.84m)
Tiled flooring, uPvc double glazed door to the rear garden.
Landing
Loft Access.
Main Bedroom
10'4" x 11'4" (3.15m x 3.45m)
uPvc double glazed window to the front elevation, radiator, walk in wardrobe.
Bedroom
10'12" x 9'8" (3.35m x 2.95m)
uPvc double glazed window to the rear elevation, radiator.
Bedroom
8'8" x 7'7" (2.64m x 2.30m)
uPvc double glazed window to the front elevation, radiator, airing cupboard housing the boiler.
Bathroom
Comprising of a three piece suite, uPvc double glazed frosted windows, feature spot down lights, radiator.
External
To the front of the property there is a well established enclosed garden. To the rear of the property the garden has paving and a lawn area, gated side access, outside tap.
Garage
Single garage with up and over door.
IMPORTANT NOTE TO POTENTIAL PURCHASERS:
We endeavour to make our particulars accurate and reliable, however, they do not constitute or form part of an offer or any contract and none is to be relied upon as statements of representation or fact. The services, systems and appliances listed in this specification have not been tested by us and no guarantee as to their operating ability or efficiency is given. All photographs and measurements have been taken as a guide only and are not precise. Floor plans where included are not to scale and accuracy is not guaranteed. If you require clarification or further information on any points, please contact us, especially if you are travelling some distance to view. Fixtures and fittings other than those mentioned are to be agreed with the seller.
Booth Road, Little Lever, Greater Manchester, BL3
Additional Information
-
Property refRAD260015
-
EPCD
-
TenureLeasehold
-
Lease length833 years
-
Council TaxA
-
Local authorityBolton Metropolitan Borough Council
-
Ground RentContact the branch
-
Ground Rent ReviewContact the branch
-
Service ChargeContact the branch
Similar properties for sale by Your Move Radcliffe
A range of wall and base units with a complementary work surface, integrated oven and hob, spaces for appliances, part tiled elevations, uPvc double glazed window to the rear elevation, single drainer and sink with a mixer tap.
Tiled flooring, uPvc double glazed door to the rear garden.
uPvc double glazed window to the front elevation, radiator, walk in wardrobe.
uPvc double glazed window to the rear elevation, radiator.
Comprising of a three piece suite, uPvc double glazed frosted windows, feature spot down lights, radiator.
Single garage with up and over door.
The pin shows the exact address of the property
Energy Efficiency Rating
Very energy efficient - lower running costs
Not energy efficient - higher running costs
Current
68Potential
88CO2 Rating
Very energy efficient - lower running costs
Not energy efficient - higher running costs
