This calculator provides a guide to the amount of residential stamp duty you may pay and does not guarantee this will be the actual cost. This calculation is based on the Stamp Duty Land Tax Rates for residential properties purchased from 23rd September 2022 and second homes from 31st October 2024. For more information on Stamp Duty Land Tax, click here.
3 bedroom Semi Detached House for sale, Castlewood Road, Salford, Greater Manchester, M7
Features and Description
- Beautifully presented home offered for sale with NO ONWARD CHAIN!
- Open-plan kitchen / Diner with patio doors opening up onto the rear garden.
- Well decorated reception room with large windows
- Modern bathroom with shower over bath
- Two double bedrooms plus single - all well proportioned
- Driveway parking and a single garage
- Close to shops and local amenities
- Good transport links to Manchester city centre
This well presented, three bedroom semi-detached house in Salford is offered for sale with NO ONWARD CHAIN! Offering a practical layout suited to first-time buyers and families.
The accommodation includes a separate reception room with large windows and neutral decoration, providing a comfortable living space. The open-plan kitchen benefits from good natural light, dining space and direct access to the garden, creating a functional area for everyday cooking and mealtimes.
There are three bedrooms: two doubles and a single bedroom. All well proportioned and beautifully decorated. The modern bathroom includes a shower over the bath.
Externally, the property includes a garden, off-street parking and a single garage, providing additional storage and vehicle space.
Location:
Located in Salford’s M7 area, the house is within reach of local amenities including shops, cafés and everyday services along Bury New Road and nearby high streets.
For those who enjoy the outdoors or taking the dog on a nice walk you will find Drinkwater Park a stones throw away, as well as Kersal Wetlands and Heaton Park offering green spaces and walking routes.
Public transport links are also available via nearby bus routes along Bury New Road and Littleton Road offering regular services into Manchester city centre and across Salford.
There is easy access into Prestwich which offers a variety of amenities and is well-connected to the rest of Greater Manchester, with easy access to the M60 motorway, several bus routes and its own Metrolink station, providing direct links to Manchester city centre and other destinations.
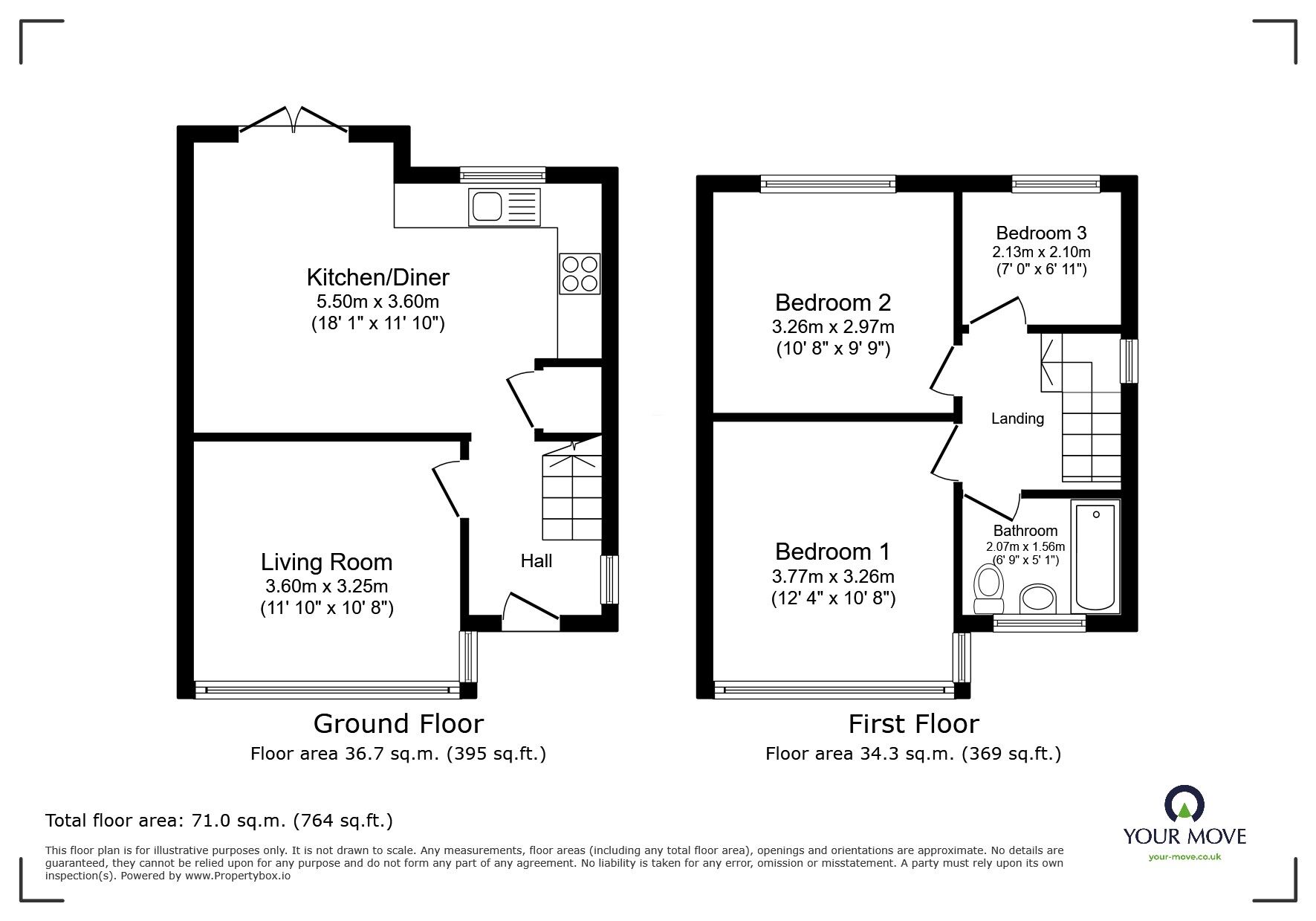
Living Room
11'10" x 10'8" (3.60m x 3.25m)
A separate living room with large windows for natural light. Neutrally decorated with feature panelling and laminated flooring.
Kitchen / Diner
18'1" x 11'10" (5.50m x 3.60m)
An open plan kitchen / dining room. The kitcen features matte cream wall and base units with black worktops and black tiles splash backs. With space for freestanding appliances such as washing machine, dryer, fridge freezer, and integrated gas hob and oven. You will also find an under-the-stairs storage cupboard here, which houses the gas combi boiler. There are patio doors which open up onto the rear garden.
Bedroom 1
12'4" x 10'8" (3.77m x 3.26m)
A well proportioned main bedroom with large windows. Well decorated with grey laminated flooring and space for freestanding furniture.
Bedroom 2
10'8" x 9'9" (3.26m x 2.97m)
The second bedroom is another good double. With white decoration and a feature wall with grey wallpaper, and grey laminated flooring.
Bedroom 3
6'12" x 6'11" (2.13m x 2.10m)
A single bedroom, perfect as a guest or child's room or home office.
Bathroom
6'9" x 5'1" (2.07m x 1.56m)
The modern bathroom is fully tiled, including a shower over the bath with glass screen, and toilet and sink unit.
IMPORTANT NOTE TO POTENTIAL PURCHASERS:
We endeavour to make our particulars accurate and reliable, however, they do not constitute or form part of an offer or any contract and none is to be relied upon as statements of representation or fact. The services, systems and appliances listed in this specification have not been tested by us and no guarantee as to their operating ability or efficiency is given. All photographs and measurements have been taken as a guide only and are not precise. Floor plans where included are not to scale and accuracy is not guaranteed. If you require clarification or further information on any points, please contact us, especially if you are travelling some distance to view. Fixtures and fittings other than those mentioned are to be agreed with the seller.
Castlewood Road, Salford, Greater Manchester, M7
Additional Information
-
Property refSWT260194
-
EPCC
-
TenureFreehold
-
Council TaxA
-
Local authoritySalford City Council
The pin shows the exact address of the property
Energy Efficiency Rating
Very energy efficient - lower running costs
Not energy efficient - higher running costs
Current
71Potential
85CO2 Rating
Very energy efficient - lower running costs
Not energy efficient - higher running costs
