This calculator provides a guide to the amount of residential stamp duty you may pay and does not guarantee this will be the actual cost. This calculation is based on the Stamp Duty Land Tax Rates for residential properties purchased from 23rd September 2022 and second homes from 31st October 2024. For more information on Stamp Duty Land Tax, click here.
3 bedroom Semi Detached House for sale, Charlton Court, Bowburn, Durham, DH6
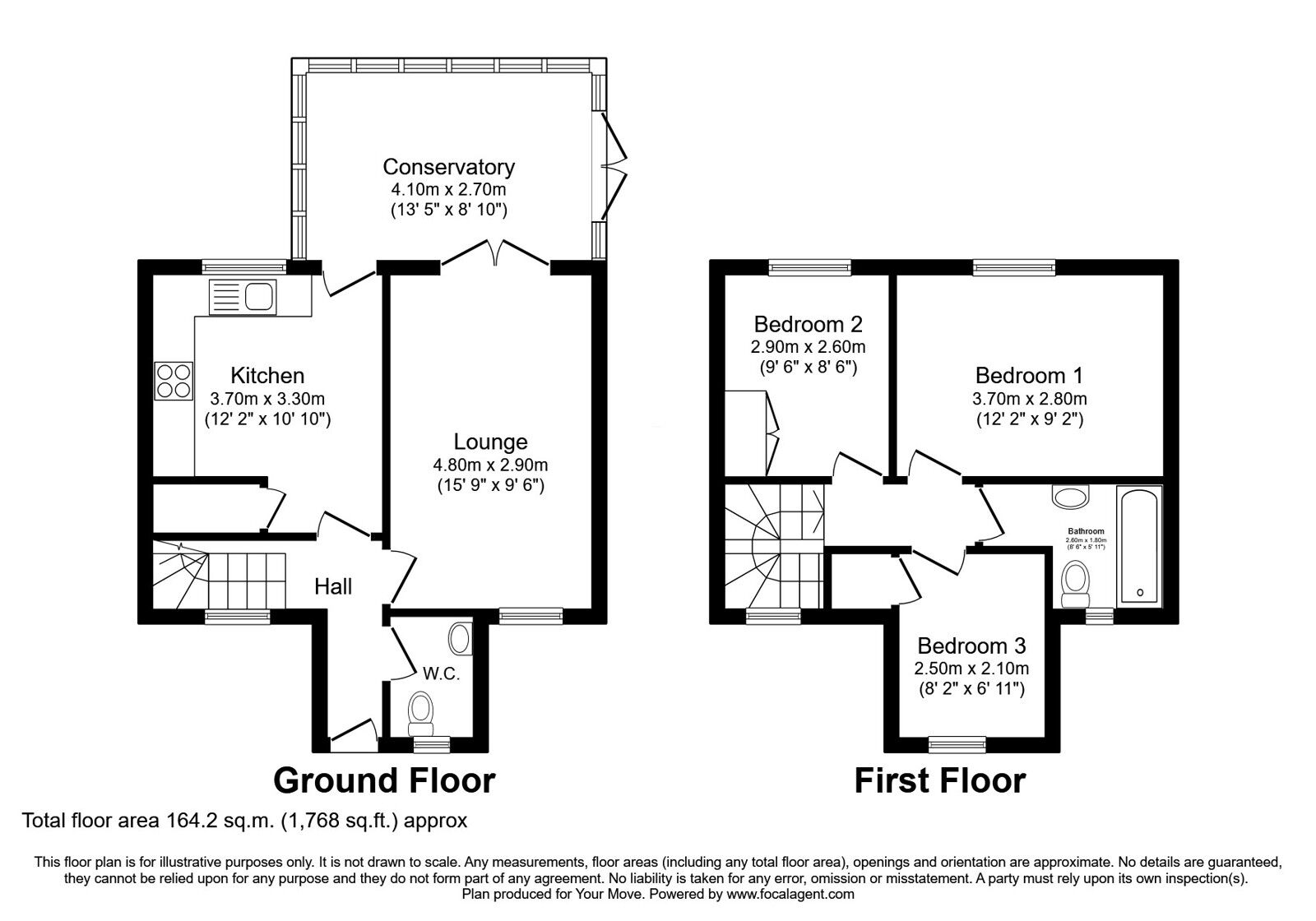
Features and Description
- Three Bedroom Semi Detached Home
- Driveway and Garage
- Enclosed Rear Garden
- EPC - C
- Council Tax Band C
- Approx. 67sqm/721sqft Accommodation.
This spacious and well presented freehold semi-detached house provides practical, well-maintained living space suited to a range of buyers. The layout is designed for comfortable day-to-day living, with a spacious main living room leading through to a conservatory at the rear, creating a flexible area for dining or relaxing while enjoying views of the garden.
The kitchen is fitted with modern units, offering good storage and workspace. Upstairs, there are three well-proportioned bedrooms and a modern bathroom, making the property well suited to first time buyers or those looking to upsize. A second WC adds further convenience for busy households.
Externally, the home benefits from a lawned front garden and a driveway to the side leading to a single garage, providing useful parking and storage. The enclosed rear garden features fenced boundaries and an east-facing aspect, ideal for enjoying morning sun and outdoor entertaining.
The property is conveniently positioned within reach of local shops, schools and transport links, making it a practical choice for commuters and families alike. Durham County Council, Band C. EPC Band C.
IMPORTANT NOTE TO POTENTIAL PURCHASERS:
We endeavour to make our particulars accurate and reliable, however, they do not constitute or form part of an offer or any contract and none is to be relied upon as statements of representation or fact. The services, systems and appliances listed in this specification have not been tested by us and no guarantee as to their operating ability or efficiency is given. All photographs and measurements have been taken as a guide only and are not precise. Floor plans where included are not to scale and accuracy is not guaranteed. If you require clarification or further information on any points, please contact us, especially if you are travelling some distance to view. Fixtures and fittings other than those mentioned are to be agreed with the seller.
Charlton Court, Bowburn, Durham, DH6
Additional Information
-
Property refQDR260041
-
EPCC
-
TenureFreehold
-
Council TaxC
-
Local authorityDurham County Council
The pin shows the exact address of the property
Energy Efficiency Rating
Very energy efficient - lower running costs
Not energy efficient - higher running costs
Current
71Potential
88CO2 Rating
Very energy efficient - lower running costs
Not energy efficient - higher running costs
