This calculator provides a guide to the amount of residential stamp duty you may pay and does not guarantee this will be the actual cost. This calculation is based on the Stamp Duty Land Tax Rates for residential properties purchased from 23rd September 2022 and second homes from 31st October 2024. For more information on Stamp Duty Land Tax, click here.
3 bedroom Semi Detached House for sale, Crich Lane, Belper, Derbyshire, DE56
Features and Description
This three-bedroom semi-detached house that offers versatile accommodation with flexible living spaces. The home benefits from multiple reception areas, a practical kitchen, well-proportioned bedrooms and a downstairs wc. Externally, the property enjoys a generous front and rear gardens and off street parking.
Ideally located on Crich Lane, the property is within easy reach of Belper town centre, offering a range of shops, cafés, schools, and leisure facilities, along with excellent transport links including Belper railway station and road connections to Derby and the surrounding areas. Set within a popular residential area with pleasant outlooks, the property is offered with no vendor chain, making it well suited to families, first-time buyers, and those seeking a straightforward purchase.
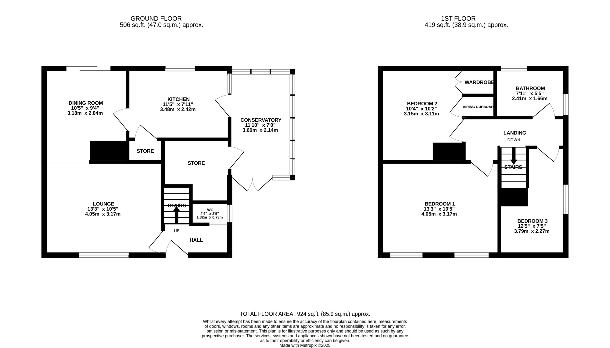
Entrance Hall
Access is gained via a front facing door. Allowing access to the lounge, downstairs wc and first floor accommodation.
Lounge
10'5" x 13'3" (3.17m x 4.05m)
A bright and welcoming living room featuring a contemporary wood-effect floor that provides both durability and a warm aesthetic. The space is well proportioned, benefits from a large window that allows plenty of natural light while offering pleasant views to the front and a feature fireplace creates an attractive focal point.
Dining Room
10'5" x 9'4" (3.18m x 2.84m)
A versatile and well-presented dining area featuring a continuation of the modern wood-effect flooring from the lounge. Sliding patio doors provide excellent natural light and direct access to the garden, making it ideal for everyday dining or entertaining. The room comfortably accommodates a dining table. Allowing access to the kitchen.
Kitchen
7'11" x 11'5" (2.42m x 3.48m)
A practical and well-proportioned kitchen fitted with a range of wall and base units providing ample storage and worktop space. The room features a durable tiled floor and contrasting work surfaces. Having plumbing for essential appliances, windows to the rear and side aspect provides natural light, and additional storage in form of a pantry cupboard. The kitchen offers good potential for modernisation, making it ideal for buyers looking to personalise the space.
Conservatory
11'10" x 7'0" (3.60m x 2.14m)
A bright and spacious conservatory enjoying garden and views. The room benefits from a tiled floor and brick dwarf walls, creating a practical yet inviting space suitable for year-round use. With direct access to the outside, this versatile room is ideal as an additional sitting area, garden room, or hobby space, providing a seamless connection between the home and outdoors. Allowing access to the store room.
Store Room
A useful area providing excellent additional storage.
Downstairs Wc
Fitted with a white suite comprising a low-level toilet and wall-mounted wash hand basin. The room is finished with tiled walls and flooring for easy maintenance and has a side facing window
Landing
Allowing access to all three bedrooms, bathroom and loft space via a ceiling hatch.
Bedroom 1
10'3" x 13'4" (3.12m x 4.07m)
A well-proportioned double bedroom offering a comfortable and relaxing space. The room benefits from front-facing windows providing good natural light and a pleasant outlook, along with ample space for bedroom furniture.
Bedroom 2
10'4" x 13'0" (3.15m x 3.97m)
A versatile bedroom offering flexible accommodation, featuring a far-reaching, rear-facing view, providing good natural light and an open outlook. The room includes built-in storage cupboards, one of which houses the combination boiler.
Bedroom 3
3.79m x 2.27m max
A side facing bedroom with a window providing natural light and a pleasant outlook. The room is well suited for use as a child’s bedroom, guest room, or home office.
Bathroom
5'5" x 7'11" (1.66m x 2.41m)
A well-proportioned bathroom fitted with a white suite comprising a panelled bath with shower over, pedestal wash hand basin, and WC. The room is finished with tiled walls and flooring for ease of maintenance and benefits from an opaque window providing natural light and ventilation.
External
The property occupies a pleasant position within a residential setting and benefits from a generous front garden laid mainly to lawn with a paved pathway leading to the entrance. The rear garden features a raised seating area accessed directly from the dining room, ideal for outdoor dining and entertaining, fence boundaries and a laid to lawn garden. A driveway located to the bottom of the plot provides off-street parking.
IMPORTANT NOTE TO POTENTIAL PURCHASERS:
We endeavour to make our particulars accurate and reliable, however, they do not constitute or form part of an offer or any contract and none is to be relied upon as statements of representation or fact. The services, systems and appliances listed in this specification have not been tested by us and no guarantee as to their operating ability or efficiency is given. All photographs and measurements have been taken as a guide only and are not precise. Floor plans where included are not to scale and accuracy is not guaranteed. If you require clarification or further information on any points, please contact us, especially if you are travelling some distance to view. Fixtures and fittings other than those mentioned are to be agreed with the seller.
Crich Lane, Belper, Derbyshire, DE56
Additional Information
-
Property refQBP250365
-
EPCD
-
TenureFreehold
-
Council TaxB
-
Local authorityAmber Valley Borough Council
The pin shows the exact address of the property
Energy Efficiency Rating
Very energy efficient - lower running costs
Not energy efficient - higher running costs
Current
68Potential
75CO2 Rating
Very energy efficient - lower running costs
Not energy efficient - higher running costs
