This calculator provides a guide to the amount of residential stamp duty you may pay and does not guarantee this will be the actual cost. This calculation is based on the Stamp Duty Land Tax Rates for residential properties purchased from 23rd September 2022 and second homes from 31st October 2024. For more information on Stamp Duty Land Tax, click here.
3 bedroom Semi Detached House for sale, Crystal Drive, Lightmoor Village, Shropshire, TF4
Features and Description
- NO UPWARD CHAIN
- SEMI DETACHED
- THREE BEDROOMS
- FAMILY HOME
- ENSUITE FACILITIES
- GARAGE
NO UPWARD CHAIN with this modern semi detached property in much sought after Lightmoor Village, with accommodation that comprises, entrance hall, guest cloakroom, lounge and kitchen/diner to the ground floor, with three bedrooms, ensuite and bathroom , to the first floor. Outside there is an enclosed garden to the rear with a garage (enbloc), and parking space. Epc rating B.
Location
Situated in Lightmoor Village, Crystal Drive is on the perimeter of the estate and as such enjoys enviable countryside views to the front.
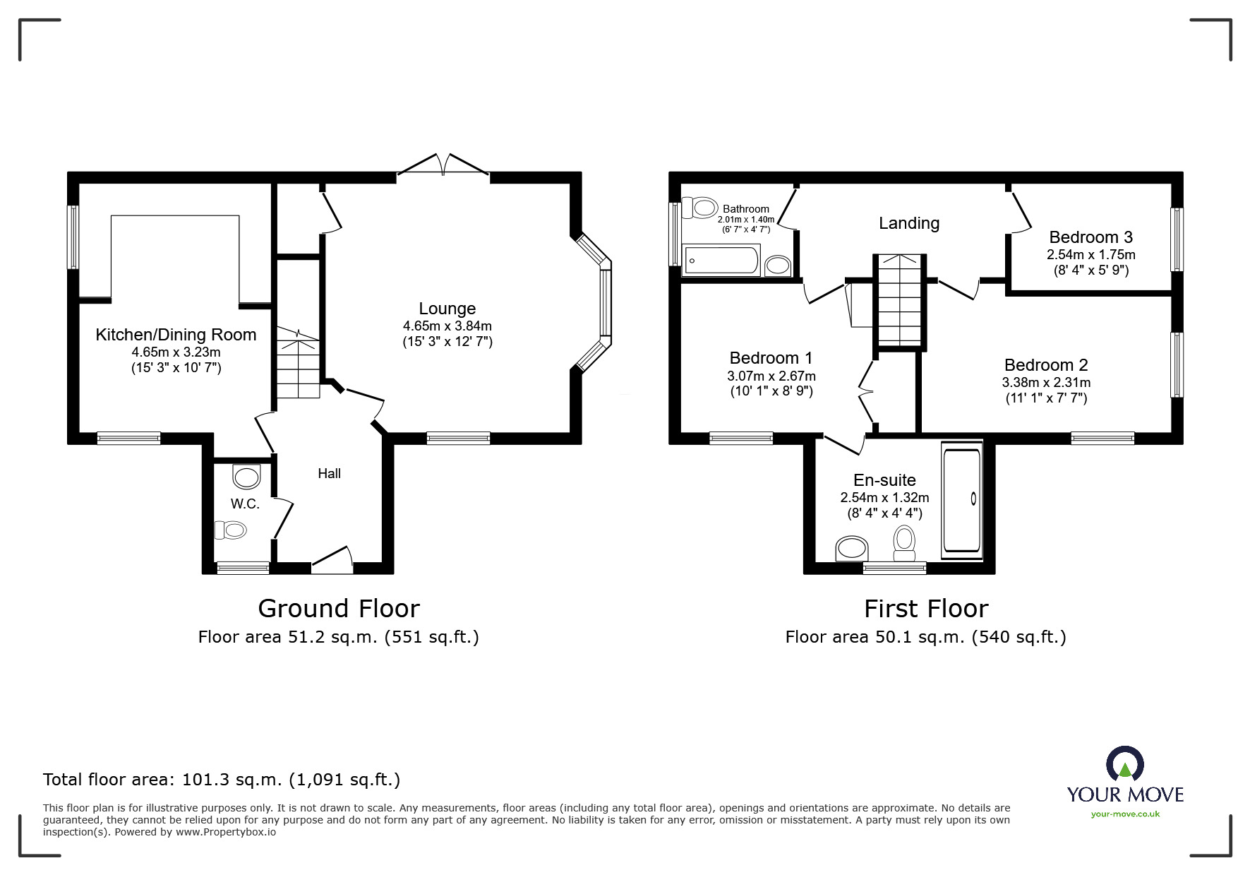
Entrance Hall
Stairs off, doors into..
Cloakroom
Low level w/c, wash hand basin.
Kitchen / Diner
10'7" x 15'3" (3.23m x 4.65m)
Featuring a range of wall and base units, with space and plumbing for appliances, integrated gas hob, electric oven, extractor hob, sink, drainer, mixer tap and plenty of space for a dining table.
Lounge
12'7" x 15'3" (3.84m x 4.65m)
With bay window to side aspect, double doors leading into garden.
Landing
Doors to all rooms, loft access above.
Bedroom 1
10'1" x 8'9" (3.07m x 2.67m)
Door into..
En-Suite
8'4" x 4'4" (2.54m x 1.32m)
Double shower cubicle, low level w/c, wash hand basin.
Bathroom
6'7" x 4'7" (2.00m x 1.40m)
Panel bath, low level w/c, wash hand basin.
Bedroom 3
8'4" x 5'9" (2.54m x 1.75m)
Bedroom 2
11'1" x 7'7" (3.38m x 2.30m)
Agents Note*
Council Tax Band is CCouncil is Telford & WrekinTenure is Freehold.
IMPORTANT NOTE TO POTENTIAL PURCHASERS:
We endeavour to make our particulars accurate and reliable, however, they do not constitute or form part of an offer or any contract and none is to be relied upon as statements of representation or fact. The services, systems and appliances listed in this specification have not been tested by us and no guarantee as to their operating ability or efficiency is given. All photographs and measurements have been taken as a guide only and are not precise. Floor plans where included are not to scale and accuracy is not guaranteed. If you require clarification or further information on any points, please contact us, especially if you are travelling some distance to view. Fixtures and fittings other than those mentioned are to be agreed with the seller.
Crystal Drive, Lightmoor Village, Shropshire, TF4
Additional Information
-
Property refWEL260082
-
EPCB
-
TenureFreehold
-
Council TaxC
-
Local authorityTelford & Wrekin Council
Similar properties for sale by Your Move Wellington
Low level w/c, wash hand basin.
Featuring a range of wall and base units, with space and plumbing for appliances, integrated gas hob, electric oven, extractor hob, sink, drainer, mixer tap and plenty of space for a dining table.
With bay window to side aspect, double doors leading into garden.
Door into..
Double shower cubicle, low level w/c, wash hand basin.
Panel bath, low level w/c, wash hand basin.
The pin shows the exact address of the property
Energy Efficiency Rating
Very energy efficient - lower running costs
Not energy efficient - higher running costs
Current
84Potential
95CO2 Rating
Very energy efficient - lower running costs
Not energy efficient - higher running costs
