This calculator provides a guide to the amount of residential stamp duty you may pay and does not guarantee this will be the actual cost. This calculation is based on the Stamp Duty Land Tax Rates for residential properties purchased from 23rd September 2022 and second homes from 31st October 2024. For more information on Stamp Duty Land Tax, click here.
3 bedroom Semi Detached House for sale, Gander Way, Stone Cross, East Sussex, BN24
Features and Description
- New build Shared Ownership
- Three bedrooms
- Close to the South Coast
- Integrated oven, hob & extractor
- Two car parking spaces
- French doors to rear garden and patio
- Fitted Carpets
- Semi detached
- Within Walking Distance
- Ground Floor WC
Open Day - 31st January - 10am-3pm
Asking price £175,500 for 45% share, based on full market value of £390,000
Combining a contemporary blend of comfort and outdoor space, the three-bedroom Rendlesham features a large living room to the front of the property with plenty of natural light and an all important hallway to keep out the cold in the winter. A separate combined kitchen and dining room forms the heart of the home complete with a downstairs WC for those busy mornings, and French doors out onto the delightful patio area for entertaining on summer evenings or a bit of quiet time. Ascending to the first floor, the main bedroom is situated to the front of the home including a built in cupboard to keep things clutter free. A further two spacious bedrooms make up the rear of the property with a family bathroom and a storage cupboard on the landing completing the first floor.
Shared Ownership is a great way to get onto the property ladder when you can’t afford to buy a home on the open market. Depending on what you can afford, this scheme allows you to buy a share of a new home, and pay a reduced rent on the remaining share. You can purchase a share of a property, typically between 25% and 75%, making it more achievable to get on the property ladder. To do this you'll only need to secure a mortgage for your share of the property, reducing the upfront costs and monthly payments. Once you’ve bought your Shared Ownership home you can choose to increase you share of the property and potentially own it outright.
Kitchen Diner
16'10" x 10'2" (5.13m x 3.10m)
Living Room
13'8" x 13'2" (4.17m x 4.01m)
Bedroom 1
16'10" x 9'4" (5.13m x 2.84m)
Bedroom 2
10'2" x 7'8" (3.10m x 2.34m)
Bedroom 3
10'2" x 8'11" (3.10m x 2.72m)
IMPORTANT NOTE TO POTENTIAL PURCHASERS:
We endeavour to make our particulars accurate and reliable, however, they do not constitute or form part of an offer or any contract and none is to be relied upon as statements of representation or fact. The services, systems and appliances listed in this specification have not been tested by us and no guarantee as to their operating ability or efficiency is given. All photographs and measurements have been taken as a guide only and are not precise. Floor plans where included are not to scale and accuracy is not guaranteed. If you require clarification or further information on any points, please contact us, especially if you are travelling some distance to view. Fixtures and fittings other than those mentioned are to be agreed with the seller.
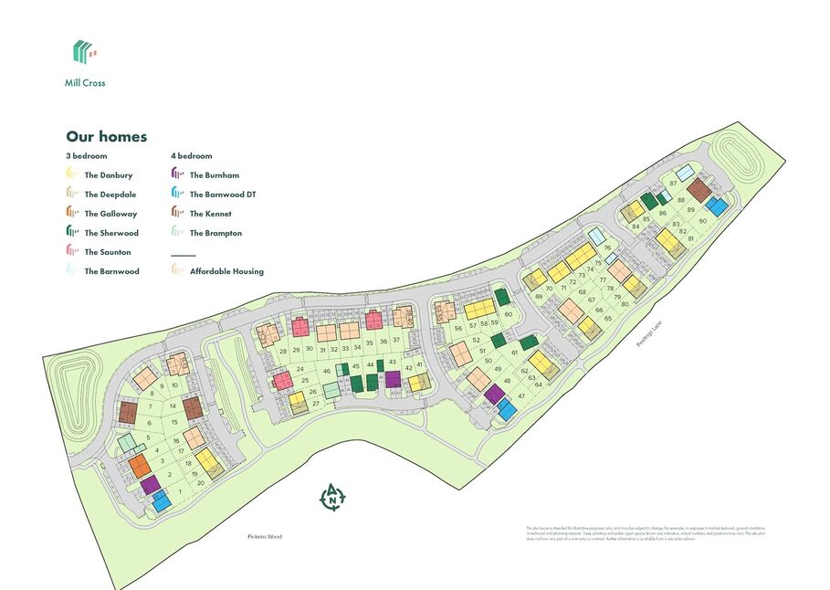
Gander Way, Stone Cross, East Sussex, BN24
Additional Information
-
Property refQEA250442
-
EPCB
-
TenureLeasehold
-
Council TaxNA
-
Ground RentContact the branch
-
Ground Rent ReviewContact the branch
-
Service ChargeContact the branch
Similar properties for sale by Your Move Eastbourne
The pin shows the exact address of the property
Energy Efficiency Rating
Very energy efficient - lower running costs
Not energy efficient - higher running costs
Current
91Potential
92CO2 Rating
Very energy efficient - lower running costs
Not energy efficient - higher running costs
