This calculator provides a guide to the amount of residential stamp duty you may pay and does not guarantee this will be the actual cost. This calculation is based on the Stamp Duty Land Tax Rates for residential properties purchased from 23rd September 2022 and second homes from 31st October 2024. For more information on Stamp Duty Land Tax, click here.
3 bedroom Semi Detached House for sale, Havering Court, Consett, Durham, DH8
Features and Description
- Three Bedroom Semi-Detached House
- Detached Garage and Driveway
- Sought After Location
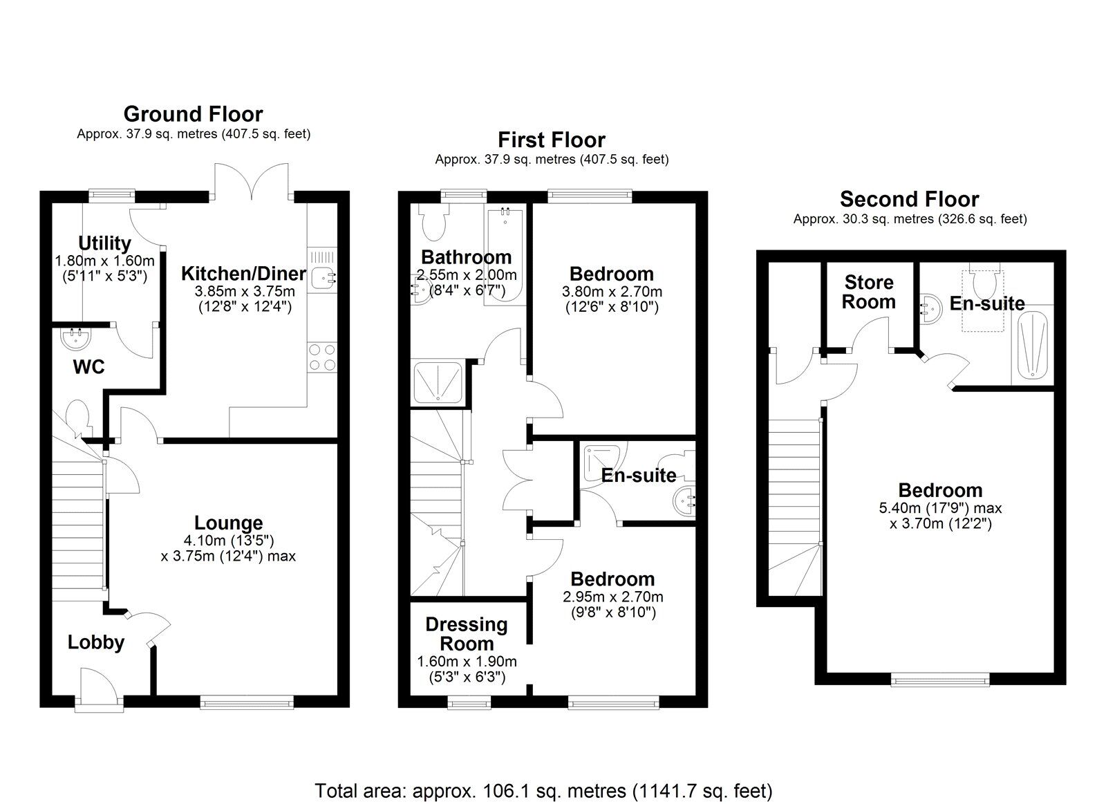
- Approximate Floor Area 106 Sq Mtrs/ 1141 Sq Ft.
- Council Tax Band C
- EPC Rating B
This well-presented three-bedroom semi-detached home is arranged over three floors, ideally located close to local amenities and transport links. The property offers spacious and versatile accommodation throughout, making it ideal for many prospective buyers. Further benefits include a private driveway providing off-street parking and a detached garage. An excellent opportunity to acquire a home in a highly desirable location.
The accommodation is arranged over three floors and offers well-proportioned and versatile living space throughout. The ground floor comprises a welcoming lounge, a modern kitchen/diner with integrated appliances, a separate utility room and a convenient WC. On the first floor there is a family bathroom featuring both a bath and separate walk-in shower, a good-sized double bedroom, and a further bedroom benefiting from an en-suite shower room and dressing area. The second floor is dedicated to the spacious master bedroom, complete with an en-suite shower room and additional storage space.
Externally, the property benefits from a beautifully landscaped rear garden featuring a decking area and lawn, providing an ideal space for outdoor dining and relaxation. Parking is available via a detached garage and private driveway, while the front of the property enjoys a pleasant open aspect.
Havering Court is ideally located within the highly regarded Regents Park development in Consett, offering a perfect balance of modern living and convenience. This sought-after residential area enjoys a peaceful setting while being just a short distance from Consett town centre, where a range of shops, schools, and amenities can be found. Excellent transport links provide easy access to Durham, Newcastle, and surrounding areas, making it an ideal choice for commuters. With nearby parks, walking trails, and countryside views, Havering Court combines a tranquil lifestyle with all the benefits of a well-connected location.
IMPORTANT NOTE TO POTENTIAL PURCHASERS:
We endeavour to make our particulars accurate and reliable, however, they do not constitute or form part of an offer or any contract and none is to be relied upon as statements of representation or fact. The services, systems and appliances listed in this specification have not been tested by us and no guarantee as to their operating ability or efficiency is given. All photographs and measurements have been taken as a guide only and are not precise. Floor plans where included are not to scale and accuracy is not guaranteed. If you require clarification or further information on any points, please contact us, especially if you are travelling some distance to view. Fixtures and fittings other than those mentioned are to be agreed with the seller.
Havering Court, Consett, Durham, DH8
Additional Information
-
Property refQCO260102
-
EPCB
-
TenureFreehold
-
Council TaxC
-
Local authorityDurham County Council
The pin shows the exact address of the property
Energy Efficiency Rating
Very energy efficient - lower running costs
Not energy efficient - higher running costs
Current
85Potential
95CO2 Rating
Very energy efficient - lower running costs
Not energy efficient - higher running costs
