This calculator provides a guide to the amount of residential stamp duty you may pay and does not guarantee this will be the actual cost. This calculation is based on the Stamp Duty Land Tax Rates for residential properties purchased from 23rd September 2022 and second homes from 31st October 2024. For more information on Stamp Duty Land Tax, click here.
3 bedroom Semi Detached House for sale, Heaning Avenue, Blackburn, Lancashire, BB1
Features and Description
- Popular quiet cul-de-sac location
- Bright open-plan living and dining
- Modern, well-lit fitted kitchen
- Three bedrooms, two generous doubles
- Contemporary first-floor bathroom suite
- Garden with designated BBQ area
- Double garage plus driveway parking
- Ideal for first-time buyers, families
- Close to schools, parks and amenities
- Good transport links to Manchester, Preston
A superb driveway and large double detached garage being the ultimate features on this property this three-bedroom semi-detached house is **for sale** in a popular and quiet cul-de-sac in Blackburn, Lancashire. The property offers a practical layout suited to first-time buyers, investors and families, with well-planned living space and useful outdoor areas.
The ground floor features an open-plan reception room with large windows, allowing natural light to filter through and creating a bright main living and dining area. Adjoining this space is a modern kitchen, also benefitting from good natural light. The layout is designed to support everyday family life, with clear zones for cooking, dining and relaxing.
Upstairs, the property provides three bedrooms. The master bedroom is a double room, complemented by a further double bedroom and a single bedroom, offering flexible use as children’s rooms, a guest room or a home office. A modern bathroom suite serves the first floor, providing a clean and contemporary space.
Externally, the house includes a garden with a designated BBQ area, creating a useful outdoor setting for dining and leisure. Parking is well catered for, with a double garage providing secure off-street parking and additional storage options, along with further driveway or hardstanding space as appropriate.
The property is situated in a sought-after area of Blackburn, with local amenities accessible in the surrounding neighbourhood, including everyday shops, services and eateries. Nearby parks provide green space for walking and recreation, supporting an active lifestyle close to home. The location is also convenient for nearby schools, making it suitable for households with children looking to be within reach of educational facilities.
Public transport links are available in Blackburn, with the town’s main railway station offering services towards Manchester (typically around 50–60 minutes) and Preston (around 20–25 minutes), providing onward connections across the North West. Local bus routes operate through residential areas, linking to Blackburn town centre for wider shopping, leisure and employment opportunities.
Overall, this three-bedroom semi-detached house for sale in Blackburn combines open-plan living, modern fixtures, garden space with BBQ area and a double garage, in a quiet cul-de-sac location with access to public transport, schools, parks and amenities.
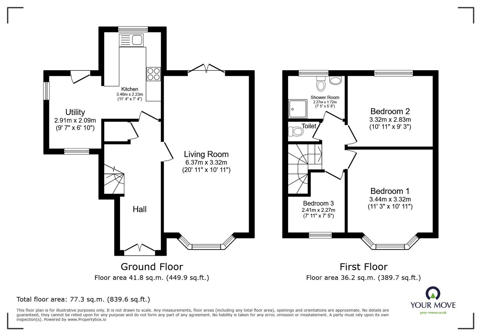
Entrance Hallway
Door to front aspect
Living Room
20'11" x 10'11" (6.37m x 3.32m)
Modern feature wall with Modern Electric fire. Central heating radiator. UPVC double glazed window to front aspect.
Kitchen
11'4" x 7'4" (3.46m x 2.23m)
Fitted with a range of modern wall, base and drawer units. Space for fridge. Gas cooked point. UPVC double glazed window to rear aspect.
Utility Room
9'7" x 6'10" (2.91m x 2.09m)
Master Bedroom
11'3" x 10'11" (3.44m x 3.32m)
Central heating radiator. UPVC double glazed window to front aspect.
Bedroom 2
9'3" x 10'11" (2.83m x 3.32m)
Central heating radiator. UPVC double glazed window to rear aspect.
Bedroom 3
7'11" x 7'5" (2.41m x 2.27m)
Central heating radiator. UPVC double glazed window to rear aspect.
Bathroom
Fitted with a three piece suite in white.
Exterior
The property is garden fronted with a laid to lawn area and ample off road parking. The property is situated down a quiet cul-de sac and has a larger than average plot with a good sized rear garden where there sits a good sized double garage.
IMPORTANT NOTE TO POTENTIAL PURCHASERS:
We endeavour to make our particulars accurate and reliable, however, they do not constitute or form part of an offer or any contract and none is to be relied upon as statements of representation or fact. The services, systems and appliances listed in this specification have not been tested by us and no guarantee as to their operating ability or efficiency is given. All photographs and measurements have been taken as a guide only and are not precise. Floor plans where included are not to scale and accuracy is not guaranteed. If you require clarification or further information on any points, please contact us, especially if you are travelling some distance to view. Fixtures and fittings other than those mentioned are to be agreed with the seller.
Heaning Avenue, Blackburn, Lancashire, BB1
Additional Information
-
Property refQBL260069
-
EPCD
-
TenureFreehold
-
Council TaxB
-
Local authorityBlackburn with Darwen Borough Council
Similar properties for sale by Your Move Blackburn
The pin shows the exact address of the property
Energy Efficiency Rating
Very energy efficient - lower running costs
Not energy efficient - higher running costs
Current
63Potential
70CO2 Rating
Very energy efficient - lower running costs
Not energy efficient - higher running costs
