This calculator provides a guide to the amount of residential stamp duty you may pay and does not guarantee this will be the actual cost. This calculation is based on the Stamp Duty Land Tax Rates for residential properties purchased from 23rd September 2022 and second homes from 31st October 2024. For more information on Stamp Duty Land Tax, click here.














3 bedroom Semi Detached House for sale, Lynton Avenue, Wolverhampton, West Midlands, WV6
Features and Description
- Semi-detached property
- Three well-appointed bedrooms
- Generously sized kitchen
- Two distinct reception rooms
- Large utility room
- Large driveway
- Good condition
- Privacy and community
- Functional living spaces
Your-Move are delighted to present this semi-detached property, currently listed for sale. This dwelling is in good condition, ready to accommodate a new family without any immediate requirements for refurbishment.
The property boasts three well-appointed bedrooms, offering ample space for rest and relaxation. A single bathroom serves the property, ensuring privacy and convenience for all residents.
The heart of the home is undoubtedly the generously sized kitchen, which can comfortably cater to all your culinary needs. It is complemented by two distinct reception rooms, providing a welcoming atmosphere for both family living and entertaining guests.
One of the key features of this property is the large utility room. This space can be utilised for a variety of purposes, providing additional flexibility to suit your lifestyle. Furthermore, the property offers a large driveway, alleviating any parking concerns and providing easy access to your home.
Despite the significant internal offerings, this home does not compromise on its external features. The semi-detached status ensures a sense of community while maintaining an appreciated degree of privacy.
This property stands as an excellent opportunity for those seeking a well-maintained home, offering both functional living spaces and thoughtful amenities. Embrace the opportunity to make this house your home, and enjoy the comfort and convenience it provides.
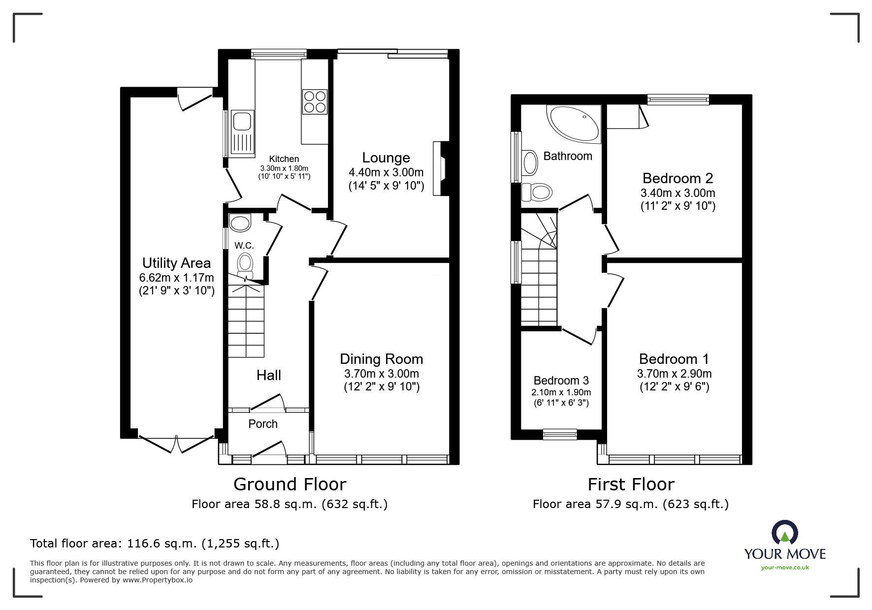
Room sizes
Dining Room3.70m(12'2'') x 3.00m(9'10'')Lounge4.40m(14'5'') x 3.00m(9'10'')Kitchen3.30m(10'10'') x 1.80m(5'11'')First Floor LandingBedroom One3.70m(12'2'') x 2.90m(9'6'')Bedroom Two2.10m(6'11'') x 1.90m(6'3'')Bedroom Three3.40m(11'2'') x 3.00m(9'10'')
IMPORTANT NOTE TO POTENTIAL PURCHASERS:
We endeavour to make our particulars accurate and reliable, however, they do not constitute or form part of an offer or any contract and none is to be relied upon as statements of representation or fact. The services, systems and appliances listed in this specification have not been tested by us and no guarantee as to their operating ability or efficiency is given. All photographs and measurements have been taken as a guide only and are not precise. Floor plans where included are not to scale and accuracy is not guaranteed. If you require clarification or further information on any points, please contact us, especially if you are travelling some distance to view. Fixtures and fittings other than those mentioned are to be agreed with the seller.
Lynton Avenue, Wolverhampton, West Midlands, WV6

Additional Information
-
Property refWOL250434
-
EPCD
-
TenureFreehold
-
Council TaxC
-
Local authorityWolverhampton City Council

Similar properties for sale by Your Move Wolverhampton














The pin shows the exact address of the property
Energy Efficiency Rating
Very energy efficient - lower running costs
Not energy efficient - higher running costs
Current
65Potential
88CO2 Rating
Very energy efficient - lower running costs
Not energy efficient - higher running costs