This calculator provides a guide to the amount of residential stamp duty you may pay and does not guarantee this will be the actual cost. This calculation is based on the Stamp Duty Land Tax Rates for residential properties purchased from 23rd September 2022 and second homes from 31st October 2024. For more information on Stamp Duty Land Tax, click here.
3 bedroom Semi Detached House for sale, Pennine Way, Duston, Northampton, NN5
Features and Description
- Three Bedrooms
- Semi detached
- Large Garden
- Oversized Garage
- Extended Kitchen
- Off Road Parking
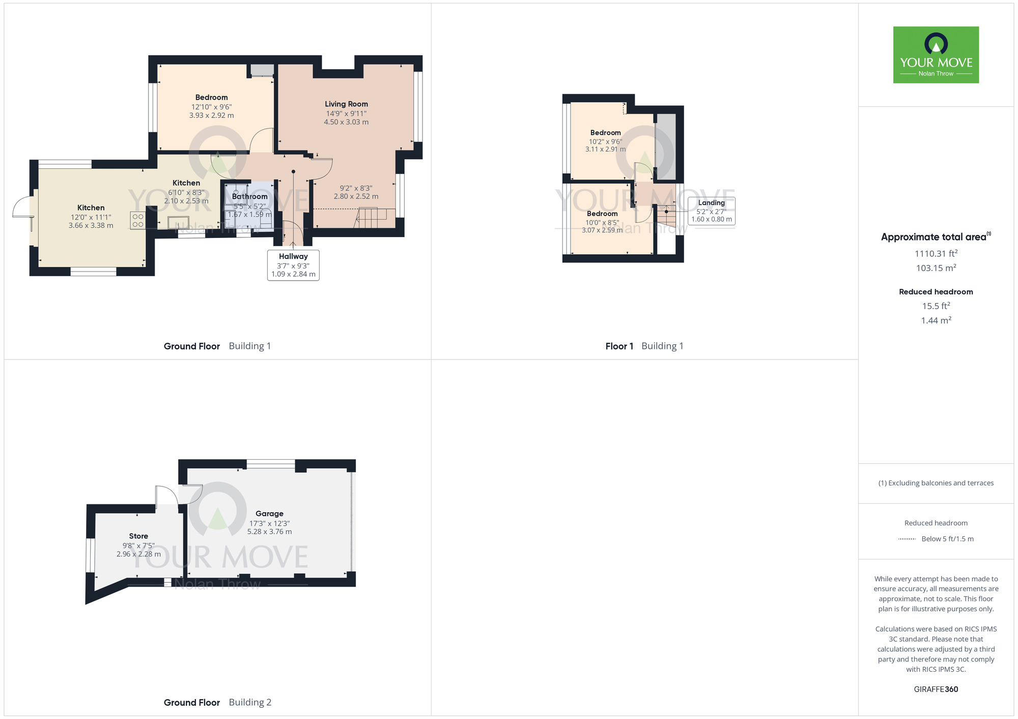
A deceptively spacious three bedroom semi-detached property situated on this popular road in Duston. The property offers versatile accommodation with a bedroom on the ground floor and two bedrooms on the first floor. Features include a driveway providing ample off-road parking, an oversized garage with electrically operated roller shutter door, large rear garden, extended kitchen/dining room and a good size lounge. The entrance hall provides access to the lounge which has two double-glazed windows to the front aspect and stairs rising to the first floor landing. The kitchen/dining room has a range of base and wall mounted units with roll top work surfaces. There is space for a dining table and chairs and there is a double-glazed sliding patio door to the rear garden. The ground floor bedroom is a double room and has a built-in cupboard. The shower room has been refitted and has a suite comprising of corner shower, low level WC and pedestal wash hand basin with heated towel rail. The first floor landing provides access to the two remaining bedrooms.
Outside to the front, there is a driveway providing ample off road parking. There is an oversized garage with electrically operated roller shutter door. Between the property and the garage there is a gate providing access to the rea garden. There is a brick-built store separate to the garage. The garden to the rear has a patio area with steps down to a further paved area with flower beds and lawned area beyond.
IMPORTANT NOTE TO POTENTIAL PURCHASERS:
We endeavour to make our particulars accurate and reliable, however, they do not constitute or form part of an offer or any contract and none is to be relied upon as statements of representation or fact. The services, systems and appliances listed in this specification have not been tested by us and no guarantee as to their operating ability or efficiency is given. All photographs and measurements have been taken as a guide only and are not precise. Floor plans where included are not to scale and accuracy is not guaranteed. If you require clarification or further information on any points, please contact us, especially if you are travelling some distance to view. Fixtures and fittings other than those mentioned are to be agreed with the seller.
Pennine Way, Duston, Northampton, NN5

Additional Information
-
Property refQDU250130
-
EPCD
-
TenureFreehold
-
Council TaxB
-
Local authorityWest Northamptonshire Council























The pin shows the exact address of the property
Energy Efficiency Rating
Very energy efficient - lower running costs
Not energy efficient - higher running costs
Current
57Potential
81CO2 Rating
Very energy efficient - lower running costs
Not energy efficient - higher running costs