This calculator provides a guide to the amount of residential stamp duty you may pay and does not guarantee this will be the actual cost. This calculation is based on the Stamp Duty Land Tax Rates for residential properties purchased from 23rd September 2022 and second homes from 31st October 2024. For more information on Stamp Duty Land Tax, click here.
3 bedroom Semi Detached House for sale, The Acre, Newton Arlosh, Cumbria, CA7
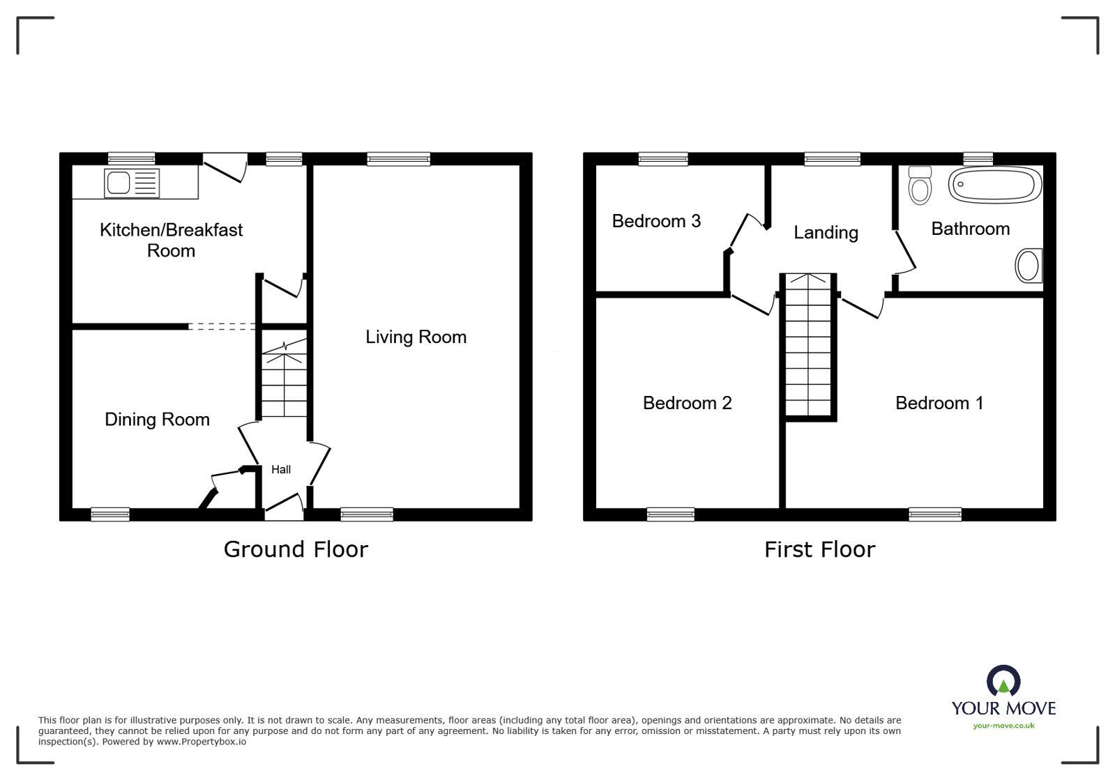
Features and Description
NO ONWARD CHAIN. READY TO PUT YOUR OWN STAMP ON. Located on a cul-de-sac in the popular village of Newton Arlosh this property is a fantastic project. This deceptively spacious house is a must see!! The property comprises, entrance hallway, two reception rooms, and kitchen/dining room. To the first floor are two double bedrooms, one single bedroom and bathroom. Outside is drive for a car and front and rear garden. Viewing is highly recommended.
Living Room
10'8" x 17'0" (3.25m x 5.19m)
Dual aspect allowing plenty of natural light and having open fire.
Dining Room
9'6" x 12'1" (2.90m x 3.68m)
Second reception room, ideal as a dining room or second sitting room, having fireplace and built in cupboard.
Kitchen / Breakfast Room
6'11" x 16'4" (2.11m x 4.99m)
Spacious room with kitchen sink and understairs storage .
Bedroom 1
10'11" x 13'10" (3.34m x 4.22m)
Good size bedroom overlooking the front of the property.
Bedroom 2
9'4" x 11'9" (2.85m x 3.58m)
Second double bedroom with built in storage and houses the water tank.
Bedroom 3
6'10" x 9'7" (2.09m x 2.92m)
Good size single bedroom with built in storage.
Bathroom
5'5" x 7'5" (1.66m x 2.25m)
Bath with shower over, w/c and wash hand basin.
Outside
To the front of the property is a drive with parking for a car and front garden. To the rear is a further garden with patio area.
Agents Notes
The property has double glazing and there is a back boiler behind the open fire in the living room. IMPORTANT- Due to the condition of the property, please check with your lender if you intent to purchase with a mortgage.
IMPORTANT NOTE TO POTENTIAL PURCHASERS:
We endeavour to make our particulars accurate and reliable, however, they do not constitute or form part of an offer or any contract and none is to be relied upon as statements of representation or fact. The services, systems and appliances listed in this specification have not been tested by us and no guarantee as to their operating ability or efficiency is given. All photographs and measurements have been taken as a guide only and are not precise. Floor plans where included are not to scale and accuracy is not guaranteed. If you require clarification or further information on any points, please contact us, especially if you are travelling some distance to view. Fixtures and fittings other than those mentioned are to be agreed with the seller.
Agents are required by law to conduct Anti-Money Laundering checks on all buyers. Your Move Carlisle, Whitehaven and Wigton charge £30 including VAT per buyer. The charge covers the cost of obtaining and retaining relevant data from a third party. This fee is payable in advance prior to issuing a memorandum of sale and before the property can be sale agreed.
The Acre, Newton Arlosh, Cumbria, CA7
Additional Information
-
Property refWIG260012
-
TenureFreehold
-
Council TaxA
-
Local authorityCumberland Council
Dual aspect allowing plenty of natural light and having open fire.
Second reception room, ideal as a dining room or second sitting room, having fireplace and built in cupboard.
Spacious room with kitchen sink and understairs storage .
Good size bedroom overlooking the front of the property.
Second double bedroom with built in storage and houses the water tank.
Good size single bedroom with built in storage.
Bath with shower over, w/c and wash hand basin.
To the front of the property is a drive with parking for a car and front garden. To the rear is a further garden with patio area.
The pin shows the exact address of the property
Energy Efficiency Rating
Very energy efficient - lower running costs
Not energy efficient - higher running costs
Current
N/APotential
N/ACO2 Rating
Very energy efficient - lower running costs
Not energy efficient - higher running costs
