This calculator provides a guide to the amount of residential stamp duty you may pay and does not guarantee this will be the actual cost. This calculation is based on the Stamp Duty Land Tax Rates for residential properties purchased from 23rd September 2022 and second homes from 31st October 2024. For more information on Stamp Duty Land Tax, click here.
3 bedroom Semi Detached House for sale, Thruxton Close, Hinckley, Leicestershire, LE10
Features and Description
- Modern Semi Detached
- Cul-De-Sac Position
- Three Spacious Bedrooms
- En-Suite To Master Bedroom
- Single Garage
- Highly Sought After Location
- Beautifully Presented Throughout
- No Chain
- Viewing Strongly Recommended
You're sure to be impressed when you enter this spacious modern semi detached home in this highly sought after location. Benefiting from three double bedrooms with an en-suite shower room to the master bedroom. Viewing is strongly recommended to appreciate both the location and spacious accommodation on offer here.
Property
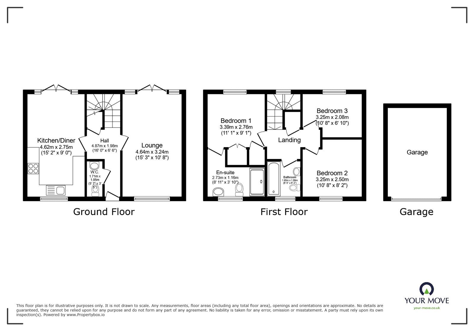
Accommodation comprises Reception Hall, Cloakroom/WC, Lounge Diner, Breakfast Kitchen, Landing, Bedroom One, Bedroom Two, Bedroom Three and Family Bathroom. Externally the property Benefits from a large drive to side leading to the single Garage with mature gardens to front and rear.
Reception Hall
4.87m x1.98m
Cloakroom / WC
5'7" x 3'5" (1.71m x 1.05m)
Lounge Diner
15'3" x 10'8" (4.64m x 3.24m)
Kitchen / Diner
15'2" x 9'0" (4.62m x 2.75m)
Landing
9'5" x 8'9" (2.86m x 2.66m)
Bedroom 1
11'1" x 9'1" (3.39m x 2.76m)
En-Suite
3'10" x 8'11" (1.16m x 2.73m)
Bedroom 2
10'8" x 8'2" (3.25m x 2.50m)
Bedroom 3
6'10" x 10'8" (2.08m x 3.25m)
Family Bathroom
6'2" x 6'5" (1.89m x 1.95m)
IMPORTANT NOTE TO POTENTIAL PURCHASERS:
We endeavour to make our particulars accurate and reliable, however, they do not constitute or form part of an offer or any contract and none is to be relied upon as statements of representation or fact. The services, systems and appliances listed in this specification have not been tested by us and no guarantee as to their operating ability or efficiency is given. All photographs and measurements have been taken as a guide only and are not precise. Floor plans where included are not to scale and accuracy is not guaranteed. If you require clarification or further information on any points, please contact us, especially if you are travelling some distance to view. Fixtures and fittings other than those mentioned are to be agreed with the seller.
Thruxton Close, Hinckley, Leicestershire, LE10
Additional Information
-
Property refHIN200572
-
EPCC
-
TenureFreehold
-
Council TaxC
-
Local authorityHinckley & Bosworth Borough Council
The pin shows the exact address of the property
Energy Efficiency Rating
Very energy efficient - lower running costs
Not energy efficient - higher running costs
Current
78Potential
90CO2 Rating
Very energy efficient - lower running costs
Not energy efficient - higher running costs
