This calculator provides a guide to the amount of residential stamp duty you may pay and does not guarantee this will be the actual cost. This calculation is based on the Stamp Duty Land Tax Rates for residential properties purchased from 23rd September 2022 and second homes from 31st October 2024. For more information on Stamp Duty Land Tax, click here.
3 bedroom Semi Detached House for sale, Waverley Lane, Burton-on-Trent, Staffordshire, DE14
Features and Description
- Charming semi-detached property
- Neutrally decorated interiors
- Open-plan reception room
- Stunning garden view
- Heartwarming family kitchen
- Three spacious bedrooms
- Garage included
- Beautiful garden
- Close to public transport
- Nearby schools and amenities
Welcome to your new dream home! This charming semi-detached property is on the market and just waiting for a family to call it their own. The house is neutrally decorated, giving you the perfect blank canvas to make it your own. The property features one delightful open-plan reception room with a stunning garden view that's sure to impress your guests. The kitchen is the heart of the home, perfect for family meals and entertaining. With three bedrooms, two of which are doubles, there's plenty of room for everyone. The property also boasts a garage and a beautiful garden, ideal for those summer barbecues or a quiet spot to enjoy a good book. Located in the proximity of public transport links, schools, and local amenities, this house is not only a home but a lifestyle. Despite its EPC rating of E and council tax band B, this property is an absolute gem. So, don't delay, make this house your home today!
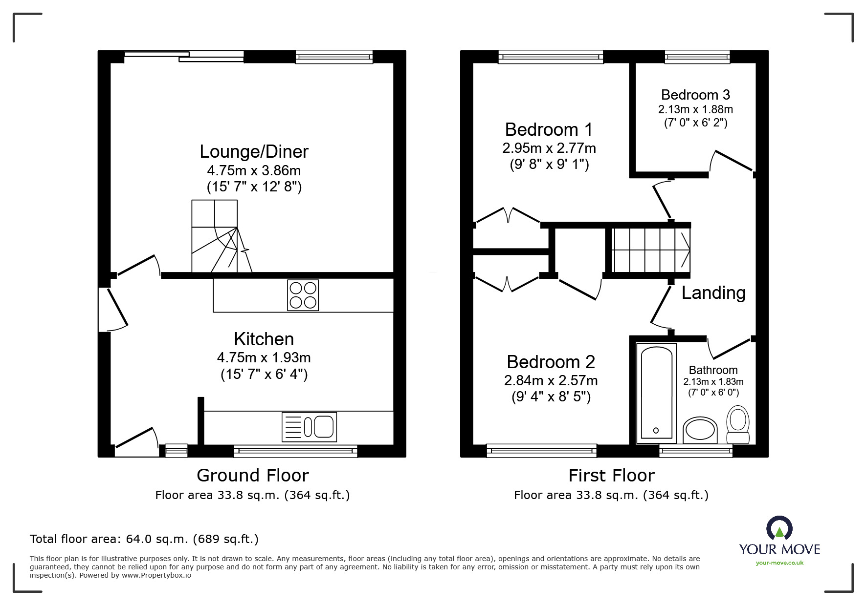
Kitchen
15`7 x 6`4
Lounge / Diner
15`7 x 12`8
Bedroom 1
9`1 x 9`8
Bedroom 2
8`5 x 9`4
Bedroom 3
6`2 x 7`0
Bathroom WC
6`0 x 7`0
IMPORTANT NOTE TO POTENTIAL PURCHASERS:
We endeavour to make our particulars accurate and reliable, however, they do not constitute or form part of an offer or any contract and none is to be relied upon as statements of representation or fact. The services, systems and appliances listed in this specification have not been tested by us and no guarantee as to their operating ability or efficiency is given. All photographs and measurements have been taken as a guide only and are not precise. Floor plans where included are not to scale and accuracy is not guaranteed. If you require clarification or further information on any points, please contact us, especially if you are travelling some distance to view. Fixtures and fittings other than those mentioned are to be agreed with the seller.
Waverley Lane, Burton-on-Trent, Staffordshire, DE14
Additional Information
-
Property refBUR230332
-
EPCE
-
TenureFreehold
-
Council TaxB
-
Local authorityEast Staffordshire Borough Council
Similar properties for sale by Your Move Burton on Trent
The pin shows the exact address of the property
Energy Efficiency Rating
Very energy efficient - lower running costs
Not energy efficient - higher running costs
Current
50Potential
82CO2 Rating
Very energy efficient - lower running costs
Not energy efficient - higher running costs
