4 bedroom Semi Detached House to rent, Beech Way, Twickenham, TW2
Available Unfurnished, from 18/04/2026
Features and Description
- EPC Rating D
- Council Tax -Richmond Band E
- Semi Detached Family Home
- 4 Bedrooms
- Lovely Rear Garden
- Off Street Parking
- Two Bathrooms
- Conservatory
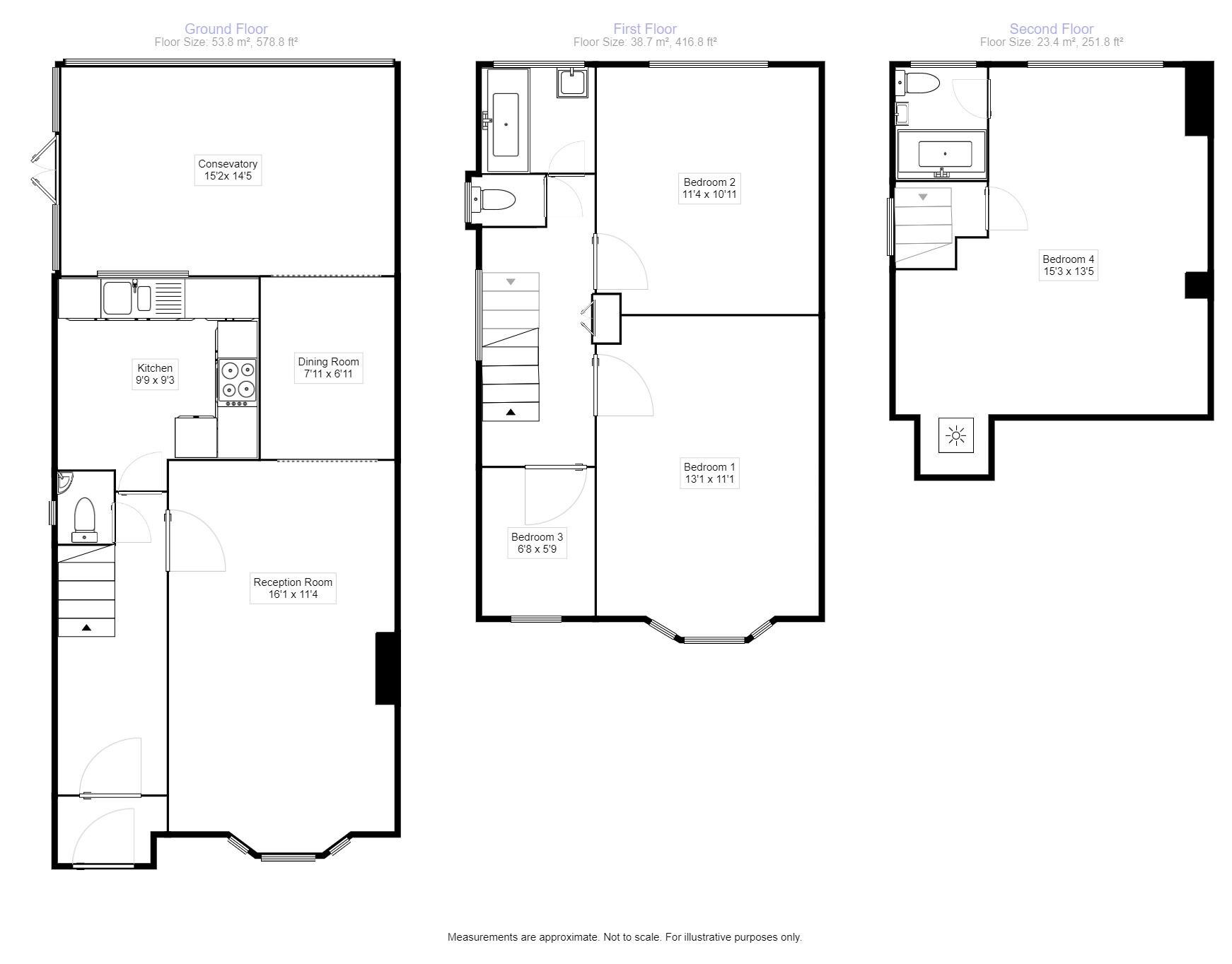
A substantial family home set in a popular location just off the Staines Road, Twickenham. The property comprises of four good sized bedrooms, large reception room, modern fitted kitchen, extended conservatory and two bathrooms (one en suite). Other added features include a large private rear garden and driveway parking. Beech Way is set amongst a popular development and within catchment to some of the areas finest schools. EPC Rating D. Council Tax- Richmond Band E
Location
Beech Way is a quiet residential road, a short distance of Twickenham Green, David Llyod Health Club and local amenities. Buses to local shopping hubs are in close proximity, By Car the A316, in turn the M3 and motorway network are a short drive away.
Reception Room
15'1" x 11'4" (4.60m x 3.45m)
Dining Area
7'11" x 6'11" (2.41m x 2.10m)
Conservatory
15'2" x 14'5" (4.62m x 4.40m)
Kitchen
9'9" x 9'3" (2.97m x 2.82m)
Bedroom 1
13'1" x 10'12" (4.00m x 3.35m)
Bedroom 2
11'4" x 10'11" (3.45m x 3.33m)
Bedroom 3
6'8" x 5'9" (2.03m x 1.75m)
Bedroom 4
15'3" x 13'5" (4.65m x 4.10m)
IMPORTANT NOTE TO POTENTIAL RENTERS:
We endeavour to make our particulars accurate and reliable, however, they do not constitute or form part of an offer or any contract and none is to be relied upon as statements of representation or fact. The services, systems and appliances listed in this specification have not been tested by us and no guarantee as to their operating ability or efficiency is given. All photographs and measurements have been taken as a guide only and are not precise. Floor plans where included are not to scale and accuracy is not guaranteed. If you require clarification or further information on any points, please contact us, especially if you are travelling some distance to view.
All properties are available for a minimum length of time, with the exception of short term accommodation. Please contact the branch for details. A security deposit of at least one month’s rent is required. Rent is to be paid one month in advance. It is the tenant’s responsibility to insure any personal possessions. Payment of all utilities including water rates or metered supply and Council Tax is the responsibility of the tenant in every case.
Beech Way, Twickenham, TW2
Additional Information
-
Property refWTT200313
-
EPCD
-
Council TaxE
-
Local authorityLondon Borough of Richmond upon Thames
Your Move Letting Agents Whitton
Rental Tools
The pin shows the exact address of the property
Energy Efficiency Rating
Very energy efficient - lower running costs
Not energy efficient - higher running costs
Current
67Potential
83CO2 Rating
Very energy efficient - lower running costs
Not energy efficient - higher running costs
