This calculator provides a guide to the amount of residential stamp duty you may pay and does not guarantee this will be the actual cost. This calculation is based on the Stamp Duty Land Tax Rates for residential properties purchased from 23rd September 2022 and second homes from 31st October 2024. For more information on Stamp Duty Land Tax, click here.















4 bedroom Mid Terrace Land/Plot for sale, Old Kent Road, London, SE15
Features and Description
- FREEHOLD INVESTMENT SHOP & UPPERS
- OLD KENT ROAD
- NO CHAIN
- EPC GRADE D
- NEWLY REFURBISHED THROUGHOUT
- SHOP WITH ACCOMMODATION
- 3 BEDROOM FLAT
- EXCELLENT LOCATION
Located on the Old Kent Road, is this FREEHOLD INVESTMENT comprising of a Commercial Ground Floor Unit with 3 Bedroom Flat above. The property has undergone a full refurbishment and is presented in excellent order throughout. Ideal for a myriad of business uses, this property represents a great opportunity for any discerning investor. Offered Chain Free, viewing is highly advised. EPC Grade D. London Borough of Southwark Council Tax Band: B. Business Rates TBA.
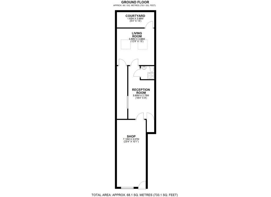
Shop Area
23'4" x 10'1" (7.10m x 3.07m)
Reception 1
18'4" x 8'12" (5.60m x 2.74m)
Reception 2
12'12" x 12'9" (3.96m x 3.89m)
Living Room
14'4" x 10'12" (4.37m x 3.35m)
Kitchen
10'12" x 8'3" (3.35m x 2.51m)
Bedroom 3
15'3" x 9'6" (4.65m x 2.90m)
Bathroom
8'3" x 6'5" (2.51m x 1.96m)
Bedroom 1
14'1" x 11'3" (4.30m x 3.43m)
Bedroom 2
10'12" x 8'1" (3.35m x 2.46m)
IMPORTANT NOTE TO POTENTIAL PURCHASERS:
We endeavour to make our particulars accurate and reliable, however, they do not constitute or form part of an offer or any contract and none is to be relied upon as statements of representation or fact. The services, systems and appliances listed in this specification have not been tested by us and no guarantee as to their operating ability or efficiency is given. All photographs and measurements have been taken as a guide only and are not precise. Floor plans where included are not to scale and accuracy is not guaranteed. If you require clarification or further information on any points, please contact us, especially if you are travelling some distance to view. Fixtures and fittings other than those mentioned are to be agreed with the seller.
Old Kent Road, London, SE15

Additional Information
-
Property refNEC250137
-
TenureFreehold
-
Council TaxB
-
Local authoritySouthwark Council

Similar properties for sale by Your Move New Cross















The pin shows the exact address of the property
Energy Efficiency Rating
Very energy efficient - lower running costs
Not energy efficient - higher running costs
Current
63Potential
69CO2 Rating
Very energy efficient - lower running costs
Not energy efficient - higher running costs