This calculator provides a guide to the amount of residential stamp duty you may pay and does not guarantee this will be the actual cost. This calculation is based on the Stamp Duty Land Tax Rates for residential properties purchased from 23rd September 2022 and second homes from 31st October 2024. For more information on Stamp Duty Land Tax, click here.
3 bedroom Semi Detached Bungalow for sale, Lizbeth Close, Willow Street, Shropshire, SY11
Features and Description
- Refurbished & Remodelled
- 2/3 Bedrooms
- Quiet Cul De Sac Location
- Open Plan Living Room/Kitchen
- EPC Grade C
- Living Area with Log Burner
- Private Rear Garden
Modernised & Remodelled Bungalow - Quiet & Convenient Location - Three Bedrooms - Open Plan Living Room/Kitchen with Refitted Kitchen Area- The accommodation comprises: Utility Hall; Open Plan Living Room/Kitchen with Log Burner; Inner Hall; Three Bedrooms; Refitted Bathroom; Outside: Off Road Parking; Private Decked Rear Garden. EPC Grade C.
Directions
From the Your Move office proceed into the town centre and bear right onto Willow Street, continue over the crossroads and take the next left onto Lizbeth CloseWhat Three Words: HOMING.KNOCKING.GRIPS
Entrance
Replacement door.
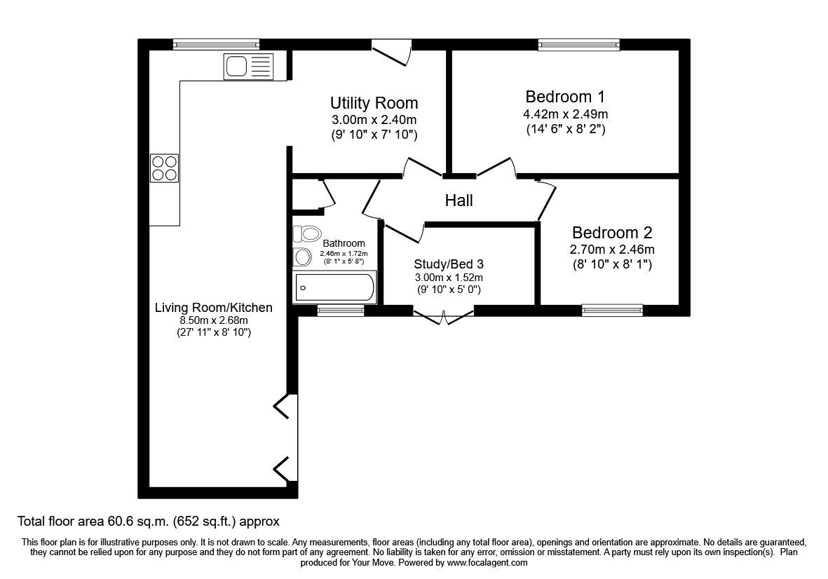
Utility Hall
9'10" x 8'0" (3.00m x 2.45m)
A very useful area, currently used as a lobby & utility area, plumbing for washing machine, space for fridge/freezer, radiator.
Living Room / Kitchen
27'9" x 8'4" (8.45m x 2.55m)
A bright open plan, dual aspect, room.
Living Area
Log burner, wood effect floor, 2 radiators, double glazed bifold doors leading into the rear garden.
Kitchen Area
A remodelled kitchen, fitted in a range of base & wall units, comprising sink unit with mixer taps, space for cooker, double glazed window
Bedroom 1
14'5" x 8'2" (4.40m x 2.48m)
Built in wardrobe, radiator, double glazed window.
Bedroom 2
8'9" x 8'0" (2.66m x 2.45m)
Radiator, double glazed window.
Study
9'7" x 4'10" (2.92m x 1.48m)
Double glazed French doors leading into the rear garden, radiator.
Bathroom
Refitted suite comprising WC, wash basin, bath with shower over, airing cupboard, extractor, double glazed window.
Front
Off road parking for 1 car.
Rear Garden
A private decked rear garden.
Agents Note
Shropshire Council - Council Tax Band BThe property is Freehold
IMPORTANT NOTE TO POTENTIAL PURCHASERS:
We endeavour to make our particulars accurate and reliable, however, they do not constitute or form part of an offer or any contract and none is to be relied upon as statements of representation or fact. The services, systems and appliances listed in this specification have not been tested by us and no guarantee as to their operating ability or efficiency is given. All photographs and measurements have been taken as a guide only and are not precise. Floor plans where included are not to scale and accuracy is not guaranteed. If you require clarification or further information on any points, please contact us, especially if you are travelling some distance to view. Fixtures and fittings other than those mentioned are to be agreed with the seller.
Lizbeth Close, Willow Street, Shropshire, SY11
Additional Information
-
Property refOSW220559
-
EPCC
-
TenureFreehold
-
Council TaxA
-
Local authorityShropshire Council
A very useful area, currently used as a lobby & utility area, plumbing for washing machine, space for fridge/freezer, radiator.
Log burner, wood effect floor, 2 radiators, double glazed bifold doors leading into the rear garden.
A remodelled kitchen, fitted in a range of base & wall units, comprising sink unit with mixer taps, space for cooker, double glazed window
Built in wardrobe, radiator, double glazed window.
Radiator, double glazed window.
Refitted suite comprising WC, wash basin, bath with shower over, airing cupboard, extractor, double glazed window.
A private decked rear garden.
The pin shows the exact address of the property
Energy Efficiency Rating
Very energy efficient - lower running costs
Not energy efficient - higher running costs
Current
69Potential
90CO2 Rating
Very energy efficient - lower running costs
Not energy efficient - higher running costs
