This calculator provides a guide to the amount of residential stamp duty you may pay and does not guarantee this will be the actual cost. This calculation is based on the Stamp Duty Land Tax Rates for residential properties purchased from 23rd September 2022 and second homes from 31st October 2024. For more information on Stamp Duty Land Tax, click here.
3 bedroom Detached Bungalow for sale, Kilbourne Road, Belper, Derbyshire, DE56
Features and Description
- NO UPWARD CHAIN
- HIGHLY CONVENIENT LOCATION
- EXTREMELY WELL APPOINTED THROUGHOUT
- GENEROUSLY PROPORTIONED PLOT
- AMPLE OFF STREET PARKING GARAGE
- VERSATILE INTERNAL ACCOMMDATION
- FABULOUS FRONT AND REAR GARDENS
- TWO RECEPTION ROOMS
- EARLY VIEWING HIGHLY RECOMMENDED
Occupying an impressive and generous plot, this spacious detached bungalow offers versatile living space, ample parking and a garage, all within easy reach of local schools and amenities.
The property opens via an entrance porch into a large and welcoming reception area, setting the tone for the well-proportioned accommodation throughout. The main living room is bright and comfortable, centred around a feature fireplace, while a substantial fitted kitchen provides plenty of storage and workspace—ideal for day-to-day living.
A second reception room, also featuring a fireplace, offers excellent flexibility and could easily be utilised as an additional bedroom if required. There are two further double bedrooms, both benefiting from fitted wardrobes, alongside a bathroom with separate shower cubicle and a separate WC.
A useful inner lobby provides access to an attic room, complete with fitted wardrobes, offering further adaptable space. Subject to the necessary planning and building regulation approvals, this area presents an excellent opportunity to convert into a full additional bedroom.
Externally, the property truly excels. The front garden is attractively maintained, featuring a lawn and a range of mature planting, while the large rear garden is a standout feature—enjoying access to the garage, a terrace, patio seating areas, two lawned sections, greenhouse, vegetable patch and well-stocked borders. A store/workshop adds further practicality, making this an ideal home for those seeking space both inside and out.
Porch
Accessed via a double glazed UPVC entrance door, offering practical coat and shoe storage. A glazed internal door opens through to the main accommodation.
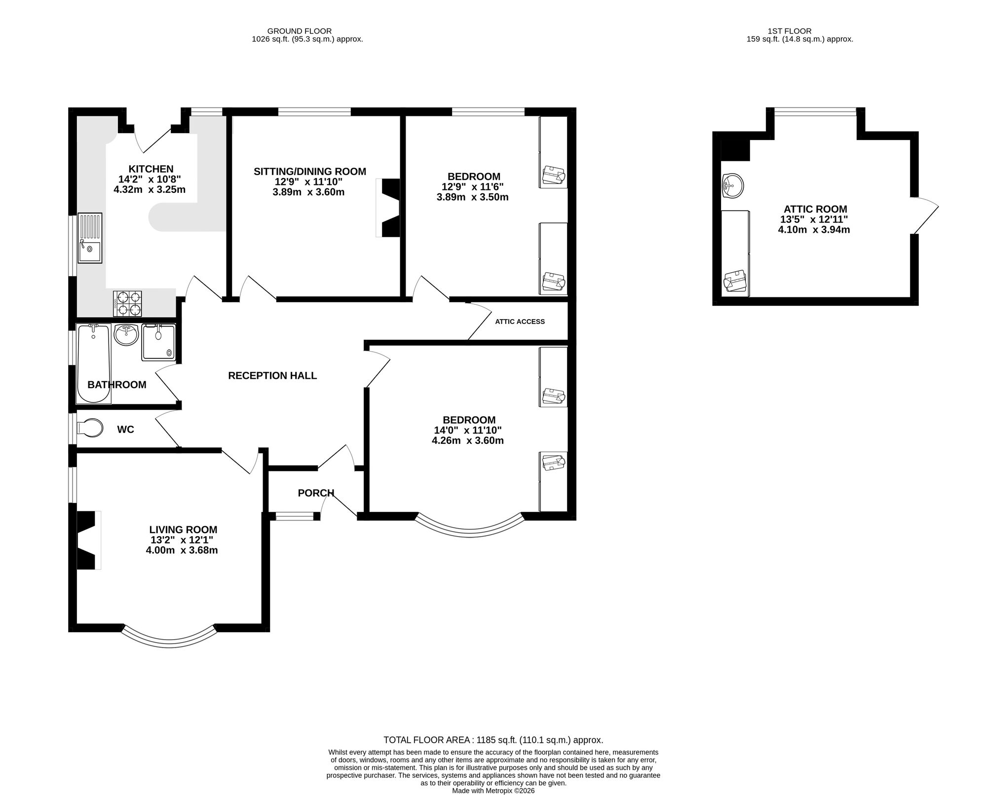
Reception Hall
A spacious and welcoming hallway featuring attractive solid wood parquet flooring, decorative wall panelling and a radiator, setting the tone for the rest of the home.
Living Room
A light and well-proportioned reception room, centred around a handsome fire surround with inset gas fire. Additional features include fitted storage units, continuation of parquet flooring, radiator and double glazed windows to the front and side aspects.
Sitting / Dining Room
A versatile second reception room, ideal as a formal dining space or potential guest bedroom. Enjoying a large stone fire surround with inset gas fire, parquet flooring, radiator and a generous double glazed window overlooking the rear garden.
Kitchen
A spacious and well-equipped kitchen fitted with an impressive range of solid wood, hand-built units complemented by contrasting work surfaces and a breakfast bar. Features include an inset sink/drainer with mixer tap, integrated gas hob with extractor, double oven and washing machine. There is also a cupboard housing the combination boiler, tiled walls and flooring, wall mounted heater, double glazed rear window and a glazed door providing access to the garden.
Master Bedroom
A generous double bedroom with a comprehensive range of fitted wardrobes and storage, radiator and a double glazed window to the front aspect.
Bedroom 2
A further well-proportioned double bedroom, again benefiting from fitted wardrobes/storage, radiator and a double glazed window overlooking the rear garden.
Bathroom
Fully tiled and well-appointed, comprising a panelled bath, corner shower enclosure and wash hand basin. Additional features include a radiator and a double glazed window to the side aspect.
WC
Separate fully tiled WC fitted with a low flush toilet, radiator and a double glazed side window.
Attic Room
Accessed via an enclosed lobby with a side-facing double glazed window, this is a large and light-filled space featuring fitted wardrobes/storage, radiator, en-suite sink facilities and a rear dormer window. Offering excellent potential, this room could lend itself to conversion into a full bedroom, subject to the necessary permissions and regulatory approval. Further storage available in the eaves, which is accessed from the landing.
Outside
Occupying an impressive plot, this property benefits from beautifully maintained gardens to both the front and rear, offering a wonderful balance of kerb appeal, usable space and privacy.To the front, a generous lawn is complemented by well-stocked and neatly tended planted beds, creating an attractive and welcoming approach. A driveway to the side provides ample off-road parking and leads through to the garage and workshop.The rear garden is a particular feature of the home—substantial in size and thoughtfully arranged to offer a variety of spaces to enjoy. A paved patio area provides an ideal seating and entertaining space, with steps leading up to a further elevated terrace adjoining the property. The main garden is laid to lawn, bordered by established planting, mature shrubs and specimen trees, creating a private and well-screened environment.To the far end, there is a productive garden area incorporating vegetable beds and a characterful greenhouse, perfect for those with an interest in gardening or looking to make full use of the space. The plot enjoys a pleasant open outlook to the rear, enhancing the sense of space.Overall, the gardens offer excellent versatility—equally suited to entertaining, relaxing or more practical uses—while clearly demonstrating the care and attention they have received over the years.
Garage / Workshop
Large single garage, having a wooden sliding door, lighting and power, and a vehicle inspection pit. Adjoining the garage is a handy workshop/store room.
IMPORTANT NOTE TO POTENTIAL PURCHASERS:
We endeavour to make our particulars accurate and reliable, however, they do not constitute or form part of an offer or any contract and none is to be relied upon as statements of representation or fact. The services, systems and appliances listed in this specification have not been tested by us and no guarantee as to their operating ability or efficiency is given. All photographs and measurements have been taken as a guide only and are not precise. Floor plans where included are not to scale and accuracy is not guaranteed. If you require clarification or further information on any points, please contact us, especially if you are travelling some distance to view. Fixtures and fittings other than those mentioned are to be agreed with the seller.
Kilbourne Road, Belper, Derbyshire, DE56
Additional Information
-
Property refQBP260121
-
TenureFreehold
-
Council TaxD
-
Local authorityAmber Valley Borough Council
The pin shows the exact address of the property
Energy Efficiency Rating
Very energy efficient - lower running costs
Not energy efficient - higher running costs
Current
N/APotential
N/ACO2 Rating
Very energy efficient - lower running costs
Not energy efficient - higher running costs
